Sold STC
£800,000 Guide Price

4 Bedroom Detached House, Boltby, Thirsk, YO7

Boltby, Thirsk, YO7


Nove Property Primary Brand brand logo

Nove

9 Bridge Street, Thirsk

Description

An immaculately presented four-bedroom detached house, set within the tranquil surroundings of the National Park and occupying a generous plot of approximately 0.5 acres.

Old Reading Rooms offers characterful interiors and thoughtful specification throughout. The ground floor is anchored by a standout kitchen with stone flooring, cream units, a five-ring LPG hob with large extractor, fitted fridge-freezer, dishwasher and double electric oven, carousel and pull-out storage cupboards, and French doors opening to the garden — a multifuel stove and underfloor electric heating adds year-round comfort. A separate utility room handles the practicalities, while the living room, with its multi-fuel stove,set under an oak mantle provides a genuinely warm and relaxed heart to the home.

Upstairs, the principal bedroom is served by a well-appointed dressing room and a private en-suite with double shower, twin basins in a vanity unit and two illuminated mirrors. Two further double bedrooms and a shower room sit on this level. The top floor provides a large double bedroom with Velux windows overlooking the rear garden and is served by its own bathroom.

Outside, the double garage has two electric doors, power, light and internal stairs leading to a first floor area with its own toilet. An ideal workshop or studio for those who need it or a useful annexe with relevant permissions granted.

This property sits on an idyllic plot with a brook bubbling through, a mixed use garden with raised beds, luscious lawns and a continuous evolution of seasonal flowers.

BOLTBY VILLAGE

Boltby is a small and picturesque village set on the western edge of the North York Moors National Park, nestled beneath the dramatic escarpment of the Hambleton Hills. Surrounded by open countryside and woodland, the village enjoys a peaceful rural setting with far-reaching views across the Vale of Mowbray.

With a history stretching back many centuries, Boltby has long been an agricultural community, shaped by the landscape that surrounds it. Traditional stone cottages and farmhouses sit quietly along the village lane, while the historic Holy Trinity Church dates back to 1802 although there has been a chapel there since 1409 and remains a focal point of the village.

Despite its tranquil character, Boltby sits just a short distance from the market town of Thirsk, providing convenient access to everyday amenities while retaining the sense of seclusion and charm that defines village life within the National Park.

Today, Boltby is valued for its unspoilt character, close-knit community and immediate access to some of the most beautiful walking and cycling countryside in North Yorkshire. It remains a place where the pace of life is slower, and the surrounding landscape is very much part of everyday living.

OLD READING ROOMS - HISTORY

The property was built in 1884 as part of the Ravensthorpe Estate and was built during a period when reading rooms were being established across Britain to promote education, literacy and self-improvement among rural communities. It has also been used over the years as a school room and as a surgery for the visiting dentist.


EPC Rating: E

Other Virtual Tours:


Key Features

  • Four Bedroom Detached House
  • Set within North York Moors National Park
  • Completely Updated Throughout
  • Circa 0.5 acre plot
  • Double Garage

Property Details

  • Property type: House
  • Property style: Detached
  • Price Per Sq Foot: £395
  • Approx Sq Feet: 2,024 sqft
  • Plot Sq Feet: 20,032 sqft
  • Property Age Bracket: Victorian (1830 - 1901)
  • Council Tax Band: F
Please note, property and plot sizes displayed are for guidance purposes only and may have been derived from publicly available information over which neither the agent nor Street.co.uk have control.

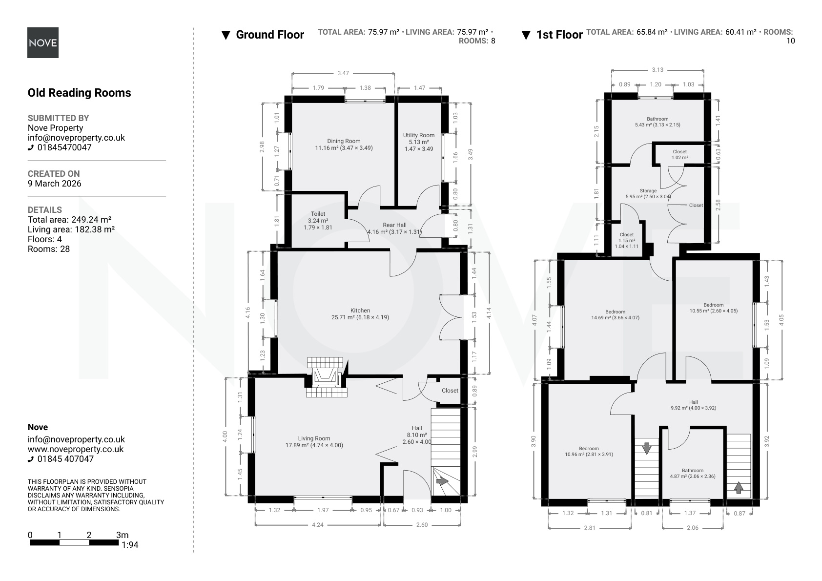
Rooms

Rear Entrance Hall

As is typical of many rural properties this is the primary entrance and is finished with a stone floor, continuing the natural stone aesthetic found throughout the ground floor and offers instant access to the ground floor cloak room, utility and dining rooms and kitchen.

Ground Floor Cloak Room

The downstairs cloak room is finished with a ceramic tile stone floor. It includes coat hooks, an extractor fan, a WC and a washbasin within a vanity unit.

View Ground Floor Cloak Room Photos

Kitchen

6.26m x 3.93m

The kitchen features a beautiful stone floor and cream units with a stainless steel extractor hood over a 5 ring LPG hob. Appliances include a fridge freezer, dishwasher and a double electric oven. Practical features include under-floor electric heating, oak worktops, wine rack, carousel cupboards, pull-out storage cupboards and a pan drawer. There is also a picture shelf and multi-fuel stove. The adjoining seating area is an ideal spot to sit and relax while the French doors offer lovely views to the garden.

View Kitchen Photos

Dining Room

3.46m x 3.38m

The dining room features windows to both the front and side elevations, providing excellent natural light and could also be utilised as a home office or playroom

View Dining Room Photos

Utility Room

The utility room is fully equipped with plumbing for a washing machine, sink and drainer, and offers both base and wall storage. Finished with a wood-effect worktop, the room also benefits from a window to the garden.

View Utility Room Photos

Hallway

The front hall features an electric point, a wooden door and stone floor, creating a welcoming entrance to the property. Bi folding wooden doors with glass panels lead through to the Sitting Room, offering flexibility to open up and divide the space as required. Stairs lead to the first floor

View Hallway Photos

Sitting Room

4.73m x 3.92m

The sitting room is a generous reception space, featuring a multi-fuel stove set under an oak mantle. Large windows flood the room with light.

View Sitting Room Photos

Principal Bedroom

3.95m x 3.67m

The principal bedroom is a well-proportioned room with a window to the front aspect. The bedroom leads through to the private dressing area and also benefits from the en suite shower room.

View Principal Bedroom Photos

Dressing Room

2.50m x 1.78m

The dressing room is accessed via the master bedroom and features a Velux windows, and a range of illuminated wardrobes, a storage cupboard and an airing cupboard, before leading onwards to the en suite shower room.

View Dressing Room Photos

En-Suite

3.10m x 2.13m

The en-suite is finished with wood-effect flooring and features a double shower, a vanity unit with two basins, two illuminated mirrors and a window to the side.

View En-Suite Photos

Bedroom Two

3.93m x 2.53m

Currently used as an art room due to its beautiful views of the rear garden, this versatile room has wall mounted radiator.

View Bedroom Two Photos

Bedroom Three

3.68m x 2.79m

The third bedroom, currently utilised as an office features a window to the front, under stairs storage and fitted storage — ideal for guests or working from home as required.

View Bedroom Three Photos

Shower Room

The shower room is finished with wood-effect flooring and features a large gravity-fed shower, low level toilet, hand basin, illuminated mirror and wall mounted towel radiator. A window to the side provides natural light and ventilation.

View Shower Room Photos

Second Floor Landing

On the top floor is a large landing, ideal for additional library space or a desk. The top floor has a good size bedroom and bathroom which serves as a secondary suite.

View Second Floor Landing Photos

Second Floor Bedroom

4.05m x 3.93m

The top floor bedroom benefits from a fitted wardrobe, with a built in storage area behind the bed. Two Velux windows bringing in plenty of natural light.

View Second Floor Bedroom Photos

Second Floor Bathroom

The top floor bathroom includes a bath, vanity basin and WC, illuminated mirror, with a wall-mounted radiator and wood-effect flooring throughout. The bathroom has both overhead lighting and recessed ambient lighting on the beams, offering flexibility to suit.

View Second Floor Bathroom Photos

Outside Spaces

Garden

The garden measures approximately 0.5 acres and wraps all the way around the property. A sweeping driveway leads up to the house and offers plenty of off street parking. The garden is a delight, with a stream running through and an abundance of mature plants and flowers to enjoy. A greenhouse is set behind the property and the owners have installed raised beds to ensure there is plenty of growing space. There is also a good sized shed and two wood stores.

Parking Spaces

Driveway

Capacity: 4

Double garage

Capacity: 2

With electric doors to the front and a pedestrian door to the side. The garage, previously used as a carpenters workshop has plenty of power sockets and lighting. The Garage has a first floor level with gable window and its own toilet and is suitable for a variety of uses .

Location

Properties you may like

By Nove

Disclaimer - Property ID 01941d20-3630-48b9-954e-9f61d7dbc97d. The information displayed about this property comprises a property advertisement. Street.co.uk and Nove makes no warranty as to the accuracy or completeness of the advertisement or any linked or associated information, and Street.co.uk has no control over the content. This property advertisement does not constitute property particulars. The information is provided and maintained by the advertising agent. Please contact the agent or developer directly with any questions about this listing.