Book a Viewing

To book a viewing for this property, please call Mansell McTaggart Haywards Heath, on 01444 456431.

To book a viewing for this property, please call Mansell McTaggart Haywards Heath, on 01444 456431.

For Sale
£450,000 Guide Price

3 Bedroom Detached House, 47A Wivelsfield Road, Haywards Heath, RH16

47A Wivelsfield Road, Haywards Heath, RH16


Colour Logo - Full brand logo

Mansell McTaggart Haywards Heath

Mansell McTaggart Estate Agents, 7 Muster Green South

Description

GUIDE PRICE .. £450,000-£475,000

PLEASE WATCH THE VIDEO BEFORE BOOKING AN APPOINTMENT
An almost brand-new (2023) 3 bedroom detached house hidden away up a long driveway on the southern side of town within an easy walk of the hospital, Sainsbury's local, the town centre, several schools and just 1.1 miles walk to the railway station


EPC Rating: A

Virtual Tour


Key Features

  • Individual detached house in tucked away setting up a long driveway
  • Built by a small local builder(2023)
  • 48' x 28' fully enclosed rear garden
  • 2 allocated parking spaces with EV point
  • Fabulous open plan kitchen/dining/living area with bifold doors out to the rear courtyard and garden
  • Kitchen with full range of integrated appliances
  • 3 bedrooms, 2 bath/shower rooms
  • Within 100 yards of a Sainsbury's Local store - 1.1 mile walk to the railway station - Close to hospital
  • 10 year Build Guarantee - 6 Solar Panels with chargeable battery (6 x 315 watts producing 1.8 kilowatts)
  • EPC rating: A - Council Tax Band: E

Property Details

  • Property type: House
  • Property style: Detached
  • Price Per Sq Foot: £401
  • Approx Sq Feet: 1,122 sqft
  • Council Tax Band: E
Please note, property and plot sizes displayed are for guidance purposes only and may have been derived from publicly available information over which neither the agent nor Street.co.uk have control.

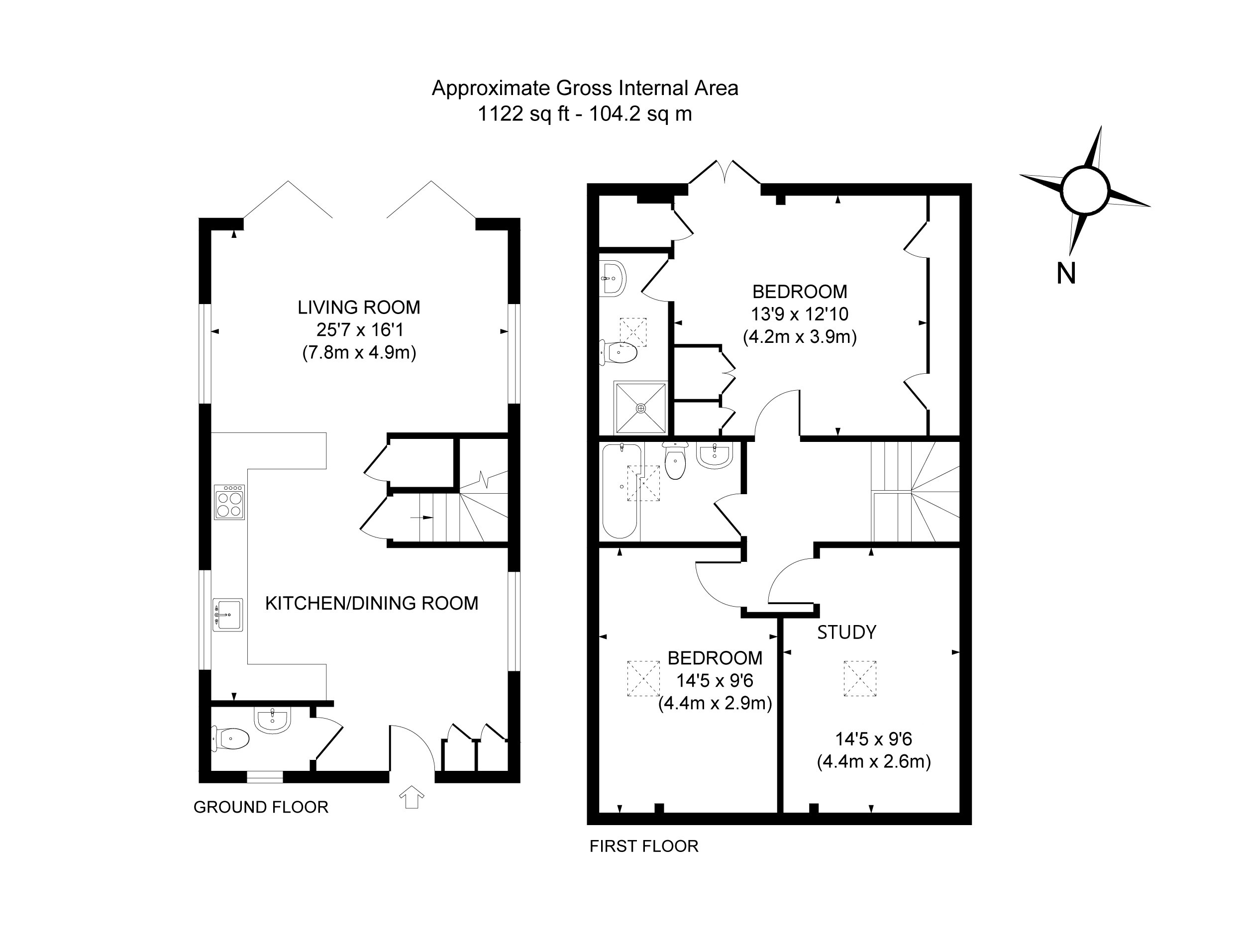
Floorplans

Location

The property is hidden away up a driveway which runs east of the Wivelsfield Road between No.s 45 and 49, just to the south of St James Lettings and the Sainsbury's Local store. The Princess Royal Hospital is within a 10 minute walk and there are several primary schools also within walking distance. Children from the side of town fall into the catchment area for Warden Park Secondary Academy School in neighbouring Cuckfield, for which they catch a school bus nearby. Some children go to Oathall Community College in Lindfield, which is closer. The railway station is 1.1 miles distant and offers fast commuter services to London and the south coast. The town has several large parks, excellent shopping and recreational facilities, a leisure centre, sports clubs and a 6th form college. By road, access to the major surrounding areas can be swiftly gained via the B2112, the A272 and A/M23 which lies about 6 miles to the west at Bolney or Warninglid. Distances (in approximate miles on foot/car/train) Schools: St Wilfrid's Primary (0.7), St Joseph’s RC Primary (0.8), Northlands Wood (1.0), Warden Park Primary Academy (0.9), Oathall Community College (1.5), Warden Park Secondary Academy in Cuckfield (2.5), Haywards Heath Railway Station (1.1) London Bridge/Victoria 45 mins, Gatwick Airport 15 mins, Brighton 20 mins

Properties you may like

By Mansell McTaggart Haywards Heath

  • The Coppice, Haywards Heath, RH16

    • 3 Beds
    • 2 Bath
    View Property
  • Rookery Way, Haywards Heath, RH16

    • 4 Beds
    • 4 Bath
    View Property
  • Buckeridge Way, Haywards Heath, RH16

    • 4 Beds
    • 4 Bath
    View Property
  • Funnell Drive, Haywards Heath, RH17

    • 2 Beds
    • 1 Bath
    View Property
  • Trubwick Avenue, Waverley House, RH16

    • 2 Beds
    • 2 Bath
    View Property
  • Walnut Park, Haywards Heath, RH16

    • 2 Beds
    • 1 Bath
    View Property
  • Church Road, Haywards Heath, RH16

    • 1 Beds
    • 1 Bath
    View Property
  • Green Road, Wivelsfield Green, RH17

    • 4 Beds
    • 2 Bath
    View Property
  • 4 Highview Place, Wivelsfield Green, Haywards Heath RH17 7RZ

    • 5 Beds
    • 3 Bath
    View Property
Disclaimer - Property ID 024fd9e5-fa73-4c0b-a1c1-ec77a1bfd363. The information displayed about this property comprises a property advertisement. Street.co.uk and Mansell McTaggart Haywards Heath makes no warranty as to the accuracy or completeness of the advertisement or any linked or associated information, and Street.co.uk has no control over the content. This property advertisement does not constitute property particulars. The information is provided and maintained by the advertising agent. Please contact the agent or developer directly with any questions about this listing.