Book a Viewing

To book a viewing for this property, please call Bayzos Estate Agents, on 0330 124 6533.

To book a viewing for this property, please call Bayzos Estate Agents, on 0330 124 6533.

For Sale
£400,000 Guide Price

3 Bedroom Detached House, Pheasant Oak, Coventry, CV4

Pheasant Oak, Coventry, CV4


Bayzos Estate Agents Primary Brand brand logo

Bayzos Estate Agents

9 The Square, Kenilworth

Description

Property location

Coventry

 

See the brochure section below for comprehensive overview of the property and location.

 

We have built the Key Facts for Buyers Guide to give you information on local schools with their ratings, satellite view so that you can see the surrounding areas, as well as local and major transport connections, and much more.

 

On the viewing we will provide additional information on the property and the area so that you can make an informed decision.

 

Refurbishments and Features

Open Plan Kitchen/Living Area | Immaculately Presented Throughout | Extended Property | Low Maintenance Garden

 

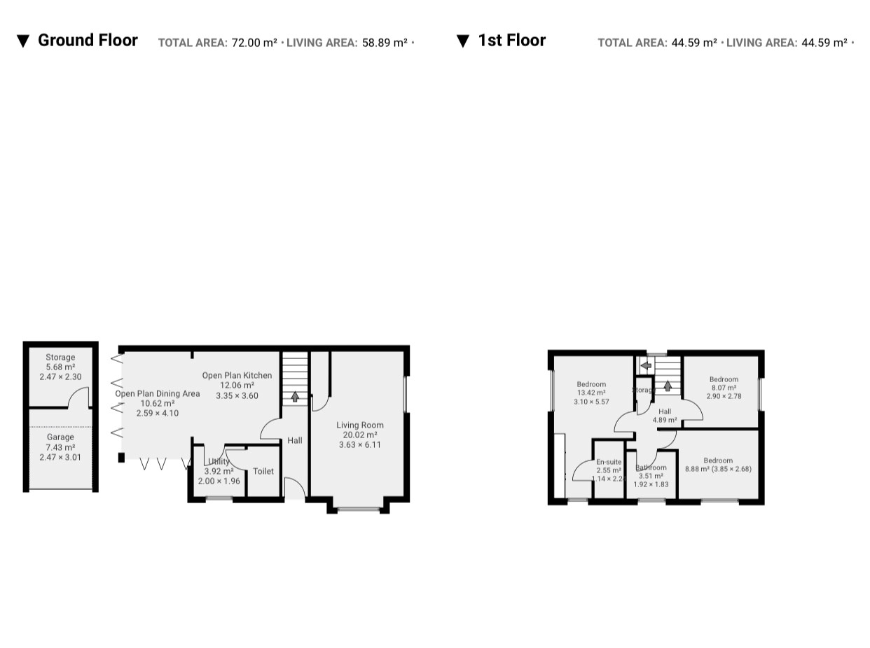
Room Measurements

 

Room dimensions and total floor area are included within our floor plan.

 

Tenure

 

Freehold

 

Outside Space

 

Front: Driveway | Lawn | Shrubs | Gravelled Area

 

Rear: Lawn | Low Maintenance

 

Additional Information

 

Selling Position: Purchasing Another Property

Age of the Property: 2000s

Last Sold: 2010

Council Tax Band: D

Local Authority: Coventry

Energy Performance Certificate Rating: D

Approx. Total Floor Area: 103 Sq. M.

Approx. Total Plot Size:  0.08 Acre

Heating System: Central Heating (Gas)

Boiler Age: 22 Year Old

Boiler Location: Utility | Airing Cupboard

Loft: Partially Boarded | Light

Type of Windows: Double Glazed

Age of Windows: 4 Years Old

Fireplace: Electric

Fuse Box Location: Downstairs W.C

Garden Orientation: North (N)

 

Material Information Parts B & C

 

History of Subsidence: No

Unsafe Cladding: No

Asbestos: No

Any Rights of Way: No

 

Please view the property brochure section for further Material Information Parts B and C


EPC Rating: D

Key Features

  • Sought After Location of Coventry
  • Open Plan Kitchen/Dining Room With Bi-Fold Doors to Garden
  • Master Bedroom With En-Suite & Fitted Wardrobes
  • Extended Property
  • Garage & Driveway Offering Off Road Parking
  • Downstairs W/C & Utility Room
  • Low Maintenance Garden
  • Perfect Family Home
  • EPC Current: D Potential: B
  • Approx Floor Area: 103 SQM

Property Details

  • Property type: House
  • Property style: Detached
  • Price Per Sq Foot: £361
  • Approx Sq Feet: 1,109 sqft
  • Plot Sq Feet: 3,305 sqft
  • Property Age Bracket: 2000s
  • Council Tax Band: D
Please note, property and plot sizes displayed are for guidance purposes only and may have been derived from publicly available information over which neither the agent nor Street.co.uk have control.

Floorplans

Outside Spaces

Parking Spaces

Driveway

Capacity: 2

View Photos

Garage

Capacity: 1

Location

Properties you may like

By Bayzos Estate Agents

Disclaimer - Property ID 068024ff-bce2-45db-9d63-520a06664b7d. The information displayed about this property comprises a property advertisement. Street.co.uk and Bayzos Estate Agents makes no warranty as to the accuracy or completeness of the advertisement or any linked or associated information, and Street.co.uk has no control over the content. This property advertisement does not constitute property particulars. The information is provided and maintained by the advertising agent. Please contact the agent or developer directly with any questions about this listing.