Book a Viewing

To book a viewing for this property, please call Mansell McTaggart Horsham, on 01403 263000.

To book a viewing for this property, please call Mansell McTaggart Horsham, on 01403 263000.

For Sale
£380,000

3 Bedroom Terraced House, Elm Grove, Horsham, RH13

Elm Grove, Horsham, RH13


Colour Logo - Full brand logo

Mansell McTaggart Horsham

Mansell Mctaggart, 26 Carfax

Description

A well located and good sized 3 bedroom, 3 storey mid terraced house, built in the 1950s with driveway for 2 vehicles, west facing garden and no onward chain.

The property is situated in central Horsham, within school catchment of excellent schools and striking distance of the town centre, railway station and country walks.

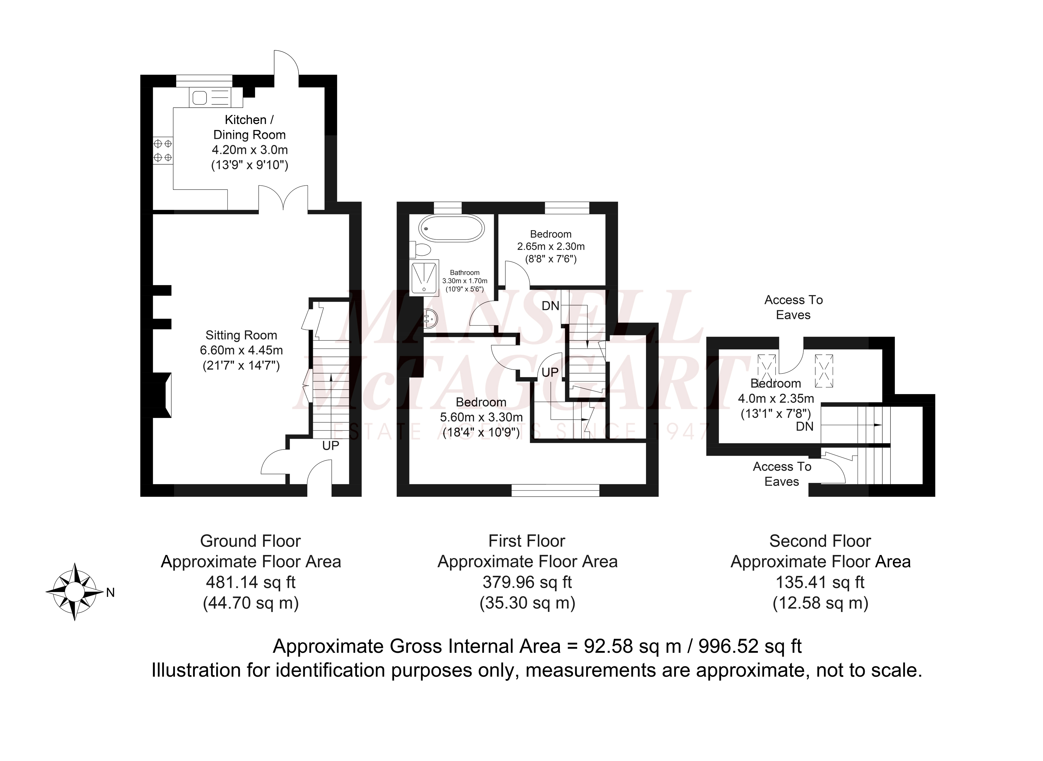
The accommodation comprises: entrance hallway, good sized sitting room with storage and wood burner. The kitchen/dining room is fitted with a selection of Beech effect units, integrated appliances and doors onto the garden.

On the first floor there are 2 well proportioned bedrooms and family bath/shower room.

On the second floor there is a further bedroom with eaves storage and pleasant outlook towards Denne Hill.

Benefits include double glazed windows, gas fired central heating to radiators (Worcester Bosch combination boiler located in the kitchen/dining room) and engineered Oak flooring.

A driveway provides parking for 2 vehicles.

The 61’ x 17’ west facing rear garden offers a good degree of privacy and is lawned with substantial paved patio, timber framed shed and side access. There is a concrete base to the rear of the plot which lends itself for a studio or cabin.


EPC Rating: C

Key Features

  • 3 well proportioned bedrooms
  • 3 storey mid terraced house
  • Built in the 1950s
  • Driveway for 2 vehicles
  • West facing garden
  • Close to town centre, railway station and country walks
  • Excellent school catchment
  • No onward chain

Property Details

  • Property type: House
  • Property style: Terraced
  • Plot Sq Feet: 1,959 sqft
  • Council Tax Band: C
Please note, property and plot sizes displayed are for guidance purposes only and may have been derived from publicly available information over which neither the agent nor Street.co.uk have control.

Floorplans

Location

The vibrant town of Horsham offers residents and visitors a cultural mix of heritage and state-of-the-art attractions. At its heart, the Carfax is alive with twice-weekly markets, bandstand entertainment and an assortment of enticing shops. Nearby you can find the serenity of the Causeway, home to the historical museum, art gallery and a treasure trove of 17th century properties. Around the corner, Horsham’s multi-million-pound transformation of Piries Place accommodates a specialist vegan market, contemporary Everyman cinema and reputable indoor and alfresco restaurants and bars. Familiar high-street and independent retailers, restaurants and coffee shops can be found in East Street and Swan Walk. Fine-dining and 5* spa hotels, pubs, delicatessen, bakeries, ample parking facilities and a choice of supermarkets are at hand in and around Horsham, serving the lifestyle needs of the whole family. Horsham has an exceptional choice of schools in the area, with high Ofsted ratings and Collyer’s college is a short walk from the town centre. Community facilities are in abundance with a well-stocked library and an array of leisure activities including rugby, football, cricket, gymnastics, dance and martial arts. Golfers have a choice of two local courses and driving range, and Horsham joggers have a welcoming club. For family fun, Horsham Park has significant attractions with a wildlife pond, swimming pools, tennis courts, café, aerial adventure, seasonal events and nature gardens. The Downs Link offers inviting opportunities for scenic family walks and keen cyclists. As a commuter town serving London, Gatwick and the South Coast, there are direct train links to all central and rural locations.

Properties you may like

By Mansell McTaggart Horsham

Disclaimer - Property ID 20f3e28e-ce43-49af-b4be-5357c887e792. The information displayed about this property comprises a property advertisement. Street.co.uk and Mansell McTaggart Horsham makes no warranty as to the accuracy or completeness of the advertisement or any linked or associated information, and Street.co.uk has no control over the content. This property advertisement does not constitute property particulars. The information is provided and maintained by the advertising agent. Please contact the agent or developer directly with any questions about this listing.