Book a Viewing

To book a viewing for this property, please call Allen Heritage, on 020 8656 2525.

To book a viewing for this property, please call Allen Heritage, on 020 8656 2525.

For Sale
£445,000 Guide Price

Land, Loughton, Essex.

Loughton, Essex.


Allen Heritage Primary Brand brand logo

Allen Heritage

Description

The Approval:

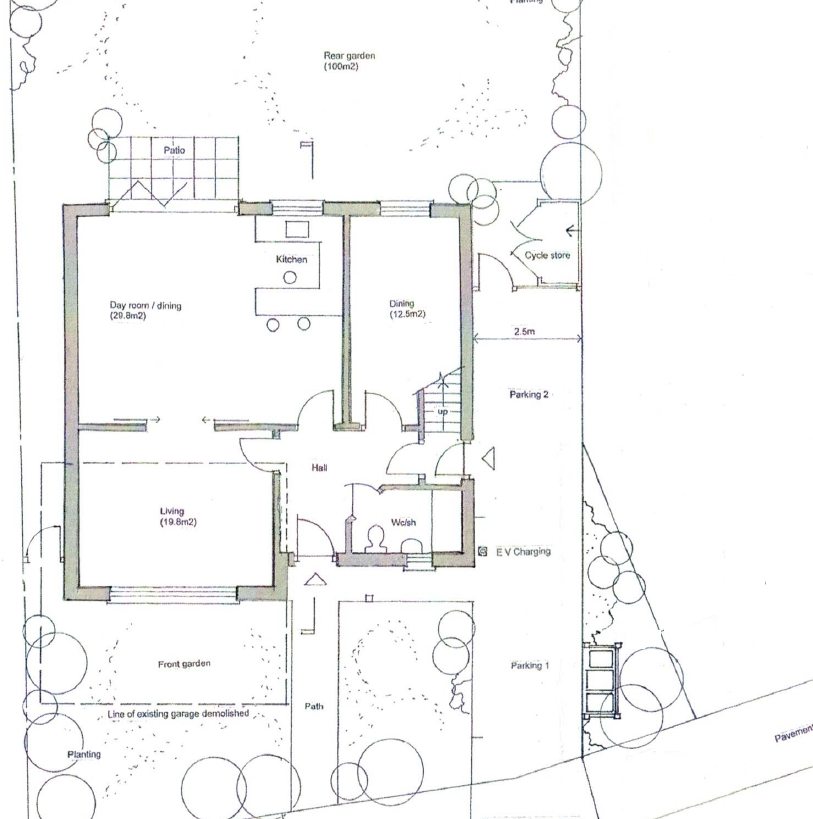
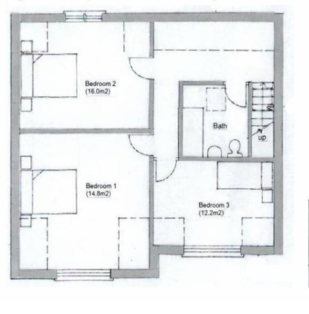
Approval has been granted for a single residential three-bedroom detached dwelling with two parking spaces & cycle store for two adult and two children’s cycles.

The newly created garden will span approximately 100M2.

An existing dropped kerb to the highway is in place.

The Current Site:

The proposed site consists of land between detached dwellings, facing to the Southeast with a detached garage structure on the plot. The site was previously part of a garden.

There is a double garage on the site to be demolished, and a swimming pool covered but filled with garden waste.

Total Site Area:
Approximately 275.00 SQM

Tenure:
Freehold

Location:

Rail:
Loughton Underground Station (Central Line) within convenient reach

Roads:
Excellent connectivity via the M11, M25 and A406

Amenities:
Loughton High Street offers a wide range of independent retailers, cafés, and services

Leisure:
Restaurants, cafés and pubs located throughout Loughton and surrounding areas

Viewings:
Strictly by appointment only

Information Available Upon Request. (Contact the land team)

Brochure

Planning Approval & Conditions

Design & Access Statement

S106 Document

Local Comparable’s

Key Features

  • Full planning permission granted for a 3-bedroom detached dwelling
  • Suitable for small developer, self-builder or owner-occupier build
  • Back land small scale scheme
  • Established residential location
  • Central Line access via Loughton Underground Station
  • Close proximity to Epping Forest and Loughton High Street
  • Freehold Site
  • Vacant

Property Details

  • Property type: Land
  • Council Tax Band: TBD
Please note, property and plot sizes displayed are for guidance purposes only and may have been derived from publicly available information over which neither the agent nor Street.co.uk have control.

Location

Loughton Underground Station (Central Line) is within convenient reach, with good local bus services and excellent road connections via the M11, M25 and A406. Loughton High Street provides a wide range of shops, cafés, restaurants and pubs.

Properties you may like

By Allen Heritage

Disclaimer - Property ID 2a366be4-7734-4b1e-91a8-922759d532dd. The information displayed about this property comprises a property advertisement. Street.co.uk and Allen Heritage makes no warranty as to the accuracy or completeness of the advertisement or any linked or associated information, and Street.co.uk has no control over the content. This property advertisement does not constitute property particulars. The information is provided and maintained by the advertising agent. Please contact the agent or developer directly with any questions about this listing.