2 Bedroom Mid-Terraced House, Maple Vale, Beauly, IV4

Maple Vale, Beauly, IV4

Description

Introducing this delightful 2-bedroom mid-terraced house, offering generous space, modern finishes, and excellent natural light throughout.

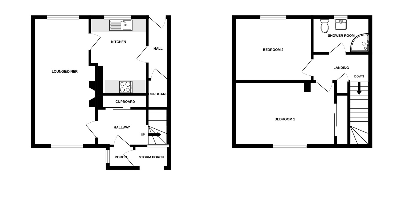
The property opens with a welcoming porch and entrance hall, complete with a large storage cupboards. The bright open-plan lounge/dining room features triple-aspect windows, a log burning stove with feature fireplace, ceramic tiled flooring, and fitted blinds — creating a warm and inviting atmosphere.

The modern kitchen is fitted with contemporary units, contrasting worktops and splashbacks, stainless steel cooker hood, 1.5 sink, and plumbing for a washing machine, with garden access through a rear hall and additional under-stair storage.

Upstairs, a light-filled landing leads to two well-proportioned double bedrooms — the master with mirrored wardrobes and a front-facing triple window, and the second bedroom neutrally decorated with new carpets and views over the rear garden towards the river beauly.

The bathroom includes a modern WC and hand basin, bath with shower over, heated towel rail, and built-in shelving.

Externally, the home benefits from front and rear gardens, the front garden is laid to chipping stoves for ease of maintenance. The rear garden is private and includes a handy garden shed. There is ample parking to the rear and also parking on street to the front.

This beautifully presented property combines comfort, practicality, and style — ideal for first-time buyers, couples, or downsizers seeking a peaceful home in a well-connected location.

Additional Details


Home Report Available By Contacting invernesssales@homesweethomemoves.co.uk

Entry Is By Mutual Agreement

Viewing By Appointment Through Home Sweet Home on 01463 710 151 or call Ross on 07490 545 648

Any offers should be submitted in Scottish legal form to hello@homesweethomemoves.co.uk

These particulars, whilst believed to be correct do not and cannot form part of any contract. The measurements have been taken using a sonic tape measure and therefore are for guidance only.


EPC Rating: C

Key Features

  • Bright and Spacious Living Area – Open-plan lounge/dining room with windows that flood the space with natural light
  • Charming Log-Burning Stove – Creates a warm, cosy atmosphere complemented by a feature fireplace
  • Modern Fitted Kitchen – Sleek contemporary units, contrasting worktops, and splashbacks with direct access to the rear garden
  • Generous Storage Throughout – Including large hallway cupboards and under-stair storage for added practicality
  • Two Well-Proportioned Double Bedrooms – The master features mirrored wardrobes and triple windows; the second enjoys serene views towards the River Beauly
  • Stylish Modern Bathroom – Complete with bath and shower over, heated towel rail, and useful built-in shelving
  • Private, Low-Maintenance Gardens – Front garden laid to chippings and an enclosed rear garden with garden shed for extra storage
  • Ideal Location – Peaceful setting with easy access to local amenities, perfect for first-time buyers, couples, or downsizers

Property Details

  • Property type: House
  • Property style: Mid-Terraced
  • Approx Sq Feet: 721 sqft
  • Council Tax Band: A
Please note, property and plot sizes displayed are for guidance purposes only and may have been derived from publicly available information over which neither the agent nor Street.co.uk have control.

Rooms

Porch

Hall

3.02m x 1.75m

Lounge/dining room

5.87m x 3.02m

Kitchen

3.53m x 2.44m

Bedroom one

4.45m x 3.07m

Bedroom Two

3.43m x 3.00m

Bathroom

2.66m x 1.67m

Floorplans

Location

Situated just 12 miles west of Inverness, Beauly is a picturesque Highland village known for its friendly community, historic charm, and beautiful surroundings. The village offers local shops, cafés, a primary school, and a train station, with easy access to Inverness and the west coast. Perfect for those seeking rural tranquillity with modern convenience.

Properties you may like

By Home Sweet Home Estate Agents

Disclaimer - Property ID 339f210b-3c47-454b-8c31-698fa7676c7a. The information displayed about this property comprises a property advertisement. Street.co.uk and Home Sweet Home Estate Agents makes no warranty as to the accuracy or completeness of the advertisement or any linked or associated information, and Street.co.uk has no control over the content. This property advertisement does not constitute property particulars. The information is provided and maintained by the advertising agent. Please contact the agent or developer directly with any questions about this listing.