Book a Viewing

To book a viewing for this property, please call Allen Heritage, on 020 8777 3000.

To book a viewing for this property, please call Allen Heritage, on 020 8777 3000.

For Sale
£700,000 Guide Price

3 Bedroom Semi Detached House, The Lees, Shirley

The Lees, Shirley


Allen Heritage Primary Brand brand logo

Allen Heritage

Description

This truly impressive double-fronted family home, in superb decorative order and extremely cleverly extended, will surely impress even the most discerning of purchasers. The delightful interior offers really versatile and bright accommodation, offering great spaces for entertaining family and friends and for everyday family life. The peaceful dining room is located at the front of the home, and the impressive 16' lounge has double doors onto the truly outstanding double-glazed conservatory. Adding to the appeal of this home is the versatile 18’7 room, which could be used as a fourth bedroom, additional reception room, guest room, or a great ‘working from home’ solution. The kitchen/breakfast room here is of a high quality and is the hub of the home, featuring granite work surfaces and built-in appliances. A delightful garden can be found at the rear, complete with a timber cabin, and you’ll find stunning outlooks across ‘Millers Pond’.

Three generously proportioned genuine double bedrooms, all featuring built-in wardrobes, can be found up on the first floor alongside the luxurious family bathroom, and there is an added advantage of a loft room that makes a great study and benefits from ample storage space. Offering ample space for a large family to live very comfortably indeed, this property also includes a garage converted into a gym, good quality floor coverings throughout, character features including cast iron fireplaces, and a handy ground-floor WC. Rarely do homes of this calibre come onto the market; therefore, a viewing comes highly recommended.

Location
The Lees is a peaceful residential location on the highly regarded south side of Shirley. Within a few hundred yards is Wickham Road, where you will find numerous bus routes to Bromley and Croydon town centres and East Croydon mainline railway station, which offers fast rail services to central London and Gatwick Airport. Local shops, restaurants, cafes, and schools are also within easy reach on Wickham Road, with West Wickham High Street around 0.75 of a mile away. Local parks, including the delightful Millers Pond and highly regarded primary and secondary schools, are also within easy reach. For full directions, please contact Allen Heritage Estate Agents in Shirley.

Gower Houses
This style of house is known locally as the a ‘Gower’ built semi. Held in regard due to the quality of build, this is a fine example of the 1930's architecture and construction, particularly impressive of this design is the size of the reception rooms and genuine double bedrooms. The extensions carried out here have added to this enviable architectural success.

Further Extension Potential
Whilst the property already benefits from extended, comprehensive accommodation, there is scope for further additions to the rear of the property if even more living space is required. The loft space could be converted further to provide an official fouth bedroom and shower room, and there is also potential to create a ‘granny annex’ style set up on the ground floor. Obviously any improvement of this nature will require the relevant local authority consents.

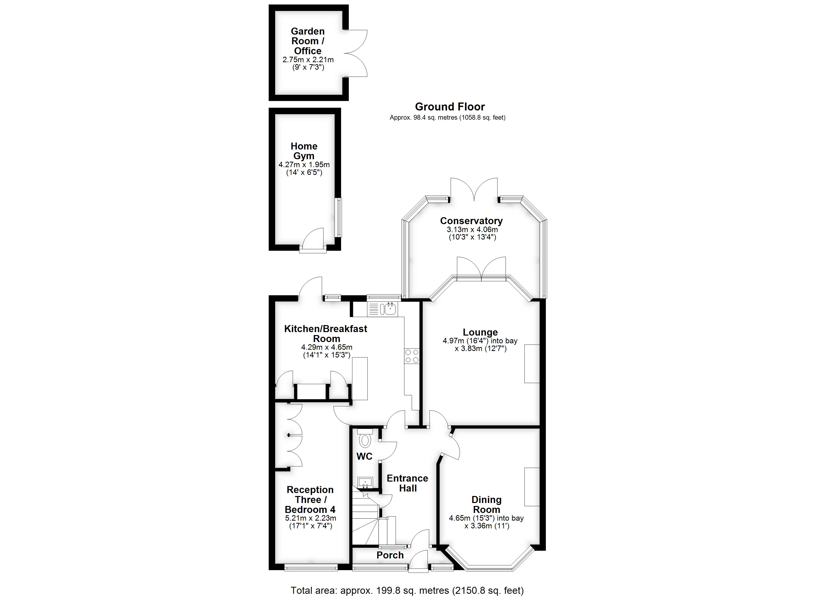
The First Floor Accommodation
Entrance Hall
Porch

Dining Room 4.65m (15'3") into bay x 3.36m (11')
Kitchen/Breakfast Room 4.65m (15'3") x 4.29m (14'1")
Lounge 4.97m (16'4") into bay x 3.83m (12'7")
Home Gym 4.27m (14') x 1.95m (6'5")
Garden Room / Office 2.75m (9') x 2.21m (7'3")
Conservatory 4.06m (13'4") x 3.13m (10'3")
Reception Three / Bedroom 4 5.21m (17'1") x 2.23m (7'4")
Ground Floor Cloakroom

The First Floor Accommodation
Landing

Bedroom 1 5.08m (16'8") into bay x 3.04m (10')
Bedroom 2 4.60m (15'1") into bay x 2.77m (9'1")
Bedroom 3 4.90m (16'1") x 3.16m (10'4")
Bathroom 3.85m (12'7") x 2.57m (8'5")

The Second Floor Accommodation
Study / Loft Room
 4.01m (13'2") max x 3.11m (10'2")
Eaves Storage


EPC Rating: D

Key Features

  • Superior Semi Detached Family Home
  • Enviable South Side Location Backing Millers Pond
  • Exceptionally Well Presented Accommodation
  • Delightful Rear Garden With Secluded Leafy Outlooks
  • Spacious Reception Rooms & Good Sized Bedrooms
  • Impressive Kitchen Breakfast Room
  • Really Versatile Comprehensive Layout
  • Great Family Home - Viewing Recommended

Property Details

  • Property type: House
  • Property style: Semi Detached
  • Price Per Sq Foot: £431
  • Approx Sq Feet: 1,625 sqft
  • Plot Sq Feet: 4,004 sqft
  • Property Age Bracket: 1910 - 1940
  • Council Tax Band: E
Please note, property and plot sizes displayed are for guidance purposes only and may have been derived from publicly available information over which neither the agent nor Street.co.uk have control.

Outside Spaces

Rear Garden

25.00m x 10.00m

A delightful, large and secluded garden enjoying a leafy outlook backing Millers Pond. Featuring a patio area ideal for summer barbeques and outdoor entertaining, with the large lawn perfect for the kids to run free, and is surrounded by well-stocked mature flower and shrub borders. There is also an 'Anderson' air raid shelter, providing historical interest too. This outside space needs to be seen to be fully appreciated.

Parking Spaces

Driveway

Capacity: 2

The frontage provides off-street parking and a pleasant approach to the property.

Location

Properties you may like

By Allen Heritage

Disclaimer - Property ID 41c008ca-46ae-4f15-9cc0-c220a46ced87. The information displayed about this property comprises a property advertisement. Street.co.uk and Allen Heritage makes no warranty as to the accuracy or completeness of the advertisement or any linked or associated information, and Street.co.uk has no control over the content. This property advertisement does not constitute property particulars. The information is provided and maintained by the advertising agent. Please contact the agent or developer directly with any questions about this listing.