Book a Viewing

To book a viewing for this property, please call Sacha Scott, on 01737 887 674.

To book a viewing for this property, please call Sacha Scott, on 01737 887 674.

For Sale
£1,250,000 Guide Price

4 Bedroom Detached House, Lawn House, 61a Nork Way

Lawn House, 61a Nork Way


Sacha Scott Estate & Letting Agents Primary Brand brand logo

Sacha Scott

Sacha Scott Estate Agents, 9 Nork Way

Description

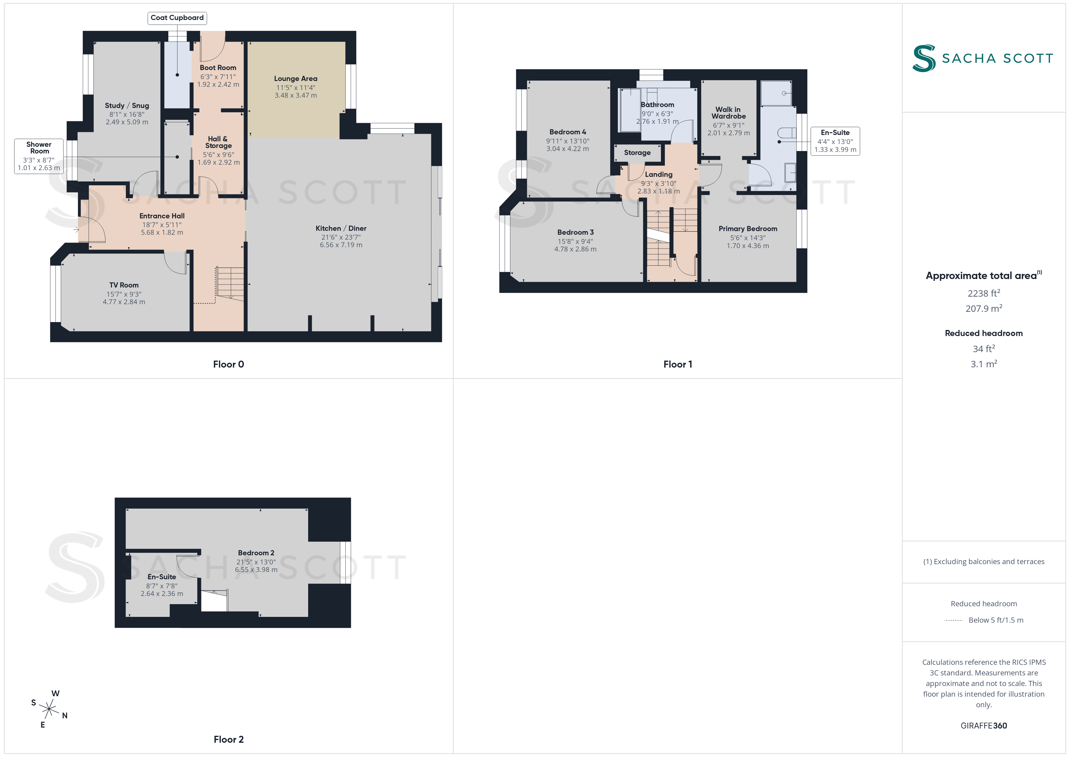
Ready to Move Into - One of 2 Brand New Detached Family Homes - 2,454 sqft / 228 sqm approx - 4 Bedrooms - 4 Bathrooms - Generous Ground Floor Living Space - Must be Seen to be Appreciated

Viewings by Appointment Only

Introducing Lawn House, a beautifully designed detached family home brought to you by Trinity Square Developments, known for delivering generous homes with quality finishes throughout. Like it’s neighbour, Loveall House, it’s name nods to the tennis court thought to have been shared by neighbours on this site in years gone by.

A Virtual Tour is available for this property, offering you the chance to explore the space in more detail and get a real feel for the layout at your own pace.

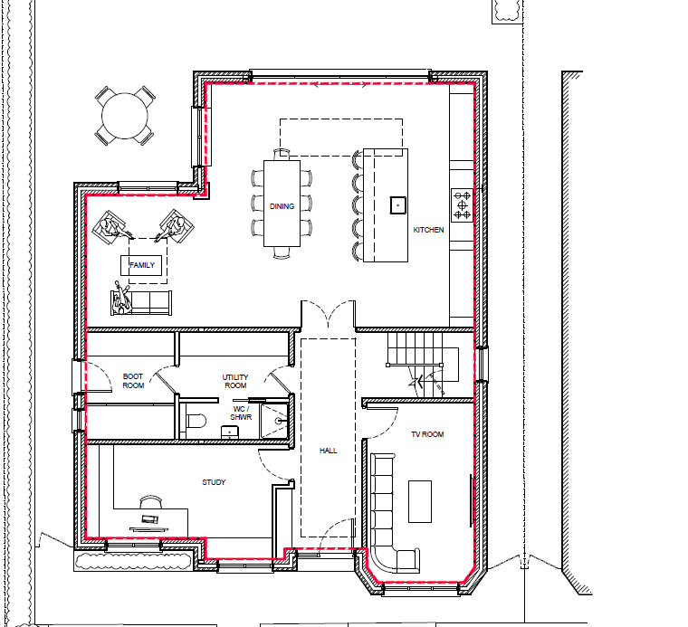
On the ground floor, a welcoming entrance hall opens up to a study, and a generous TV room, both of which overlook the front of this lovely family home. To the rear, a jaw droppingly spacious family room offers ample space for dining and lounge areas as well as a fabulous fitted kitchen with island, that leads onto an easy maintain garden with a patio area running the width of the house. The ground floor further offers a combined utility room, boot room and shower/WC.

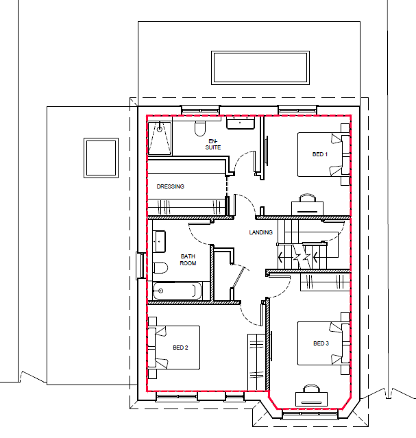
To the first floor there are 3 double bedrooms, one of which includes its own dressing area and en-suite shower room and a modern family bathroom. The second floor offers a generous primary suite with en-suite shower room, storage and dressing room.

The front of this beautiful home offers parking for 2 cars and an EV charger and to the rear a landscaped garden offering patio and lawned areas and a shed with electrics.

Location & Lifestyle

Lawn House is located on Nork Village parade, a friendly hub of everyday amenities. Here you’ll find convenience stores and a post office, a café and bakery, a good choice of takeaways and restaurants, hair and beauty salons, and a pharmacy. A short drive takes you to Banstead High Street, with a wider range of shops, supermarkets, boutiques, and eateries. For leisure, the great expanse of Nork Park is a ten minute walk away and offers football, cricket, tennis, and a children’s play area, as well as a clubhouse and community centre offering leisure activities. The open green spaces of Banstead Downs is also nearby and Epsom Downs, with its famous racetrack and country pubs, is reachable by car within 5 minutes.

Ideally located in a much loved and highly regarded village community, this lovely property won’t be around for long - early viewing is highly recommended.

Transport

  • Rail: Banstead station 4–5 mins walk - services towards London Victoria via Sutton.

  • Bus: Routes reachable on foot serve Banstead, Sutton, Epsom and surrounding areas.

  • Road: Quick access to A217 and M25 (J8/9) for London, Gatwick, Heathrow and the South East.

Schools

Nearby schools include (Please note: School catchment areas vary annually and should be checked with Surrey County Council and the schools directly):

  • Warren Mead and Banstead Infant & Junior Schools

  • The Beacon School (secondary)

  • Independent options including Aberdour, Greenacre and Epsom College.

Key Property Information

  • Type: Detached newly built 4 bed family home

  • Warranty: 10 year Buildzone

  • Tenure: Freehold

  • Private Road Maintenance Charge: approx £200 per annum

  • Council Tax: G, approx £4,081.32 pa

  • Expected EPC: C

  • Construction: Modern build, brick and block with contemporary finishes

  • Utilities: Mains services

  • Broadband: Virgin Fibre

Key Specifications

Kitchen & Dining

Bespoke kitchens by Krieder, individually designed for each home

Calacatta Gold polished worktops and splashbacks for a high-end finish

Stainless steel Quooker tap delivering instant boiling water

Bosch integrated appliances, including:

• Full-height fridge and freezer

• Induction hob with five cooking zones

• Integrated dishwasher

Three full-height larder units for generous storage

Pop-up sockets built into island worktops

Interiors & Flooring

Amtico flooring throughout ground floor, paired with underfloor heating

Luxury carpets fitted to first and second floors

Elegant stair runner from ground to first floor

Bathrooms & Finishes

Coalbrook taps and showers

Roca white sanitaryware

Porcelanosa wall and floor tiling to main bathroom and ensuite

Porcelanosa vanity unit with Krion® sink to master ensuite

Heating, Energy & Sustainability

Heating and hot water provided by Air Source Heat Pump (ASHP) system (7 year warranty)

Underfloor heating to ground floor with individual zone controls

High-performance insulation in line with current building regulations

Energy-efficient LED lighting throughout

Electric Vehicle Charging Point (EVCP) to each property

The is no Gas supply to this property

Please note: Some images shown have been CGI or AI-generated for illustrative purposes whilst the property is being built.

Disclaimer

These property details are prepared in good faith from information supplied by the seller and are believed to be correct. However, they are provided for guidance only and do not form part of any contract. Neither the agent nor the seller accepts responsibility for any errors, omissions or misstatements. Buyers must satisfy themselves by inspection, survey, and independent legal advice before proceeding with a purchase.

About Us

Here to deliver a personal service that surpasses others, our family business is built on a solid foundation of outstanding customer service. We exist to make the moving process stress free and smooth for all parties involved. A vast majority of our business comes via referrals and recommendations from happy sellers, buyers, tenants and landlords and as such we are confident that you will love our service as much as others before you have. We love what we do, and it shows. Your property is safe with us, we are a member of The Property Ombudsman Scheme and the Propertymark Client Money Protection Scheme. Our landlord and tenant fees can be found on sachascott.com.


Key Features

  • Register Now for January Launch Viewings
  • 1 of Just 2 Beautiful New Homes
  • Central Nork Village Location
  • Generous Open Plan Kitchen / Diner Area
  • Additional/Separate TV Room
  • 4 Bedrooms
  • 4 Bathrooms
  • Study/Playroom
  • EV Charger
  • Combined Utility/Boot/Shower Room

Property Details

  • Property type: House
  • Property style: Detached
  • Price Per Sq Foot: £509
  • Approx Sq Feet: 2,454 sqft
  • Council Tax Band: G
Please note, property and plot sizes displayed are for guidance purposes only and may have been derived from publicly available information over which neither the agent nor Street.co.uk have control.

Rooms

Reception / TV Room

4.77m x 2.84m

View Reception / TV Room Photos

Study / Snug

2.49m x 5.09m

View Study / Snug Photos

Lounge Area

3.48m x 3.47m

View Lounge Area Photos

Kitchen / Breakfast / Diner

6.56m x 7.19m

View Kitchen / Breakfast / Diner Photos

Utility Room

2.92m x 1.69m

View Utility Room Photos

Boot Room

2.42m x 1.92m

View Boot Room Photos

Downstairs Shower Room

1.01m x 2.63m

View Downstairs Shower Room Photos

Primary Bedroom

5.60m x 4.30m

View Primary Bedroom Photos

Walk In Wardrobe/Dressing Room

2.01m x 2.79m

View Walk In Wardrobe/Dressing Room Photos

En-Suite

1.33m x 3.99m

View En-Suite Photos

Loft / Bedroom 2

6.55m x 3.98m

View Loft / Bedroom 2 Photos

Bedroom 2 En-Suite

2.64m x 2.36m

View Bedroom 2 En-Suite Photos

Bedroom 3

4.78m x 2.86m

View Bedroom 3 Photos

Bedroom 4

3.04m x 4.22m

View Bedroom 4 Photos

Family Bathroom

2.76m x 1.91m

View Family Bathroom Photos

Entrance Hall

5.68m x 1.82m

View Entrance Hall Photos

Landing Area

2.18m x 1.83m

Floorplans

Outside Spaces

Garden

15.52m x 13.95m

The private rear garden measures approximately 50ft x 45ft with a north westerly orientation offers a large patio area for entertaining with steps up to a lush generous lawn, with external lighting, garden tap and side access on both sides.

View Photos

Parking Spaces

Driveway

Capacity: 2

The front driveway offers parking space for 2 cars.

View Photos

Location

Properties you may like

By Sacha Scott

Disclaimer - Property ID 46ac796b-8dac-4acd-bea7-43384553d469. The information displayed about this property comprises a property advertisement. Street.co.uk and Sacha Scott makes no warranty as to the accuracy or completeness of the advertisement or any linked or associated information, and Street.co.uk has no control over the content. This property advertisement does not constitute property particulars. The information is provided and maintained by the advertising agent. Please contact the agent or developer directly with any questions about this listing.