Book a Viewing

To book a viewing for this property, please call Henry Adams - Chichester, on 01243 533377.

To book a viewing for this property, please call Henry Adams - Chichester, on 01243 533377.

For Sale
£375,000 Guide Price

3 Bedroom Semi Detached Barn Conversion, Saxon Meadow, Tangmere, PO20

Saxon Meadow, Tangmere, PO20


Henry Adams Brand LLP brand logo

Henry Adams - Chichester

Henry Adams LLP, Rowan House Baffins Lane

Description

A charming three bedroom, two bathroom barn conversion in a Sussex village setting.

Forming part of Saxon Meadow, a charming collection of converted flint and brick agricultural barns, this delightful home is situated in the traditional Sussex village of Tangmere. The development enjoys a distinctly semi-rural ambience, being accessed via Church Lane, which passes the historic St Andrew’s Church of England, dating back to the early 12th century. Positioned on the periphery of the development, the property benefits from an additional meadow to the rear (currently being rewilded), owned and maintained by the residents’ management company.

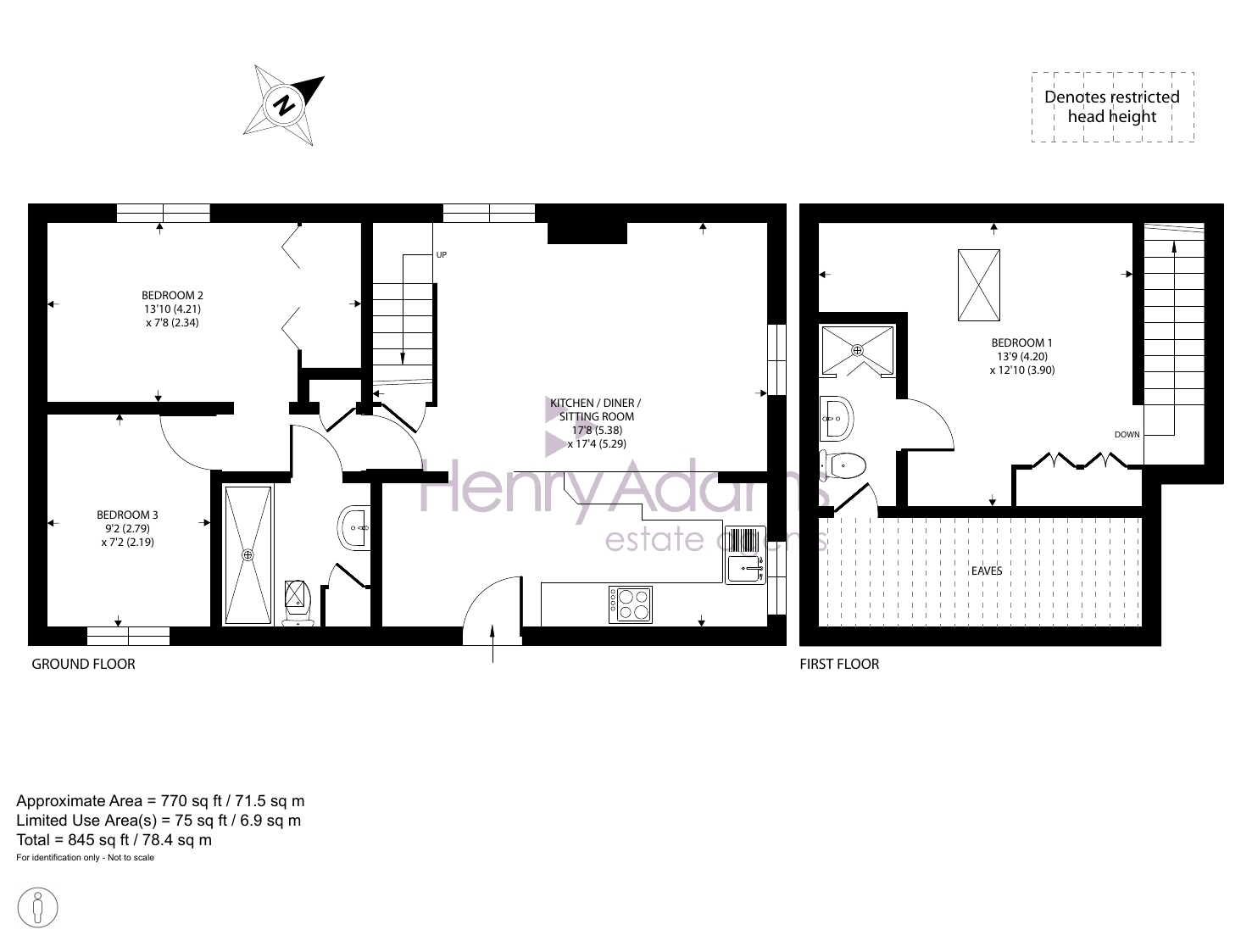
Inside, the accommodation is both versatile and characterful, featuring bedrooms and shower rooms on both the ground and first floors.

The front door opens into a bright, open-plan sitting room and kitchen, enhanced by a beamed vaulted ceiling that adds to the feeling of light and space. A small inner hall leads to two ground-floor bedrooms and a shower room, the smaller of the two rooms would also make an ideal study or home office. Upstairs, a bedroom benefits from its own en-suite shower room, creating a comfortable private suite.

Outside, there are beautifully maintained communal courtyard-style gardens, which contrast delightfully with a wildlife meadow at the rear, perfect for nature lovers.

The property also includes a garage, with additional allocated visitor parking available within the development.

Lease: 960 years remaining (End date 01/05/2985)

Service Charge: TBC

Ground Rent: TBC

Chichester District Council - 25/26 Tax Band D £2,360.15 EPC-C

Directions - From Chichester proceed east along the A27 and at the Tangmere/Boxgrove roundabout take the third exit of into Meadow Way and proceed to the end. Turn left into Tangmere Road, passing the village shop on your right hand side and take the next turning right into Church Lane. Saxon Meadow development can be found towards the end. Proceed into the development and number 19 is on the left as the road bends round to the garages. What3words - belief.snooping.husky


EPC Rating: C

Key Features

  • Traditional village location
  • Open plan sitting room and kitchen with vaulted ceiling
  • Ground floor bedroom and shower room
  • Bedroom three/study
  • First floor bedroom and en-suite shower room
  • Attractive communal gardens and wildlife field
  • Garage and allocated visitor parking

Property Details

  • Property type: Barn Conversion
  • Property style: Semi Detached
  • Price Per Sq Foot: £471
  • Approx Sq Feet: 797 sqft
  • Plot Sq Feet: 893 sqft
  • Council Tax Band: D
  • Tenure: Leasehold
  • Lease Expiry: 24/10/2985
  • Ground Rent:
  • Service Charge: Not Specified
Please note, property and plot sizes displayed are for guidance purposes only and may have been derived from publicly available information over which neither the agent nor Street.co.uk have control.

Floorplans

Outside Spaces

Communal Garden

Parking Spaces

Garage

Capacity: 1

Location

Tangmere offers a comprehensive range of local amenities including, a medical centre, dental surgery, and local convenience store incorporating a post office. There is also a primary school, parish church, Tangmere Military Aviation Museum and a regular bus service into Chichester. Three miles to the west lies the cathedral city of Chichester which offers excellent high street shopping, many fashionable restaurants, cafes and bars, the Festival Theatre and a mainline station to London Victoria. Nearby Goodwood is famous for its many event days including the world renowned Festival of Speed and Goodwood Revival for motor racing enthusiasts and a season of horse racing including the Qatar Goodwood Festival. There are superb sailing facilities around Chichester Harbour and water sports from the beaches at West Wittering. The area is a paradise for wildlife enthusiasts, with beautiful walks and cycle tracks over the South Downs and around the harbour.

Properties you may like

By Henry Adams - Chichester

Disclaimer - Property ID 4909eaea-c820-403d-a355-b65136c9ee20. The information displayed about this property comprises a property advertisement. Street.co.uk and Henry Adams - Chichester makes no warranty as to the accuracy or completeness of the advertisement or any linked or associated information, and Street.co.uk has no control over the content. This property advertisement does not constitute property particulars. The information is provided and maintained by the advertising agent. Please contact the agent or developer directly with any questions about this listing.