Book a Viewing

To book a viewing for this property, please call Snapes Estate Agents Bramhall, on 0161 440 8700.

To book a viewing for this property, please call Snapes Estate Agents Bramhall, on 0161 440 8700.

For Sale
£119,000

1 Bedroom Apartment, Brent Moor Road, Bramhall, SK7

Brent Moor Road, Bramhall, SK7


Snapes Estate Agents Primary Brand brand logo

Snapes Estate Agents Bramhall

Snapes Estate Agents, Maple House Maple Road

Description

We are delighted to offer for sale this 1 double bedroom apartment for sale which is located in a popular residential location within Bramhall. Before reading this brochure, please take some time to look at the floor plans and photographs to ensure you understand the style, layout and size of the accommodation on offer. Please also note the information relating to the ownership share and related rules.

Located on the first floor, within this popular residential area which is know to many as “The New House Farm Development” this apartment provides an excellent opportunity for a buyer aged 55 or over to get onto the property ladder or stay on the property ladder. The advertised price of £119,000 is for a 70% share in the apartment with the remaining 30% owned by Onward Homes. There is no rent to pay on the 30% share and a nominal service charge of £119.57 which includes building insurance cover and also gardening.

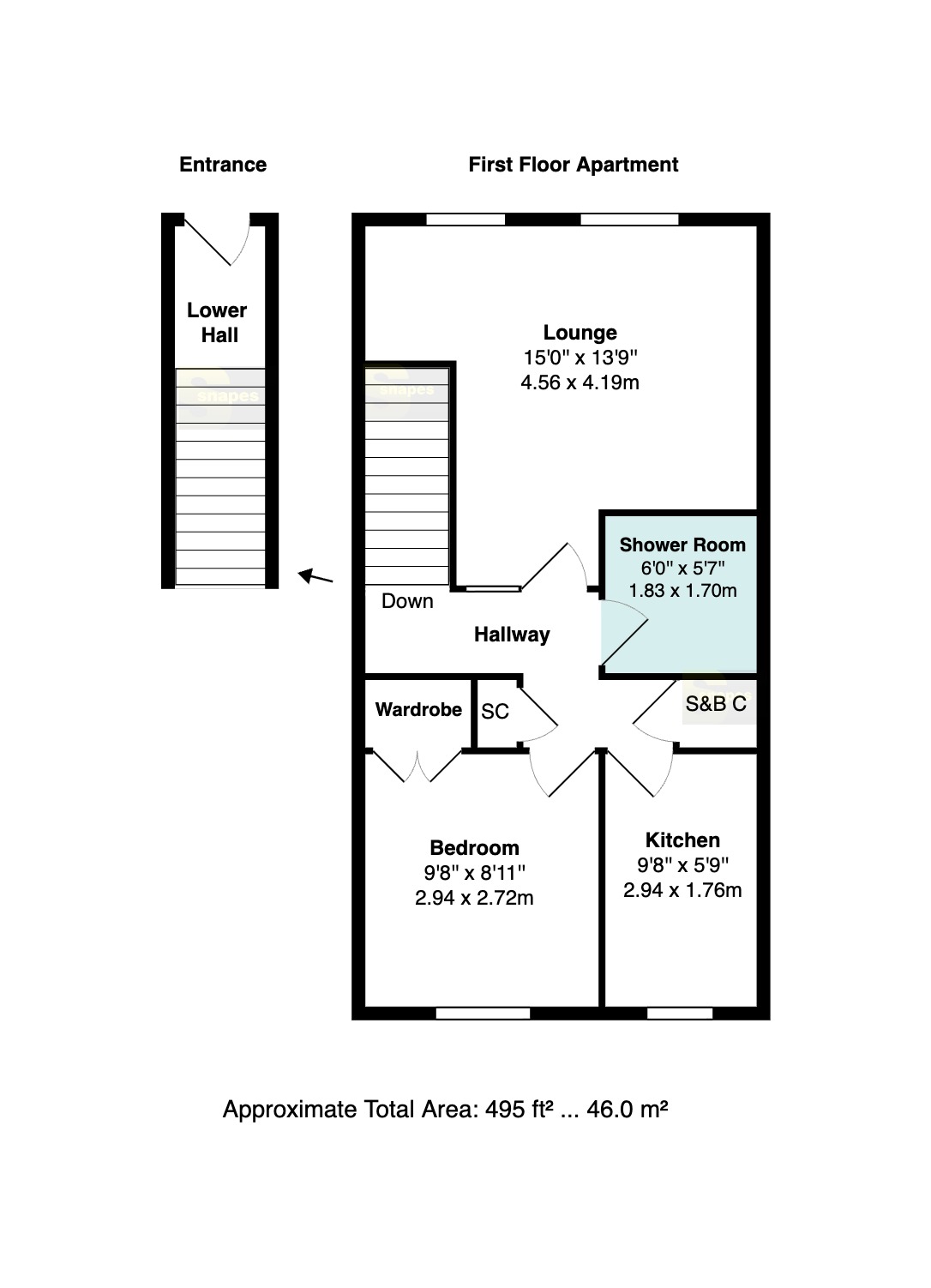
The apartment occupies a lovely position with the complex and boasts its own private ground floor access into the hall (see photo) which has stairs leading up to the main accommodation. Once at first floor level you will find another hall area which has access to a storage cupboard, window to the side aspect and access to the left space, which is fantastic for extra storage space. The hall then gives access to remainder of the rooms which include: a spacious lounge positioned to the front of the accommodation, with two windows adding light and providing a view to the front aspect. The kitchen is positioned to the rear of the accommodation and is fitted with a modern design range of units with both fitted and freestanding appliance space (see photos).

The bedroom is positioned to the rear of the accommodation with a range of built wardrobes too wall (see floor plan) and has windows looking out over the communal garden areas. Then you will notice the bathroom (see photos) which has been refitted and remodelled to provide the more practical walk in double shower space, with wash hand basin and comfort toilet (taller than usual!!) with stylish tiled walls and chrome fittings.

Outside, you have a storage cupboard adjacent to the apartment entrance and to the rear and side there is communal garden space, which is well cared for and provides space to sit out side and relax. To the front of the apartment complex there is resident parking.

We have been advised that you might be entitled to purchase if you have an existing pet, however any request to have a new pet will be put to a vote with the residents and Onwards Homes.

AVAILABLE TO VIEW NOW

The advertised price of £119,000 is for a 70% share in the apartment with the remaining 30% owned by Onward Homes. There is no rent to pay on the 30% share and a nominal service charge of £119.57 which includes building insurance cover and also gardening. Any interested buyer would need to complete the Onward Homes Application Form, available on Request.

In addition to the information below, please note that you might be entitled to purchase if you have an existing pet, however any request to have a new pet will be put to a vote with the residents and Onwards Homes.

Important - When reading this online please find and click on the link, tab or CTA which should be named "Material Information" or “Important Information” This link offers more detailed and important information about the property and surrounding area including but not limited to; tenure, title information, local planning applications, schools, transport and flood risks. Some websites will remove the link or change the name and if you are reading this on a printed document please visit the properties digital advert for the information.

  1. Tenure: Leasehold

  2. Lease Dates: 99 Years from

  3. Age Requirements: 55’s or over

  4. 70% Ownership at £119,000

  5. Rent Charge: No Rent on 30%

  6. Note: Application to Buy required

  7. Service Charge: £119.57 pcm

  8. Pets: Subject to conditions.

  9. Sublet: No subletting allowed.

Material Information / Important Information is provided by Spectre, Street or Sprift, who in turn source their information from open data sources as noted in the disclaimer section of each report. The information is provided in link format due to the vast layers of data available and to help show information which is as up to date as possible. The information should not replace you taking advice from your solicitor, surveyor, or you doing your own research to ensure you are happy with the content. The various websites where you might be reading this disclaimer sometimes rename or even remove the links to this information. They might also display the link in a place not as easy to find as we would like it to be. We can provide the link on demand.

Marketing: Our floor plan may not show some small recess areas and is usually measured into Bay Windows. It might not show all support posts or chimney breasts and any floor area or total area measurements quoted will include all the areas shown on the floor plan, unless otherwise noted, inc but not limited to attached or integral garages. We do not recommend you use our floor plan to decide on buying carpets or furniture without measuring the space yourself, as skirting boards may alter the space you require because we measure above skirting board level. No appliances including heating and electrics have or will be tested by Snapes Estate Agents and we cannot be held responsible for a seller changing or removing fittings which are currently shown or mentioned in our marketing.

Images Including Videos: Our photos and videos are provided to show the property in the best possible light and may have had some editing enhancements to improve the quality of the photo. The photos should not be used as an indication of what is included in the sale or rental lease, both internally and externally. If buying we strongly advise you consult with the Fixture and Fittings Form provided by the seller’s solicitor once a sale has been agreed, or when offering make it known to the office or your solicitor if there are any items you expect or want to be left, so this can be agreed prior to a sale progressing.


EPC Rating: D

Key Features

  • Shared Ownership 70% (Price Displayed)
  • First Floor Apartment
  • Aged 55 & Overs
  • Spacious Lounge to Front
  • Modern Shower Room
  • Modern Kitchen
  • Double Bedroom
  • Storage & Boarded Loft
  • Communal Gardens & Parking
  • Outhouse Storage

Property Details

  • Property type: Apartment
  • Price Per Sq Foot: £263
  • Approx Sq Feet: 452 sqft
  • Plot Sq Feet: 463 sqft
  • Property Age Bracket: 1970 - 1990
  • Council Tax Band: A
  • Property Ipack: Important Information
  • Tenure: Leasehold
  • Lease Expiry: 06/08/2113
  • Ground Rent:
  • Service Charge: £119.57 per month
Please note, property and plot sizes displayed are for guidance purposes only and may have been derived from publicly available information over which neither the agent nor Street.co.uk have control.

Floorplans

Outside Spaces

Front Garden

Off Street Parking to the front.

View Photos

Communal Garden

Communal garden area to the rear, which is maintained as part of the service plan.

View Photos

Parking Spaces

Off street

Capacity: 1

Space with off street parking area

View Photos

Location

Bramhall is a leafy suburban area located in South of the borough of Stockport, Greater Manchester, England. It’s known for its affluent neighbourhoods, large parks, scenic walking routes and historical sites. One of the most notable landmarks is Bramall Hall, a Tudor manor house surrounded by beautiful parkland, which serves as a museum and a venue for events. To the East and South of Bramhall the foothills of the Peak District are within easy reach making the village a perfect place quick escapes to the Countryside. Bramhall offers a blend of modern amenities and village charm, which includes independent businesses and multi National brands. It has a thriving village centre with shops, restaurants, and cafes, making it a popular place for families and professionals. Additionally, it’s well-connected to nearby Stockport and Manchester, with good transport links, including train services from Bramhall Station and the A555 Airport relief road. The area is also home to well-regarded schools catering for all age levels, making it a desirable location for residents.

Properties you may like

By Snapes Estate Agents Bramhall

Disclaimer - Property ID 512ca4ca-0212-4dfe-8fbf-15158d57c8f6. The information displayed about this property comprises a property advertisement. Street.co.uk and Snapes Estate Agents Bramhall makes no warranty as to the accuracy or completeness of the advertisement or any linked or associated information, and Street.co.uk has no control over the content. This property advertisement does not constitute property particulars. The information is provided and maintained by the advertising agent. Please contact the agent or developer directly with any questions about this listing.