Book a Viewing

To book a viewing for this property, please call Wilson Estate Agents, on 01246 822 138.

To book a viewing for this property, please call Wilson Estate Agents, on 01246 822 138.

For Sale
£320,000

3 Bedroom Detached House, The Osmond, Bromley Gardens, Mastin Moor

The Osmond, Bromley Gardens, Mastin Moor


Wilson Estate Agents Primary Brand brand logo

Wilson Estate Agents

T Wilson Estate Agents Ltd, 24 Market Place

Description

Introducing The Osmond, a thoughtfully designed three-bedroom detached home situated within an exclusive development of just 22 bespoke homes. Upon entering through the front door, you are welcomed into a spacious lounge that leads into an open-plan kitchen and dining area, creating an ideal space for both relaxing and entertaining. A convenient downstairs WC adds to the practicality of the ground floor layout.

Upstairs, the main bedroom benefits from an ensuite, while two additional double bedrooms provide ample space for family or guests. The main bathroom is impressively proportioned and features full height tiling, as do the ensuite facilities, lending a touch of luxury to every-day living. The property boasts an integral garage, offering secure parking and additional storage options.

Designed with the future in mind, this home comes equipped with an electric vehicle charging point, solar panels that enhance energy efficiency and contribute to reduced running costs, and a modern air source heat pump. The home is completed with a turfed garden. There blend of rural tranquillity and convenience, with picturesque countryside walks just moments away, as well as the M1 motorway located nearby for swift connections north and south. Excellent rail links and airports are also within easy reach, making this an ideal choice for commuters and those who value accessibility.

Key Features

  • The Osmond | Three-Bedroom Detached Home
  • Exclusive Development Consisting of 22 Bespoke Homes
  • Fitted With Solar Panels To Enhance Energy Efficiency and Reduce Running Costs
  • Future-Ready Home With Electric Vehicle Charging Point
  • Countryside Walks On Your Doorstep
  • M1 Motorway Just Minutes Away, Offering Quick Links North And South, With Nearby Rail Connections And Airports
  • Full Height Tiling In Bathrooms & Ensuites
  • Turfed Gardens
  • Modern Home Featuring An Air Source Heat Pump
  • First Release Now Available

Property Details

  • Property type: House
  • Property style: Detached
  • Price Per Sq Foot: £312
  • Approx Sq Feet: 1,025 sqft
  • Property Age Bracket: New Build
  • Council Tax Band: TBD
Please note, property and plot sizes displayed are for guidance purposes only and may have been derived from publicly available information over which neither the agent nor Street.co.uk have control.

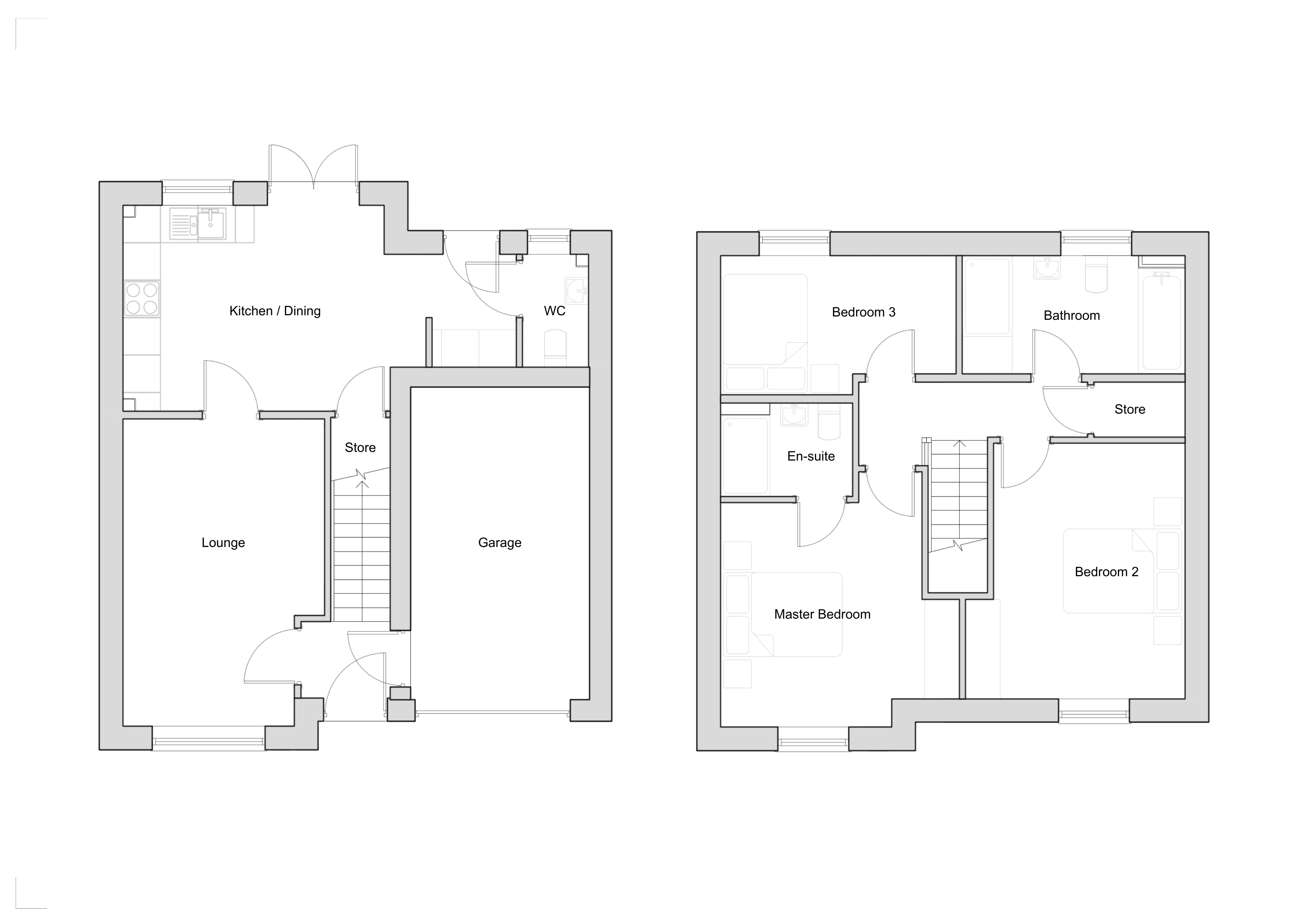
Rooms

Lounge

4.98m x 3.28m

Kitchen/ Dining

3.35m x 6.33m

WC

1.85m x 1.09m

Principle Bedroom

3.63m x 3.86m

Ensuite

1.55m x 2.16m

Bedroom 2

4.14m x 3.56m

Bedroom 3

2.29m x 3.81m

Bathroom

1.96m x 3.61m

Floorplans

Parking Spaces

Driveway

Capacity: 1

Location

Properties you may like

By Wilson Estate Agents

  • Hillsway, Shirebrook, NG20

    • 2 Beds
    • 1 Bath
    View Property
  • Plot 25, The Waterford, Highstairs Lane, Stretton

    • 4 Beds
    • 2 Bath
    View Property
  • The Osmond, Bromley Gardens, Mastin Moor

    • 3 Beds
    • 2 Bath
    View Property
  • Plot 47, The Farnham, Glapwell Gardens, Glapwell

    • 3 Beds
    • 2 Bath
    View Property
  • High Street, Bolsover, S44

    • 3 Beds
    • 1 Bath
    View Property
  • Piper Grove, Shirebrook, NG20

    • 3 Beds
    • 3 Bath
    View Property
  • Plot 14, The Hampton, Highstairs Lane, Stretton

    • 5 Beds
    • 2 Bath
    View Property
  • Plot 42, Fieldfare, Welbeck Gardens, Bolsover

    • 4 Beds
    • 2 Bath
    View Property
  • Welbeck Street, Whitwell, S80

    • 5 Beds
    • 5 Bath
    View Property
Disclaimer - Property ID 5a1eb135-7ad6-4c3a-aed8-9dc93a58a0ce. The information displayed about this property comprises a property advertisement. Street.co.uk and Wilson Estate Agents makes no warranty as to the accuracy or completeness of the advertisement or any linked or associated information, and Street.co.uk has no control over the content. This property advertisement does not constitute property particulars. The information is provided and maintained by the advertising agent. Please contact the agent or developer directly with any questions about this listing.