Book a Viewing

To book a viewing for this property, please call Knight Edmonds Sales, on 01622 291 491.

To book a viewing for this property, please call Knight Edmonds Sales, on 01622 291 491.

For Sale
£475,000 Offers in Region of

4 Bedroom Semi Detached House, Watermark Road, Maidstone, ME14

Watermark Road, Maidstone, ME14


Knight Edmonds Primary Brand brand logo

Knight Edmonds Sales

Knight Edmonds, 20-22 King Street

Description

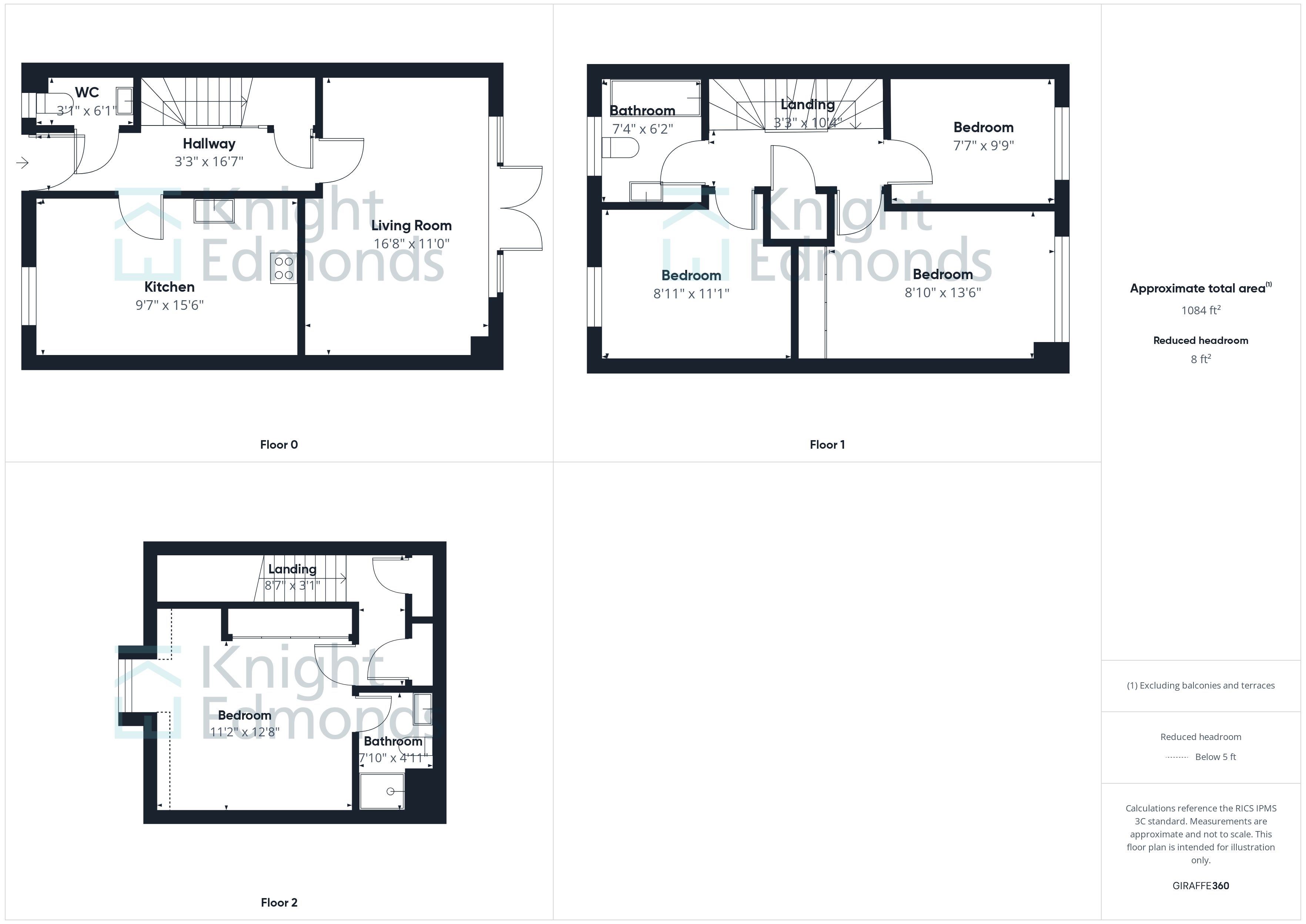
This beautifully presented four-bedroom semi-detached home offers spacious, modern living across three floors and is finished to an excellent standard throughout.

The property opens to a welcoming entrance hallway with a convenient W.C. To the front is a contemporary kitchen/diner with integrated appliances and ample space for family dining. To the rear, a bright and airy living room features direct access to the landscaped rear garden.

The first floor comprises three well-proportioned bedrooms, one with built-in storage, along with a stylish family bathroom.

The top floor is dedicated to the impressive main bedroom suite, complete with an en-suite shower room and a useful storage cupboard.

The rear garden has been thoughtfully landscaped with a neat lawn, paved seating area, and block-paved edging, offering an inviting space for relaxation and entertaining. To the front, a block-paved driveway provides parking for two cars, complemented by an electric vehicle charging point, plus a visitor parking permit space located opposite the house. The home also benefits from solar panels for added energy efficiency.

The current owners have lovingly maintained and upgraded the property since new, ensuring it remains in immaculate condition.

The property enjoys an excellent location within easy reach of Maidstone’s vibrant town centre, offering a wide range of shops, cafés, and restaurants, along with beautiful riverside walks. Families will appreciate the proximity to highly regarded schools, including Invicta Grammar, Valley Park and North Borough Primary, while commuters benefit from Maidstone East station providing direct links into London and easy access to the M20.


EPC Rating: B

Key Features

  • No Onward Chain
  • Immaculate Presentation Throughout
  • Fantastic Transport Links & Amenities Nearby
  • Set Over 3 Floors
  • Off Road Parking & EV Charger
  • En-Suite to Main Bedroom
  • Solar Panels

Property Details

  • Property type: House
  • Property style: Semi Detached
  • Price Per Sq Foot: £398
  • Approx Sq Feet: 1,195 sqft
  • Plot Sq Feet: 1,862 sqft
  • Property Age Bracket: 2020s
  • Council Tax Band: E
Please note, property and plot sizes displayed are for guidance purposes only and may have been derived from publicly available information over which neither the agent nor Street.co.uk have control.

Floorplans

Outside Spaces

Parking Spaces

Driveway

Capacity: N/A

Location

Properties you may like

By Knight Edmonds Sales

Disclaimer - Property ID 6ffc9697-9995-4a8b-b922-a1950e499589. The information displayed about this property comprises a property advertisement. Street.co.uk and Knight Edmonds Sales makes no warranty as to the accuracy or completeness of the advertisement or any linked or associated information, and Street.co.uk has no control over the content. This property advertisement does not constitute property particulars. The information is provided and maintained by the advertising agent. Please contact the agent or developer directly with any questions about this listing.