Book a Viewing

To book a viewing for this property, please call Chamberlains, on 01626 818094.

To book a viewing for this property, please call Chamberlains, on 01626 818094.

For Sale
£795,000 Guide Price

4 Bedroom Detached House, Hebditch Close, Bovey Tracey, TQ13

Hebditch Close, Bovey Tracey, TQ13


Chamberlains brand logo

Chamberlains

Chamberlains, 50 Fore Street

Description

STEP INSIDE:
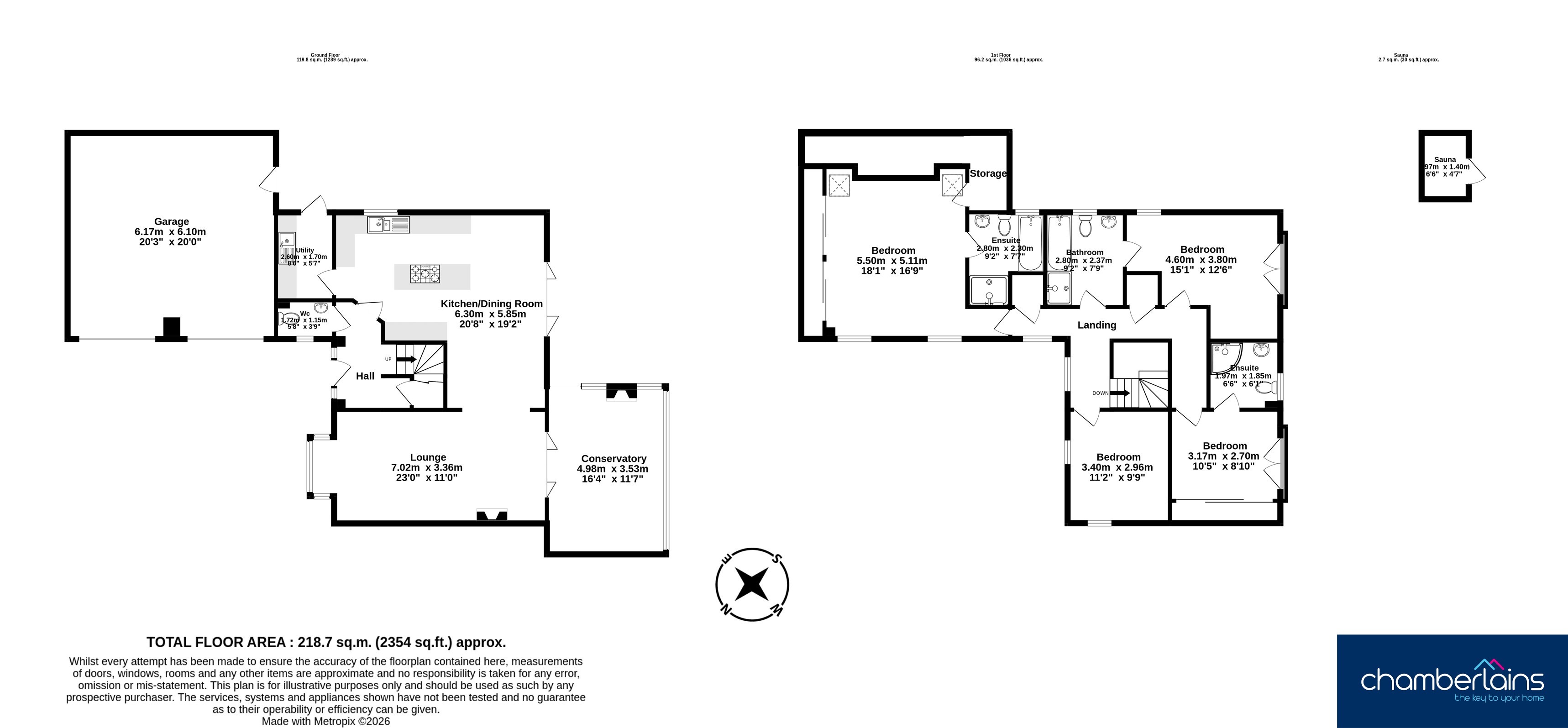
As you enter the property, you are welcomed into a bright and spacious hallway which immediately sets the tone for the rest of the home. An exceptional oak and glass staircase leads to the first floor, and there is also a convenient understairs storage cupboard. To the left of the hallway is a tastefully decorated downstairs WC, fitted with a toilet, wash basin. A glass door then leads through to the impressive open-plan living space, where Porcelanosa flooring runs throughout and underfloor heating provides comfort across the entire ground floor. The sleek, contemporary kitchen is centred around a large island with an induction hob, contemporary extractor located above the hob and ample space for seating, creating a perfect social hub. The kitchen is fully fitted with integrated appliances including a fridge, freezer, dishwasher, double oven with plate warming drawers, microwave, coffee machine and wine cooler. Just off the kitchen is the utility room, offering space for a washing machine and tumble dryer, along with an additional door providing access to the rear garden. Continuing from the kitchen, the dining area provides plenty of space for a family-sized table and chairs, with bifold doors opening directly onto the garden. The home continues to impress as you move into the lounge, which truly forms the heart of the property. This inviting space features a beautiful log burner and a bay window, creating a warm and relaxing atmosphere. Another set of bifold doors leads out to the covered garden room. This fantastic entertaining space benefits from being brick and oak built with a solid roof, glass panels to the side and café blinds that can be rolled up during the summer months to create an open outdoor entertaining area. The space also features a built-in pizza oven and ample room for seating and relaxation.

Upstairs, the impressive landing provides access to all four bedrooms. The main bedroom is a beautifully designed double room, mirroring the size of the downstairs double garage. It features vaulted ceilings, built-in his and hers wardrobes, and easily accessible eaves storage. The room also benefits from a spacious En-suite bathroom complete with WC, wash basin, heated towel rail, bath and separate shower. From the landing there are two very handy storage cupboards. One is ideal for airing and drying linens, while the other provides useful space for storing cleaning equipment and household appliances. Bedroom two is another generous double bedroom and features a charming Juliet balcony overlooking the far-reaching countryside. This room also has a door to the Jack and Jill bathroom, which is fitted with a WC, wash basin, heated towel rail, bath and separate shower. Bedroom three is very similar in size to bedroom two and is also a spacious double room. It benefits from a Juliet balcony, a built-in wardrobe and its own En-suite shower room featuring a WC, wash basin, heated towel rail and shower cubicle. Finally, bedroom four is currently arranged as a home gym and office but is another excellent-sized double bedroom overlooking the front of the property.

ROOM MEASUREMENTS:
Kitchen/Dining Room: 20’8” x 19’2” (6.30m x 5.85m)
Lounge: 23’0” x 11’0” (7.02m x 3.36m)
Conservatory: 16’4” x 11’7” (4.98m x 3.53m)
Utility: 8’6” x 5’7” (2.60m x 1.70m)
WC: 5’8” x 3’9” (1.72m x 1.15m)
Master Bedroom: 18’1” x 26’9” (5.50m x 5.11m)
En-suite: 9’2” x 7’7” (2.80m x 2.30m)
Bedroom: 15’1” x 12’6” (4.60m x 3.80m)
Bathroom: 9’2” x 7’9” (2.80m x 2.37m)
Bedroom: 10’5” x 8’10” (3.17m x 2.70m)
En-suite: 6’6” x 6’1” (3.17m x 2.70m)
Bedroom: 11’2” x 9’9” (3.40m x 2.96m)

USEFUL INFORMATION:
Tenure: Freehold
Council Tax Band: F (£3609.58 PA 2025/2026)
EPC Rating: A
Local Authority: Teignbridge District Council
Services: Mains water, drainage and electricity.
Heating: Air Source Heat Pump
PLEASE NOTE: The 4 person sauna in the rear garden can be purchased under separate negotiation.

ECO FEATURES:
The home has a strong eco-friendly focus and benefits from an A-rated EPC. Energy efficiency is enhanced through:
24 solar panels
20kW battery storage system
Air Source Heat Pump
Together, these features help to improve energy efficiency, reduce the home’s carbon footprint, and significantly lower running costs.

AGENTS INSIGHT:
"This is one of those homes that truly makes you say wow the moment you walk through the door. With its stunning open-plan living, beautiful entertaining spaces and impressive eco features, it’s a property that perfectly combines modern luxury with practical family living.”


EPC Rating: A

Virtual Tour


Key Features

  • Beautifully presented detached home
  • Far-reaching views across to Haytor Rock and surrounding countryside
  • Modern Kitchen With Central Island
  • Four double bedrooms, Three En-suites (Two with Baths)
  • Lounge with Log burner & Bay window
  • Downstairs WC & Utility Room
  • South-Facing Rear Garden
  • Double Garage & Driveway Parking
  • Solar Panels, Batteries, Air Source Heat Pump and EV charging point
  • Tenure: Freehold/ EPC: A

Property Details

  • Property type: House
  • Property style: Detached
  • Price Per Sq Foot: £450
  • Approx Sq Feet: 1,765 sqft
  • Plot Sq Feet: 7,998 sqft
  • Council Tax Band: F
Please note, property and plot sizes displayed are for guidance purposes only and may have been derived from publicly available information over which neither the agent nor Street.co.uk have control.

Floorplans

Outside Spaces

Garden

STEP OUTSIDE: As you approach the property along the private road, you immediately get a sense of the space and privacy on offer. The property provides driveway parking for three vehicles, along with a double garage fitted with electric overhead doors and an electric car charging point. Stepping out through the bifold doors to the rear garden, you will find a large patio area with a large electric operated sun awning which is perfect for relaxing in the sun or enjoying outdoor dining. The remainder of the garden is laid to artificial lawn and bordered by fencing and planted pots, creating a low-maintenance outdoor space. Along the side of the property there is an additional area providing space for a washing line, access to the utility room, and a pedestrian door leading into the garage. This area also benefits from an outdoor hot and cold shower, ideal for use after the sauna (Subject to separate negotiation).

Parking Spaces

Double garage

Capacity: 2

Driveway

Capacity: 3

Location

LOCATION: This beautiful detached home is situated, right near the heart of the town centre in Bovey Tracey. Known as the "Gateway to the Moors", Bovey Tracey offers a comprehensive range of shops and amenities including a health centre, library, primary school, inns and churches. The town also benefits from good sporting facilities, including a swimming pool and a sports field/ tennis courts. The A38 dual carriageway, linking Exeter and Plymouth to the M5 motorway is within two miles of the town and there are mainline railway stations at Newton Abbot and Exeter. The open spaces of Dartmoor lie just to the west of the town and the South Devon beaches are mostly within half an hours driving distance.

Properties you may like

By Chamberlains

Disclaimer - Property ID 72ad652c-533d-46fd-b10e-7e5b5f1d7213. The information displayed about this property comprises a property advertisement. Street.co.uk and Chamberlains makes no warranty as to the accuracy or completeness of the advertisement or any linked or associated information, and Street.co.uk has no control over the content. This property advertisement does not constitute property particulars. The information is provided and maintained by the advertising agent. Please contact the agent or developer directly with any questions about this listing.