4 Bedroom Detached House, The Glade, 30 Lewes Road, Haywards Heath, West Sussex, RH17 7SN

The Glade, 30 Lewes Road, Haywards Heath, West Sussex, RH17 7SN

Description

SOLD BY MANSELL McTAGGART - HAYWARDS HEATH

GUIDE PRICE … £1,400,000 … FREEHOLD

PLEASE WATCH THE VIDEO BEFORE BOOKING AN APPOINTMENT

A fabulous, individual and ultra-modern detached family home occupying a secluded plot of almost 0.5 acres with beautiful gardens and a detached studio overlooking a pond within the Lewes Road conservation area on the town’s south eastern edge, offering bright accommodation and fitted out to a very high specification with excellent eco-qualities.  

The house was designed by the Felce & Guy Partnership of Hove architects and built by Closewall Ltd, a small private developer, in 2016 using ultra-modern low maintenance materials to create an eco-friendly home with an EPC rating of A and includes solar panels for electricity and hot water. 

The owners now present the home in absolutely immaculate order throughout and they have also recently gained planning consent to convert the existing integral garage into another room and build a separate double garage (please see link Ref: DM/22/1424 | New outbuilding, internal alterations to the existing house, resurfacing of drive and landscaping. Amended plans received. | The Glade 30 Lewes Road Haywards Heath West Sussex RH17 7SN

Approached from the road through high twin wooden gates which lead to a large parking area in front of the house, the plot is as unique as the house itself and once formed a small sandstone quarry so has a lot of natural stone around the southern boundary and almost botanical gardens with lots of pathways, ornamental plants, areas of lawn and a large pond overlooked by a separate detached garden studio which would make an ideal home office or small gym. To the rear and sides of the house is a terrace and raised bank. The plot offers almost complete seclusion from any neighbour. 

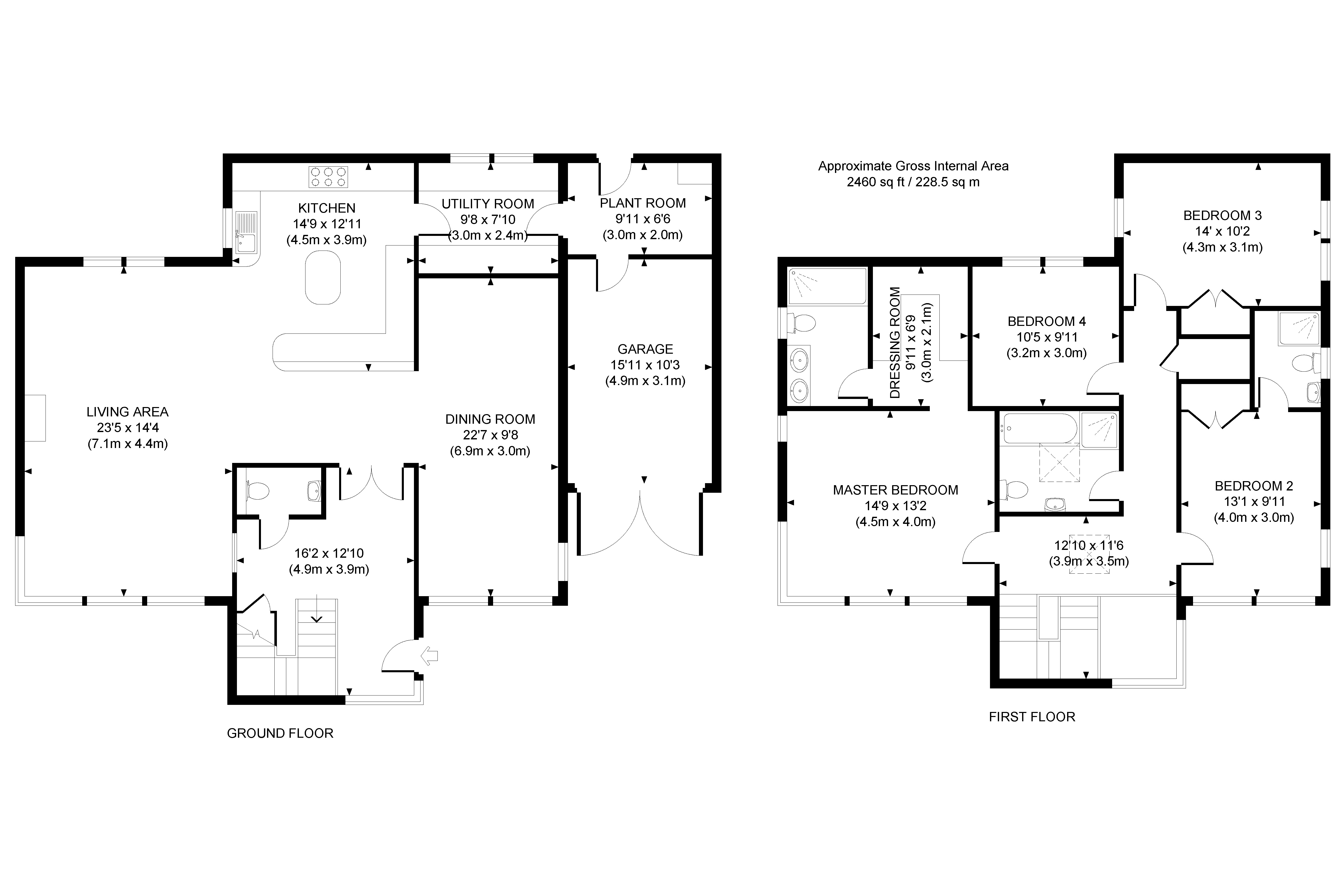
The interior matches the rather impressive ultra-modern exterior with quality fittings, oak flooring, a beautiful kitchen with integrated appliances and Corian worktops, an equally well fitted utility room and plant room with an internal door to the garage, a large open plan living area with woodburning stove and doors out to a terrace overlooking the pond and a separate family room. On the first floor there is a grand master bedroom suite with full length windows overlooking the pond and gardens, an en-suite dressing room and a bathroom. There are three further bedrooms and two further shower rooms.

 


EPC Rating: A

Virtual Tour


Key Features

  • Fabulous contemporary home on secluded plot
  • Approached through high wooden electric gates - Plenty of driveway parking and attached garage
  • Forming part of the Lewes Road conservation area - Close to countryside and the hospital
  • Built in 2016 and presented in immaculate order throughout - Great Eco ratings – solar hot water and electric
  • Standing in grounds of almost 0.5 acres
  • Beautifully laid out gardens with studio overlooking a pond
  • Open plan living area with wood burner & bifold doors - Modern kitchen with integrated appliances & Corian tops
  • Grand master suite with dressing room and bathroom - Guest bedroom suite, 2 further bedrooms and 3rd bathroom
  • Planning consent granted (Ref: DM/22/1424) for separate double garage
  • EPC rating: A - Council Tax Band: G

Property Details

  • Property type: House
  • Property style: Detached
  • Council Tax Band: G
Please note, property and plot sizes displayed are for guidance purposes only and may have been derived from publicly available information over which neither the agent nor Street.co.uk have control.

Floorplans

Location

The Glade is located on the desirable south side of the Lewes Road and forms part of the Conservation Area on the town’s south eastern outskirts surrounded by other substantial homes on large plots. The property is ideally placed close to open countryside which is interspersed with footpaths and bridleways and is within easy reach of some excellent local primary and secondary schools, as well as some independent schools, most of which provide a school bus service with local pick up points, including Great Walstead, Ardingly, Cumnor House, Worth, Brighton College, Bedes and Burgess Hill Girls. There are local shops within a short walk for basic daily needs and the property is also ideally placed close to the Princess Royal Hospital. A regular bus service runs along the Lewes Road linking with the town centre and railway station (1.8 miles) which provides fast commuter services to London (Victoria/London Bridge 47 mins), Gatwick Airport (15 mins) and the south coast (Brighton 20 mins). By road, access to the major surrounding areas can be gained via the B2272 A272 Haywards Heath relief road and the A/M23, the latter lying about 5.5 miles to the west at Bolney or Warninglid. The town has an extensive range of shops, stores, restaurants, cafes and bars, numerous sports clubs, 6th form college and a leisure centre. Open countryside is close by and various beauty spots are within a short drive including both Ditchling and Chailey Common Nature Reserves, the Ashdown Forest and the South Downs National Park. Directions From the forecourt at Haywards Heath railway station turn right and at the roundabout proceed straight over into Sydney Road. At the next roundabout turn right (3rd exit) into Oathall Road and proceed up the hill into Hazelgrove Road. At the next roundabout take the second exit (Franklynn Road B2272) and proceed to the next roundabout by the Princess Royal Hospital. Continue straight on passing the Shell petrol station on your left and at the new roundabout turn left (1st exit) onto the Lewes Road (A272). The property will be found after approximately 0.2 miles on the right hand side. For individual directions please contact the sole agents

Properties you may like

By Mansell McTaggart Haywards Heath

Disclaimer - Property ID 73eb2d4d-890c-472c-956e-8d00fa61af5f. The information displayed about this property comprises a property advertisement. Street.co.uk and Mansell McTaggart Haywards Heath makes no warranty as to the accuracy or completeness of the advertisement or any linked or associated information, and Street.co.uk has no control over the content. This property advertisement does not constitute property particulars. The information is provided and maintained by the advertising agent. Please contact the agent or developer directly with any questions about this listing.