4 Bedroom Detached House, Kiln Road, Benfleet, SS7

Kiln Road, Benfleet, SS7

Description

Welcome to 15 Kiln Road, a unique four-bedroom family home in a well-known location in Benfleet. This practical spot offers proximity to local parks for a breath of fresh air, reputable schools for the family, and a selection of shops for both essentials and the occasional retail indulgence.

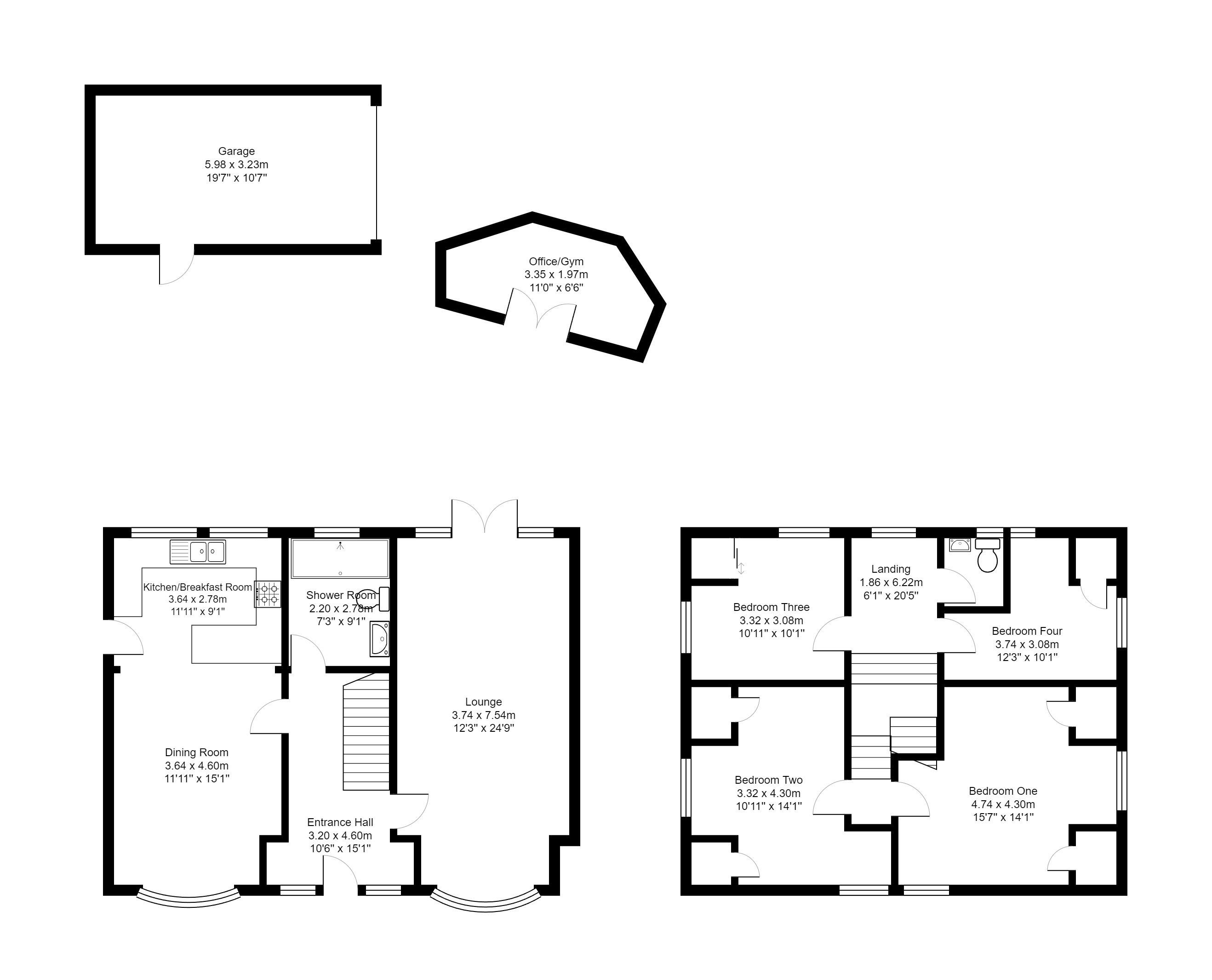
As you step inside, the entrance hall provides a simple transition into the home, leading you to the large lounge stretching from the front to the rear, a functional space for everyday gatherings or a relaxed evening. The under-stairs storage is a smart, practical feature, aiding in keeping the area tidy. On the other side of the hall, you'll also find a modern, and high-end shower room for daily convenience.

The kitchen diner, is your everyday meal preparation space, with a view of the garden adding a peaceful backdrop to your routine and has plenty of space for a large family dining table plus extras!

Moving upstairs, the four bedrooms offer a quiet space for each family member. The eave storage is a thoughtful touch, helping to keep rooms organised. The split-level hallway connects the living spaces and adds a layer of character and charm to this home.

Modern comfort is not forgotten with Nest-controlled heating and smart lighting features, adding a layer of contemporary convenience.

The outside area is straightforward yet enjoyable. The garden provides a spot for outdoor relaxation, be it a weekend barbecue or a quiet evening outdoors. A unique well feature adds a touch of character to the space, and there's a garden room that could serve as a home office, gym or additional storage. The driveway and detached garage provide practical parking space, catering to car owners or those requiring extra storage.

This home offers a reliable living choice in the well-regarded area of Benfleet, blending functionality with modern conveniences in a notable location. Is this the next home for you? we’re confident when we say there really isn’t anything like it currently available, viewing is highly recommended to appreciate the size, layout, and standard of this home.


EPC Rating: D

Key Features

  • Garden Room/Office/Gym

Property Details

  • Property type: House
  • Property style: Detached
  • Plot Sq Feet: 4,306 sqft
  • Council Tax Band: E
Please note, property and plot sizes displayed are for guidance purposes only and may have been derived from publicly available information over which neither the agent nor Street.co.uk have control.

Floorplans

Location

Properties you may like

By Nest in Essex

Disclaimer - Property ID 7624fb97-6273-4548-8d26-5cf6a2df953c. The information displayed about this property comprises a property advertisement. Street.co.uk and Nest in Essex makes no warranty as to the accuracy or completeness of the advertisement or any linked or associated information, and Street.co.uk has no control over the content. This property advertisement does not constitute property particulars. The information is provided and maintained by the advertising agent. Please contact the agent or developer directly with any questions about this listing.