Book a Viewing

To book a viewing for this property, please call Whitlocks Estate Agents - Bognor Regis & Pagham, on 01243 262747.

To book a viewing for this property, please call Whitlocks Estate Agents - Bognor Regis & Pagham, on 01243 262747.

For Sale
£350,000

3 Bedroom Semi Detached Bungalow, Greenwood Close, North Bersted, Bognor Regis, PO22

Greenwood Close, North Bersted, Bognor Regis, PO22


Whitlocks Estate Agents Primary Brand brand logo

Whitlocks Estate Agents - Bognor Regis & Pagham

Whitlocks Estate Agents, 229 Pagham Road

Description

A fantastic opportunity to purchase this three-bedroom semi-detached bungalow, ideally positioned at the end of a quiet cul-de-sac within walking distance of a wide range of local amenities, and located in the ever-popular area of North Bersted.

The accommodation comprises a modern fitted kitchen, a spacious lounge/dining room, three well-proportioned bedrooms, and a contemporary fitted bathroom.

Further benefits include uPVC double glazing and gas-fired central heating throughout.

Externally, the property boasts an extensive, fully secluded rear garden, offering excellent potential to extend, subject to the relevant planning permissions.

In addition, there is a substantial outbuilding currently arranged as an entertaining space, which could easily be adapted for use as a home office, studio, or even converted into an annexe (subject to the necessary consents).

To the front of the property, there is a driveway providing off-road parking and access to the garage.


EPC Rating: D

Key Features

  • Semi Detached Bungalow
  • Three Bedrooms
  • Modern Fitted Kitchen
  • Lounge / Dining Room
  • Modern Fitted Bathroom
  • UPVC Double Glazing and Gas Fired Central Heating
  • Large Outbuilding with Power and Light
  • Extensive and Secluded Rear Garden
  • Driveway and Garage
  • Positioned at the End of a Quiet Cul-De-Sac in a Sought after Area

Property Details

  • Property type: Bungalow
  • Property style: Semi Detached
  • Price Per Sq Foot: £428
  • Approx Sq Feet: 818 sqft
  • Plot Sq Feet: 6,361 sqft
  • Council Tax Band: C
Please note, property and plot sizes displayed are for guidance purposes only and may have been derived from publicly available information over which neither the agent nor Street.co.uk have control.

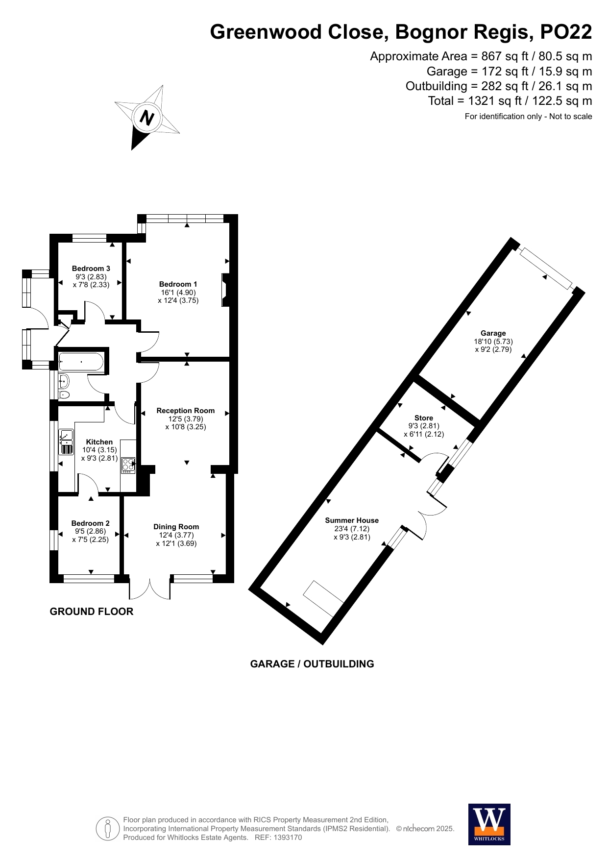
Rooms

Location

Kitchen

3.15m x 2.81m

Reception Room

3.79m x 3.25m

Dining Room

3.77m x 3.69m

Bedroom One

4.90m x 3.75m

Bedroom Two

2.86m x 2.25m

Bedroom Three

2.83m x 2.23m

Bathroom

Outbuilding / Summer House

7.12m x 2.81m

Store

2.81m x 2.12m

Garage

5.73m x 2.79m

Floorplans

Outside Spaces

Garden

Parking Spaces

Driveway

Capacity: 2

Location

Located to the north east of the Town Centre, North Bersted is a popular area amongst families due to the fantastic range of facilities on offer, which include a variety of Schools, Sports Facilities, Gyms, Supermarkets, Retail Estates, Shops, Pubs, Fast Food Outlets and many more! There is also a regular Bus Service with many stops throughout the area, in addition to being within easy commuting distance to the larger Cities such as Chichester, Portsmouth, Southampton, Worthing and Brighton. North Bersted also includes a vast choice of Playing Fields, complete with Football Pitches, Basketball Courts and Play Parks an ideal place for Children. Furthermore, Bersted Brooks is a stunning Nature Reserve where there is a variety of wildlife and popular for dog walking.

Properties you may like

By Whitlocks Estate Agents - Bognor Regis & Pagham

  • St. Anthonys Walk, Aldwick, Bognor Regis PO21

    • 2 Beds
    • 2 Bath
    View Property
  • South Terrace, Shripney Road, Bognor Regis, PO22

    • 3 Beds
    • 1 Bath
    View Property
  • Warwick Close, Nyetimber, Bognor Regis PO21

    • 3 Beds
    • 1 Bath
    View Property
  • Ledbury Way, Nyetimber, Bognor Regis, PO21

    • 3 Beds
    • 2 Bath
    View Property
  • Barley Close, Nyetimber, Bognor Regis PO21

    • 2 Beds
    • 2 Bath
    View Property
  • Bunn Leisure, Warners Lane, Selsey, Chichester PO20

    • 2 Beds
    • 2 Bath
    View Property
  • Braemar Way, North Bersted, Bognor Regis, PO21

    • 2 Beds
    • 1 Bath
    View Property
  • Jubilee Parade, Elmer Road, Elmer, Bognor Regis, PO22

    • 2 Beds
    • 1 Bath
    View Property
  • Whittaker Grove, North Bersted, Bognor Regis, PO21

    • 3 Beds
    • 2 Bath
    View Property
Disclaimer - Property ID 767259ef-4a04-4c9a-a785-2c75dd82933f. The information displayed about this property comprises a property advertisement. Street.co.uk and Whitlocks Estate Agents - Bognor Regis & Pagham makes no warranty as to the accuracy or completeness of the advertisement or any linked or associated information, and Street.co.uk has no control over the content. This property advertisement does not constitute property particulars. The information is provided and maintained by the advertising agent. Please contact the agent or developer directly with any questions about this listing.