Book a Viewing

To book a viewing for this property, please call Henry Adams - Chichester, on 01243 533377.

To book a viewing for this property, please call Henry Adams - Chichester, on 01243 533377.

For Sale
£450,000 In Excess of

3 Bedroom Semi Detached House, Colworth, Chichester, PO20

Colworth, Chichester, PO20


Henry Adams Brand LLP brand logo

Henry Adams - Chichester

Henry Adams LLP, Rowan House Baffins Lane

Description

A character semi-detached cottages with views over farmland.

A charming three-bedroom semi-detached period cottage, beautifully and sympathetically refurbished, enjoying uninterrupted views across open farmland. Positioned in a most desirable semi-rural setting just three miles south-east of the historic city of Chichester.

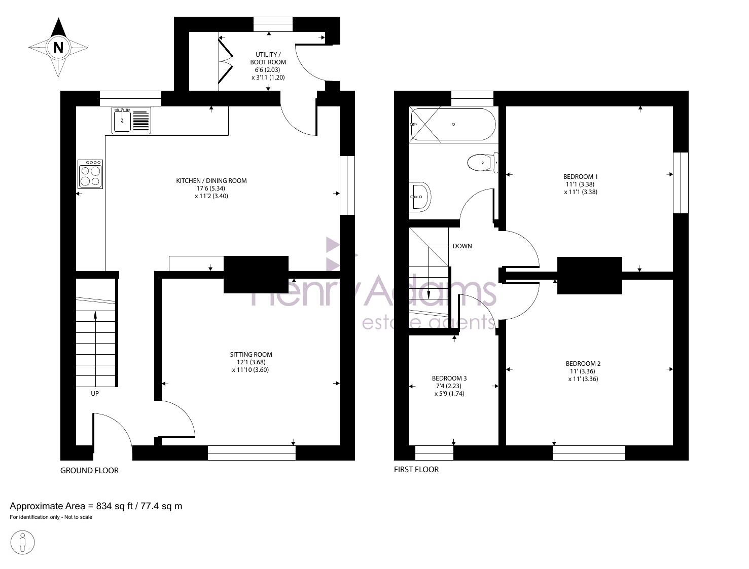
Approached via gentle rising steps, the front door opens into a welcoming traditional entrance hall. The elegant yet cosy sitting room is rich in character, featuring a mellow exposed brick wall, a wood-burning stove and picturesque views across the farmland, a truly inviting space for relaxed country living. To the rear, the spacious kitchen/dining room is appointed with classic shaker-style cabinetry, a porcelain butler sink, integrated cooker hood and dishwasher, seamlessly combining timeless design with modern convenience. A useful utility room provides further storage, space and plumbing for a washing machine and houses the oil-fired boiler. The first floor offers three bedrooms, including two doubles and a charming single bedroom which is currently utilised as a dressing room, all served by a stylish contemporary bathroom.

Externally, the property continues to impress with a meticulously landscaped, secluded south-facing garden, designed for both relaxation and entertaining. An ornate extended patio provides two distinct seating areas, complemented by a lawn and a striking flint boundary wall with exterior lighting, elegantly adorned with climbing pink roses. Off-road parking for two vehicles completes this inviting home.

Chichester District Council - 25/26 Tax Band C £2,077.06 EPC-D

Directions - Proceed south east out of Chichester and along the A259 signposted to Bognor Regis. Proceed straight over the Drayton roundabout and after approximately a mile take the first turning on the left signposted to Colworth, just before the Mercedes garage. At the fork bear right and East Corner Cottage can be found almost immediately on the left. What3words - acquaint.arrived.skylights


EPC Rating: D

Key Features

  • Relaxing country charm with uninterrupted farmland views
  • Character Sussex flint and brick front elevation
  • Semi rural setting
  • Homely sitting room with wood burning stove and rural view
  • Well proportioned kitchen/dining room
  • Utility room
  • Two doubles and one single bedroom
  • Modern bathroom
  • Secluded south aspect garden
  • Off-road parking for two cars

Property Details

  • Property type: House
  • Property style: Semi Detached
  • Price Per Sq Foot: £557
  • Approx Sq Feet: 807 sqft
  • Plot Sq Feet: 1,938 sqft
  • Council Tax Band: C
Please note, property and plot sizes displayed are for guidance purposes only and may have been derived from publicly available information over which neither the agent nor Street.co.uk have control.

Floorplans

Outside Spaces

Garden

Parking Spaces

Off street

Capacity: 1

Location

Colworth is a semi-rural hamlet situated just under four miles to the east of Chichester. The cathedral city of Chichester offers excellent high street shopping, many fashionable restaurants, cafes and bars, Festival Theatre and a mainline station to London Victoria. Goodwood is famous for its many event days including the world renowned Festival of Speed and Goodwood Revival for motor racing enthusiasts and a season of horse racing including the Qatar Goodwood Festival. There are excellent sailing facilities around Chichester Harbour and water sports from the beaches at West Wittering. The area is a paradise for wildlife enthusiasts, with beautiful walks and cycle tracks over the South Downs and around the harbour.

Properties you may like

By Henry Adams - Chichester

Disclaimer - Property ID 85cd37ed-16be-4038-b8b5-c7c6f326f512. The information displayed about this property comprises a property advertisement. Street.co.uk and Henry Adams - Chichester makes no warranty as to the accuracy or completeness of the advertisement or any linked or associated information, and Street.co.uk has no control over the content. This property advertisement does not constitute property particulars. The information is provided and maintained by the advertising agent. Please contact the agent or developer directly with any questions about this listing.