Book a Viewing

To book a viewing for this property, please call Henry Adams - Chichester, on 01243 533377.

To book a viewing for this property, please call Henry Adams - Chichester, on 01243 533377.

For Sale
£695,000 Guide Price

2 Bedroom Detached Bungalow, Mill Road, West Ashling, PO18

Mill Road, West Ashling, PO18


Henry Adams Brand LLP brand logo

Henry Adams - Chichester

Henry Adams LLP, Rowan House Baffins Lane

Description

A home of peace and tranquillity in the South Downs National Park

Bathed in natural sunlight, this delightful home enjoys a principal outlook over a secluded, attractively landscaped south-facing rear garden. The property is set within the charming village of West Ashling, on the southern edge of the South Downs National Park, offering a wonderful balance of rural tranquillity and accessibility.

An attractive open porch leads into a welcoming entrance hall that extends along the northern side of the property. From here, glazed double doors open into a peaceful, sun-filled sitting room featuring a wood-burning stove and bi-folding doors that flow seamlessly into a distinctive five-sided conservatory, creating a superb connection between the living space and garden.

The dual-aspect dining room enjoys south and west-facing views and leads through to the kitchen and adjoining utility room. The kitchen is fitted with a range of classic shaker-style units, providing both character and practicality.

At the opposite end of the property are two bedrooms, study/bedroom three and a family bathroom, offering comfortable and well-planned accommodation.

Outside, the property is complemented by a mature front garden with a wide gravel driveway and generous parking. Two sets of doors open to a double garage with a covered area to the rear.

The south-facing rear garden is a particular feature, comprising a paved seating area, central lawn, raised planters, and well-established trees and shrubs. A large workshop/studio, with light and power connected, provides excellent additional space for hobbies, home working, or storage.

Chichester District Council - 25/26 Tax Band E £2,826.28 EPC-D

Directions - Proceed out of Chichester on the B2178 (Funtington Road). After passing through East Ashling take the turning on the left into Southbrook Road signposted to West Ashling. On entering West Ashling, turn right into Down Street and after passing the Mill Pond and The Richmond Arms public house, Quinnings is on the left after Malthouse Lane. what3words - devoured.leaps.drama


EPC Rating: D

Key Features

  • Bright and spacious single storey home
  • Idyllic village location
  • Sun filled south aspect sitting room and five-sided conservatory
  • Separate dual aspect dining room
  • Country style kitchen and utility room
  • Two/three bedrooms
  • Bedroom 3/Study
  • Large studio/workshop
  • Ample parking and double garage
  • No onward chain

Property Details

  • Property type: Bungalow
  • Property style: Detached
  • Price Per Sq Foot: £566
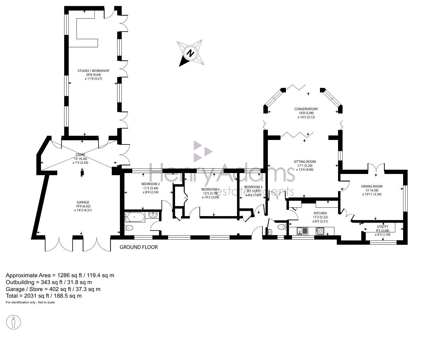
  • Approx Sq Feet: 1,227 sqft
  • Plot Sq Feet: 8,051 sqft
  • Council Tax Band: E
Please note, property and plot sizes displayed are for guidance purposes only and may have been derived from publicly available information over which neither the agent nor Street.co.uk have control.

Floorplans

Outside Spaces

Garden

Parking Spaces

Double garage

Capacity: 2

Driveway

Capacity: 2

Location

West Ashling is located about five miles north west of Chichester and has a local village pub, primary school and a picturesque mill pond. The area is a paradise for wildlife enthusiasts, with beautiful walks and cycle tracks over the South Downs and around Chichester Harbour. Local amenities can be found in nearby Funtington and Bosham. The cathedral city of Chichester offers excellent high street shopping, many fashionable restaurants, cafes and bars, the Festival Theatre and a mainline station to London Victoria. Goodwood is famous for its many event days including the world renowned Festival of Speed and Goodwood Revival for motor racing enthusiasts and a season of horse racing including the Qatar Goodwood Festival.

Properties you may like

By Henry Adams - Chichester

Disclaimer - Property ID 93a9fc8a-950d-4da4-8e51-eaa31f576d3f. The information displayed about this property comprises a property advertisement. Street.co.uk and Henry Adams - Chichester makes no warranty as to the accuracy or completeness of the advertisement or any linked or associated information, and Street.co.uk has no control over the content. This property advertisement does not constitute property particulars. The information is provided and maintained by the advertising agent. Please contact the agent or developer directly with any questions about this listing.