Book a Viewing
To book a viewing for this property, please call Number One Real Estate, on 01633 492777.
To book a viewing for this property, please call Number One Real Estate, on 01633 492777.
3 Bedroom Terraced House, Grosmont Place, Croesyceiliog, NP44
Grosmont Place, Croesyceiliog, NP44

Number One Real Estate
76 Bridge Street, Newport
Description
GUIDE PRICE £210,000 - £230,000
Number One Agent, Katie Darlow is delighted to offer this three bedroom, terraced property for sale in Croesyceiliog.
This property is located on Grosmont Place in Cwmbran and is offered to the market with no onward chain. The property is set within a popular residential area, close to a wealth of local amenities including shops, supermarkets, cafés and leisure facilities in Cwmbran town centre. Families are well catered for with a choice of highly regarded schools nearby, while the area also benefits from a number of parks and green spaces, providing excellent opportunities for outdoor recreation. For commuters, the location is particularly convenient, with easy access to the A4042 and M4 motorway linking to Newport, Cardiff and Bristol, and Cwmbran railway station offering direct rail services to Cardiff and beyond.
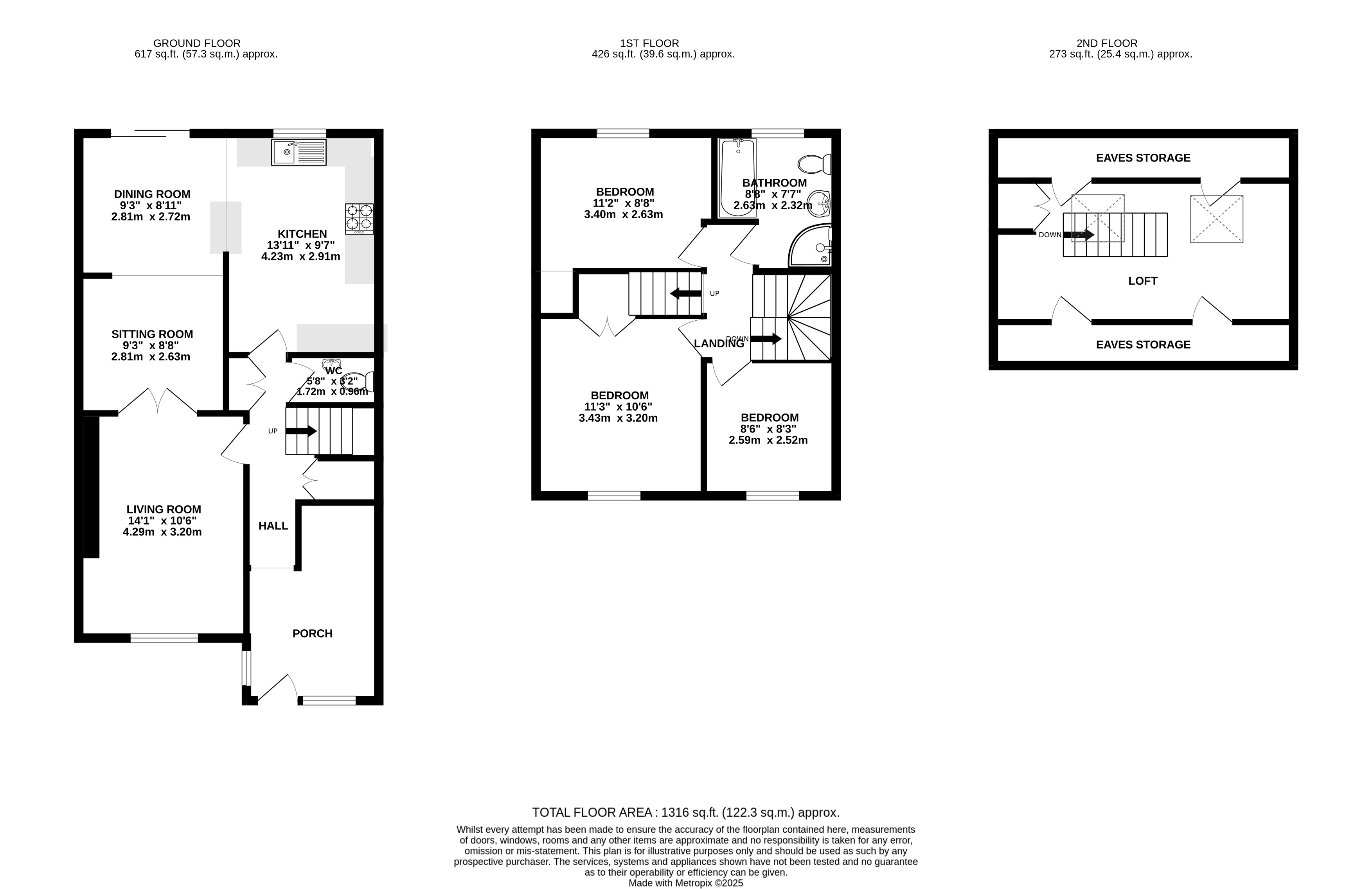
On the ground floor, you enter through a generous entrance porch which opens into the main hallway. From here, there is access to the principal living areas, the first floor and a useful cloakroom. To the left, the bright and spacious lounge enjoys an open aspect through double doors from the dining area, creating a sociable and versatile layout. The dining space flows seamlessly into the large kitchen, which offers ample worktop and storage space together with plenty of room for family dining and informal seating.
The first floor comprises three well-proportioned bedrooms, offering comfortable accommodation for families or guests, as well as a large family bathroom fitted with a three-piece suite. A further staircase leads up the loft, which has been carpeted and fitted with two Velux windows, creating a brilliant storage space.
Externally, the property enjoys both front and rear gardens. The outdoor spaces are well sized and provide plenty of room for seating, dining and entertaining, making them a particularly attractive feature for families and those who enjoy spending time outdoors.
Agents note: The property has been altered (single storey rear extension) for which building regulation or approval documents have not been made available. We would inform interested parties to rely on their own inspections, searches and surveys before committing to any transactional decision.
Council Tax Band C
All services and mains water are connected to the property.
Please visit the Ofcom website to check broadband availability and speeds.
The owner has advised that the level of the mobile signal/coverage at the property is good. Please visit the Ofcom website to check mobile coverage.
Please contact Number One Real Estate for more information or to arrange a viewing.
EPC Rating: D
Virtual Tour
Property Details
- Property type: House
- Price Per Sq Foot: £164
- Approx Sq Feet: 1,281 sqft
- Plot Sq Feet: 1,668 sqft
- Property Age Bracket: 1940 - 1960
- Council Tax Band: C
Rooms
Floorplans
Outside Spaces
Parking Spaces
On street
Capacity: N/A
Location
Properties you may like
By Number One Real Estate