Book a Viewing

To book a viewing for this property, please call Number One Real Estate, on 01633 492777.

To book a viewing for this property, please call Number One Real Estate, on 01633 492777.

For Sale
£250,000

3 Bedroom Semi Detached House, Glanwern Grove, Newport, NP19

Glanwern Grove, Newport, NP19


Number One Real Estate brand logo

Number One Real Estate

76 Bridge Street, Newport

Description

Number One Agent, Harrison Cole is delighted to offer this three bedroom, semi-detached house for sale in Newport with no onward chain.

Situated in a well-established residential area, this property enjoys a convenient and desirable location close to a wide range of local amenities. Glanwern Grove provides easy access to nearby shops, cafés, and supermarkets, while Newport Retail Park and Spytty Park offer extensive shopping and leisure facilities just a short drive away. The area benefits from excellent transport connections, with quick access to the M4 motorway (Junction 24), making it ideal for commuting to Cardiff, Bristol, and surrounding areas. Nearby bus routes and Newport Train Station further enhance the accessibility of the location. Families are well served by several well-regarded primary and secondary schools, and local green spaces such as Beechwood Park and the Gwent Levels offer opportunities for walking, recreation, and enjoying the outdoors.

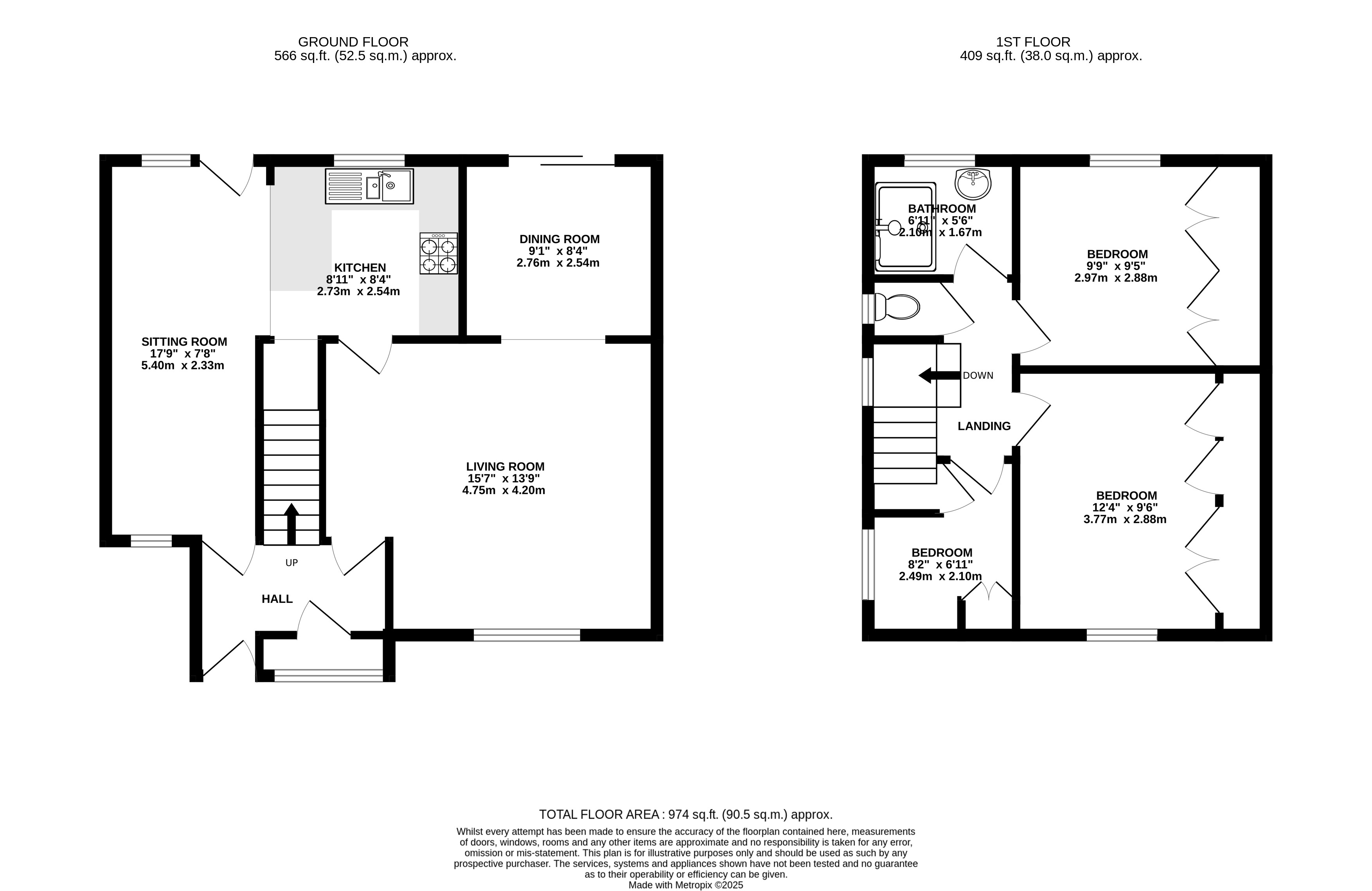
Entering the property, you are welcomed into a bright hallway, providing access to the main living areas and stairs leading to the first floor. The living room is generously sized and flows openly into the dining room, creating a spacious dual-aspect reception area ideal for family living and entertaining. This flexible layout offers ample room for a variety of seating and dining arrangements. To the rear is the kitchen, a good-sized space featuring ample unit and worktop capacity, along with room for additional seating or a breakfast table. The kitchen offers excellent potential for modernisation to create a stylish and functional family hub.

On the first floor, the property offers three well-proportioned bedrooms. There are two double rooms and a single bedroom, all of which benefit from built-in storage, ensuring practicality and efficient use of space. The shower room is modern in design, featuring a large walk-in shower, with a separate WC adjacent — a layout which enhances convenience for busy households.

Externally, the property is set on a large and elevated plot, offering generous outdoor space. To the front, a driveway provides off-road parking, with steps leading up to the main entrance and a front patio area, ideal for potted plants or additional seating. To the rear, the impressive tiered garden offers excellent potential for landscaping and development. The garden features a mix of established plant life, patio sections, and multiple levels, presenting an opportunity to create a beautiful and versatile outdoor space tailored to personal tastes.

This three-bedroom semi-detached property on Glanwern Grove offers fantastic potential in a convenient and sought-after Newport location. With its spacious layout, large plot, and no onward chain, it represents an excellent opportunity for first-time buyers, families, or investors looking to add value and create a wonderful home.

Agents note: The property has been altered by the previous owners (side extension) and the owner does not hold building regulation/approval documents for any works carried out, therefore we would inform interested parties to rely on their own inspections, searches and surveys.

Council Tax Band: D

All services and mains water are connected to the property.

The broadband internet is provided to the property by Cable, the sellers are subscribed to Virgin. Please visit the Ofcom website to check broadband availability and speeds.

The owner has advised that the level of the mobile signal/coverage at the property is good, they are subscribed to Tesco. Please visit the Ofcom website to check mobile coverage.

Please contact Number One Real Estate for more information or to arrange a viewing.


EPC Rating: D

Virtual Tour


Property Details

  • Property type: House
  • Property style: Semi Detached
  • Price Per Sq Foot: £252
  • Approx Sq Feet: 990 sqft
  • Plot Sq Feet: 3,638 sqft
  • Property Age Bracket: 1940 - 1960
  • Council Tax Band: D
Please note, property and plot sizes displayed are for guidance purposes only and may have been derived from publicly available information over which neither the agent nor Street.co.uk have control.

Floorplans

Outside Spaces

Parking Spaces

Driveway

Capacity: 2

View Photos

Location

Properties you may like

By Number One Real Estate

Disclaimer - Property ID 955d40dc-12f6-48be-8145-dbaeea035862. The information displayed about this property comprises a property advertisement. Street.co.uk and Number One Real Estate makes no warranty as to the accuracy or completeness of the advertisement or any linked or associated information, and Street.co.uk has no control over the content. This property advertisement does not constitute property particulars. The information is provided and maintained by the advertising agent. Please contact the agent or developer directly with any questions about this listing.