Book a Viewing
To book a viewing for this property, please call Henry Adams New Homes, on 01243 521833.
To book a viewing for this property, please call Henry Adams New Homes, on 01243 521833.
3 Bedroom Detached House, Main Road, Southbourne, PO10
Main Road, Southbourne, PO10

Henry Adams New Homes
Henry Adams LLP, Rowan House Baffins Lane
Description
Open House Event - Saturday 25th October 10am - 3pm By Appointment Only
Call to book your appointment on 01243 521833
Orchard Mews is a collection of just 9 delightfully designed, traditional homes brought to you by Walcote Homes. Providing a range of accommodation, with either two, three or four bedrooms, each home has been planned to create a maximised layout whether for families, couples, downsizers or individuals. The décor and specification has also been carefully considered to ensure that the overall look and feel of the home is stylish and cohesive, whilst also warm and welcoming.
Sitting within the newly developed Priors Orchard development, with direct access to local amenities as well as excellent communication links via road and rail, Orchard Mews offers the best of stylish modern day living within a well located setting.
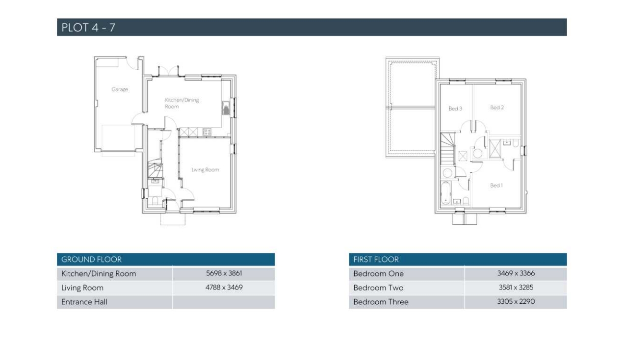
Plot 5 Orchard Mews is 3 bedroom detached house with single garage and 2 parking spaces. To the ground floor you will find a kitchen/dining room, living room and cloakroom. Upstairs bedroom 1 has its own en suite and there is also a family bathroom. 1075 sq ft.
First completions are anticipated for August 2025.
NB External images are computer generated for illustrative purposes only.
Key Features
- Exclusive development of just 9 traditionally designed homes
- Kitchen/Dining Room
- Cloakroom
- En Suite to Bedroom 1
- Estate charge £500 per annum per home (estimated)
- EPC to be confirmed
- Council Tax Banding is not set until after legal completion. For more information please contact the Local Authority
- Please contact us for details of the Reservation Fee and Terms & Conditions
Property Details
- Property type: House
- Plot Sq Feet: 1,075 sqft
- Council Tax Band: TBD
Rooms
Entrance Hall
Cloakroom
Kitchen/Dining Room
5.69m x 3.86m
Living Room
4.78m x 3.46m
Utility Room
First Floor Landing
Bedroom 1
3.46m x 3.36m
En Suite
Bedroom 2
3.58m x 3.28m
Bedroom 3
3.30m x 2.29m
Single Garage & Parking
Floorplans
Outside Spaces
Garden
Parking Spaces
Garage
Capacity: 1
Driveway
Capacity: 1
Location
Situated in the village of Southbourne with access to local amenities. Excellent connectivity with strong road and rail links for easy commuting.
Properties you may like
By Henry Adams New Homes