Book a Viewing

To book a viewing for this property, please call Henry Adams - Storrington, on 01903 742535.

To book a viewing for this property, please call Henry Adams - Storrington, on 01903 742535.

For Sale
£200,000 Offers Over

2 Bedroom Flat, Station Road, Westminster House Station Road, RH20

Station Road, Westminster House Station Road, RH20


Henry Adams Primary Brand brand logo

Henry Adams - Storrington

Henry Adams LLP, Mulberry House, 8 The Square

Description

Introducing this modern 2 bedroom flat, formerly the old NatWest Bank converted in 2017. Conveniently located for the village amenities and moments away from the mainline station. Situated at the top floor of the building, this property boasts elevated views of the picturesque South Downs.

Upon entering, you are greeted with a secure entry system ensuring peace of mind and added convenience for residents. Once inside the apartment there is a useful private entrance hall before ascending to the accommodation. The inviting open plan kitchen/dining/sitting room, perfect for modern living and entertaining guests. The space is filled with natural light, creating a warm and welcoming atmosphere.

The property features two bedrooms, providing space for residents to rest and relax. The flat is beautifully presented throughout, offering a contemporary and stylish living environment. With no ongoing chain, the process of making this property your own is straightforward and hassle-free.

Whether you are a first-time buyer, downsizer, or investor, this property offers a fantastic opportunity to own a home in a desirable area with breath taking views. Don't miss out on the chance to make this stylish and modern flat your own.

Lease details 125 years from 27th October 2017

Ground rent: £150 per annum

Service charge: On average around £200 per flat per month, this includes insurance and block management charges.


EPC Rating: C

Key Features

  • Convenient location
  • Open plan Kitchen/Dining/Sitting room
  • Security entry system
  • Close to mainline station
  • Elevated views
  • No ongoing chain
  • Two bedrooms
  • Top floor apartment with South Down Views

Property Details

  • Property type: Flat
  • Price Per Sq Foot: £322
  • Approx Sq Feet: 622 sqft
  • Property Age Bracket: 2000s
  • Council Tax Band: B
  • Tenure: Leasehold
  • Lease Expiry: 27/10/2142
  • Ground Rent: £150.00 per year
  • Service Charge: £200.00 per month
Please note, property and plot sizes displayed are for guidance purposes only and may have been derived from publicly available information over which neither the agent nor Street.co.uk have control.

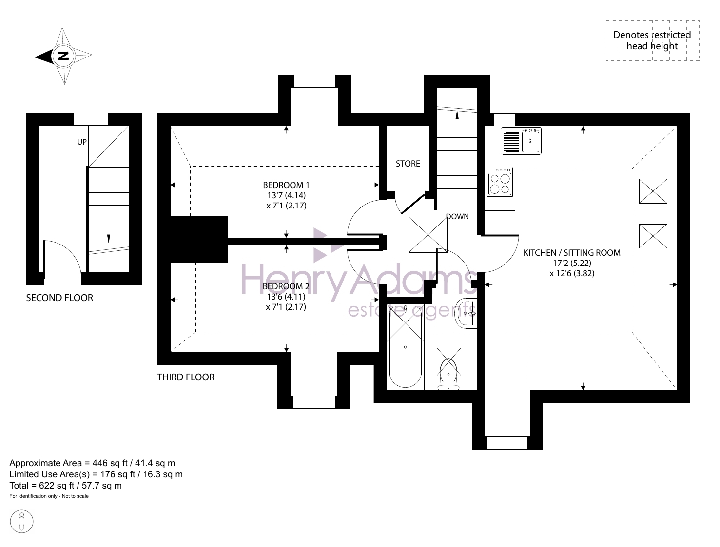
Floorplans

Location

Properties you may like

By Henry Adams - Storrington

Disclaimer - Property ID 9a55e599-2268-4a6a-8d1e-1b28d263c77e. The information displayed about this property comprises a property advertisement. Street.co.uk and Henry Adams - Storrington makes no warranty as to the accuracy or completeness of the advertisement or any linked or associated information, and Street.co.uk has no control over the content. This property advertisement does not constitute property particulars. The information is provided and maintained by the advertising agent. Please contact the agent or developer directly with any questions about this listing.