Book a Viewing
To book a viewing for this property, please call Boughtons Estate Agents, on 01280 830090.
To book a viewing for this property, please call Boughtons Estate Agents, on 01280 830090.
4 Bedroom Detached Bungalow, New Road, Brackley, NN13
New Road, Brackley, NN13

Boughtons Estate Agents
Boughtons Estate Agents, 44 Market Place
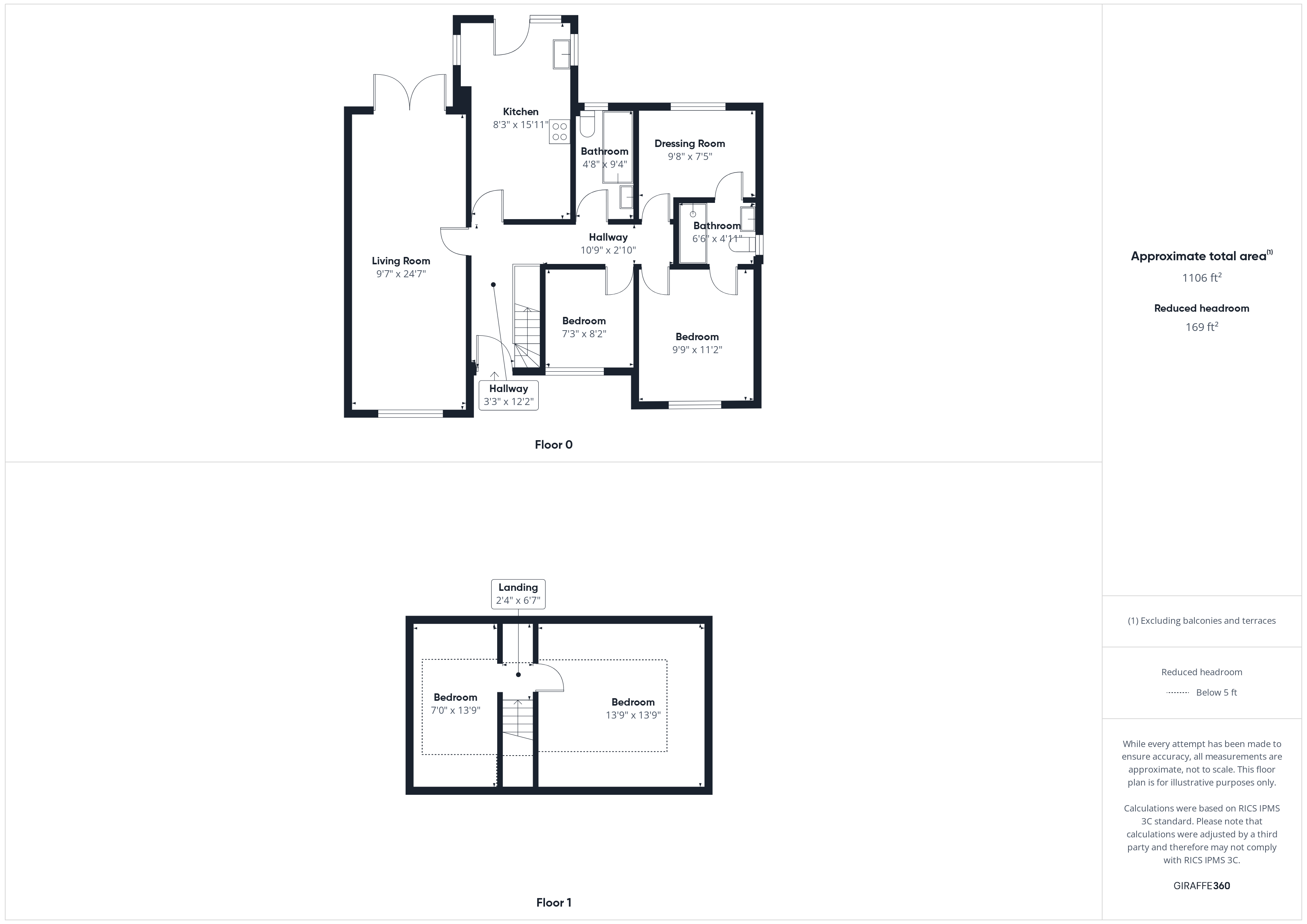
Description
Spacious Four-Bedroom Detached Dormer Bungalow on New Road, Brackley – Open-Plan Living, Garden, En-Suite & Modernisation Potential. Available With No Onward Chain.
Located on New Road in Brackley, this generously sized four-bedroom detached dormer bungalow provides a flexible layout, a private rear garden, and exciting opportunities for personalisation.
The ground floor features a spacious open-plan living and dining room with wood flooring and French doors opening directly onto the rear garden, creating a bright and sociable space. The kitchen, with wall and base units, provides direct access to the garden, perfect for enjoying both indoor and outdoor living.
On the ground floor, you'll find two well-sized bedrooms, including the master bedroom with en-suite bathroom and dressing-room for added privacy. Upstairs, there are two additional bedrooms, both featuring skylights that flood the rooms with natural light, creating a bright and airy atmosphere. The family bathroom is located on the ground floor.
Externally, the property boasts a patio front garden, providing an attractive and low-maintenance outdoor area. The driveway offers space for up to three cars, and the private rear garden, with both lawn and patio areas, is ideal for relaxation, entertaining, or children's play.
Located close to Brackley town centre, local schools, parks, and transport links, this dormer bungalow presents a wonderful opportunity to create a personalised family home in a prime location.
EPC Rating: D
Key Features
- Available with no onward chain
- Four generously sized bedrooms
- Detached dormer bungalow in Brackley
- Master bedroom with en-suite facilities on the ground floor
- Open-plan living and dining room with wood flooring
- Kitchen with wall and base units, featuring a RangeMaster oven and refrigerator, and direct access to the garden
- Patio front garden and private rear garden with lawn and patio areas
- Driveway for three cars
- Two upstairs bedrooms with skylights, creating a bright and airy feel
- Family bathroom on the ground floor
- Close to Brackley town centre, schools, shops, and transport links
Property Details
- Property type: Bungalow
- Plot Sq Feet: 2,669 sqft
- Council Tax Band: C
Floorplans
Outside Spaces
Parking Spaces
Driveway
Capacity: N/A
Location
Properties you may like
By Boughtons Estate Agents