Book a Viewing
To book a viewing for this property, please call Cornish Bricks, on 01872 211655.
To book a viewing for this property, please call Cornish Bricks, on 01872 211655.
3 Bedroom Detached Bungalow, Roselyon Place, Par, PL24
Roselyon Place, Par, PL24

Cornish Bricks
22 Pydar Street, Truro
Description
* * * NO ONWARD CHAIN * * *
SPACIOUS AND VERSATILE, THREE DOUBLE BEDROOM, DETACHED BUNGALOW, which sits on a LARGE CORNER PLOT, TUCKED AWAY AT THE VERY END OF A CUL-DE-SAC, WHICH CONSISTS OF JUST 6 BUNGALOWS.
The property is in the popular village of Par, which has all your local amenities to hand & a huge selling point of this property is its FANTASTIC NON-ESTATE LOCATION, THE GARDENS & INCREDIBLE PLOT SIZE. A great home as is, but offers HUGE POTENTIAL TO EXTEND.
PROPERTY:
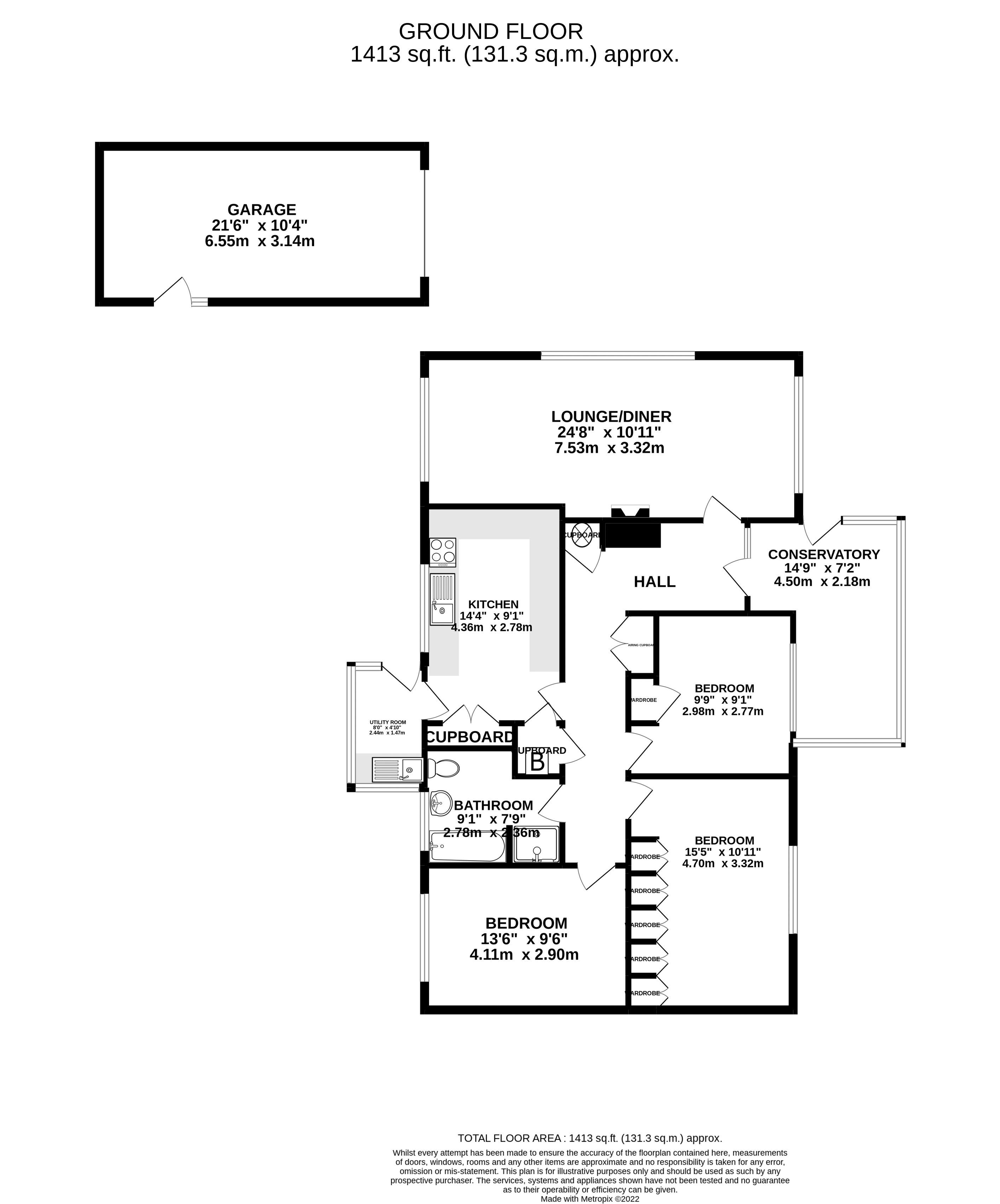
You enter the property into the sun room which is to the front enjoying, overlooking the large front garden and enjoying the outlook this cul de sac offers. This takes you through to the hallways which leads to the triple aspect lounge diner to the right. The lounge area has a feature electric fire with window to the front, side and rear.
The kitchen is to the rear, again of good size with a range of base and wall cupboards with working surfaces over. Inset sink. Space for all appliances. To the rear of the kitchen a small sun porch with utility area.
The property offers three bedrooms, all good-sized double bedrooms. The bathroom offers a white suite with the benefit of a bath and separate shower cubicle.
EXTERNALLY:
GARAGE - Both power & Light, up/over door to front and access door from the rear garden. A long driveway approaches the property, offering ample parking.
The gardens extend across the front of the property which is low maintenance and planted & maintained beautifully. The garden to the rear again is of excellent proportions, offers a great deal of privacy, laid to lawn with a large patio area, shed with access to the garage.
LOCATION:
Par is an extremely popular village with an excellent range of local amenities including library, chemist, post office, general stores, public houses and mainline railway station. There are two primary schools nearby. Within a short drive is the World Famous Eden Project.
A wider range of facilities can be found in the nearby town of St Austell, with leisure centre, further primary and secondary schools, several supermarkets, bars, restaurants and a cinema complex.
For those looking to enjoy the beautiful coastline that Cornwall offers, you will find a choice of three beaches in the Par area. The town of Fowey is approximately 4 miles away and is well known for its restaurants and coastal walks. The picturesque port of Charlestown and the award winning Eden Project are also within a short drive. The Cathedral City of Truro is approximately 20 miles from the property.
HEATING & GLAZING: Oil- Fired central heating and UPVC glazing.
SERVICES: Mains electric, water and drainage.
EPC RATING: D
EPC Rating: D
Key Features
- SPACIOUS & VERSATILE DETACHED BUNGALOW
- LARGE PLOT SIZE
- NO ONWARD CHAIN
- FANTASTIC CUL DE SAC POSITION
- POTENTIAL TO EXTEND
- LARGE FRONT & REAR GARDENS
- 3 DOUBLE BEDROOMS`
- GARAGE & AMPLE PARKING
Property Details
- Property type: Bungalow
- Council Tax Band: TBD
Floorplans
Location
Properties you may like
By Cornish Bricks