Sold STC
£120,000

2 Bedroom End of Terrace House, Earls Road, Nuneaton, CV11

Earls Road, Nuneaton, CV11


Carters Branding - Burgundy & Gold brand logo

Carters Estate Agents

66 St. Nicolas Park Drive, Nuneaton

Description

**CASH BUYERS ONLY**STRUCTURAL MOVEMENT**

NOTE, This property has structural movement and can only be purchased by a cash transaction.

Carters are delighted to offer this traditional two-bedroom end of terrace property, ideally located in a highly sought-after area close to Nuneaton’s vibrant town centre. With excellent access to a wide range of local amenities, including shops, schools, and the bus and train stations, this property offers convenience in abundance.

The home is in need of full modernisation, making it a superb opportunity for buyers looking to put their own stamp on a property. Offered with no upward chain, it presents the perfect canvas for renovation, whether as a investment project or to create a charming residence tailored to your own style.

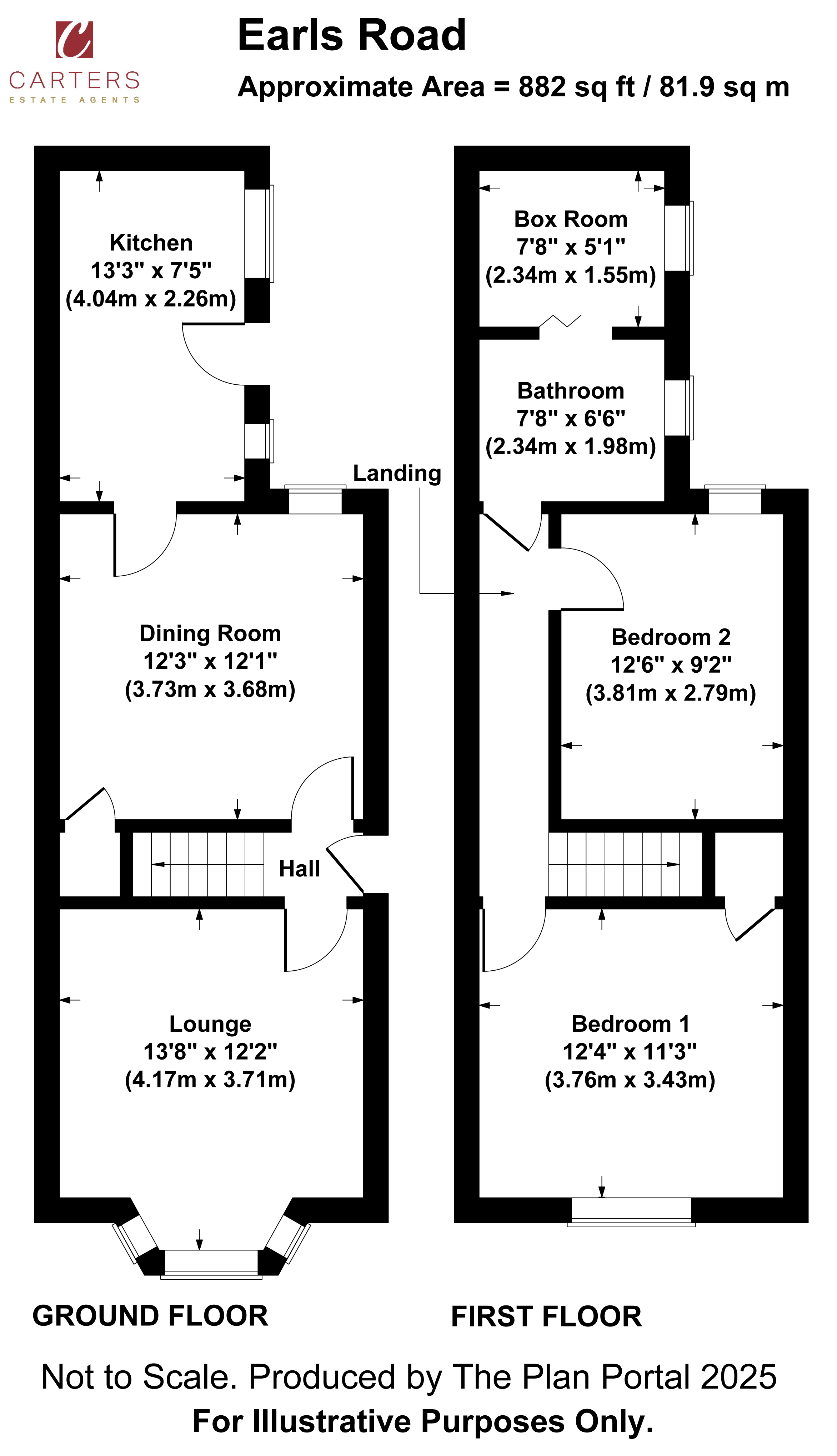
The accommodation comprises two reception rooms and a kitchen to the ground floor, offering flexible living space with plenty of scope for reconfiguration. To the first floor are two bedrooms, a bathroom and a useful box room.

We hold a recent structural report with a summary of suggested works, which is available for inspection in our office only.

This is a property brimming with potential, in a location that continues to be in high demand.

Key Features

  • CASH BUYERS ONLY
  • NO UPWARD CHAIN
  • TWO BEDROOMS
  • POPULAR LOCATION
  • STRUCTURAL MOVEMENT
  • FULL MODERNISATION REQUIRED
  • BLOCK VIEWINGS ONLY

Property Details

  • Property type: House
  • Property style: End of Terrace
  • Council Tax Band: TBD
  • Property Ipack: MATERIAL INFORMATION
Please note, property and plot sizes displayed are for guidance purposes only and may have been derived from publicly available information over which neither the agent nor Street.co.uk have control.

Floorplans

Location

Properties you may like

By Carters Estate Agents

Disclaimer - Property ID 9e92798c-557c-4f38-9fb0-b4b94476c389. The information displayed about this property comprises a property advertisement. Street.co.uk and Carters Estate Agents makes no warranty as to the accuracy or completeness of the advertisement or any linked or associated information, and Street.co.uk has no control over the content. This property advertisement does not constitute property particulars. The information is provided and maintained by the advertising agent. Please contact the agent or developer directly with any questions about this listing.