Book a Viewing

To book a viewing for this property, please call Allen Heritage, on 020 8777 3000.

To book a viewing for this property, please call Allen Heritage, on 020 8777 3000.

For Sale
£350,000

2 Bedroom Mid-Terraced House, Helder Street, South Croydon, CR2

Helder Street, South Croydon, CR2


Allen Heritage Primary Brand brand logo

Allen Heritage

Description

This classic mid-terrace cottage is well located and offers a buyer the perfect opportunity to really make this home their own. The accommodation includes two reception rooms, a kitchen, a ground-floor bathroom, and two double bedrooms. You will find a private garden to the rear, and the property is offered CHAIN FREE.

Location
Helder Street is a small, peaceful residential side street with amenities within very easy reach. Within half a mile is South Croydon mainline railway station, which serves London Bridge and Gatwick Airport, and East Croydon station is approximately 1.4 of a mile away. East Croydon Station offers a range of fast rail services serving London Victoria, Clapham Junction, St Pancras International, Eastbourne, and Gatwick Airport, among many other destinations too. Around 0.6 of a mile away, you will find a wide range of restaurants and bars on South End, and the very pleasant Park Hill recreation Ground is around a mile away.

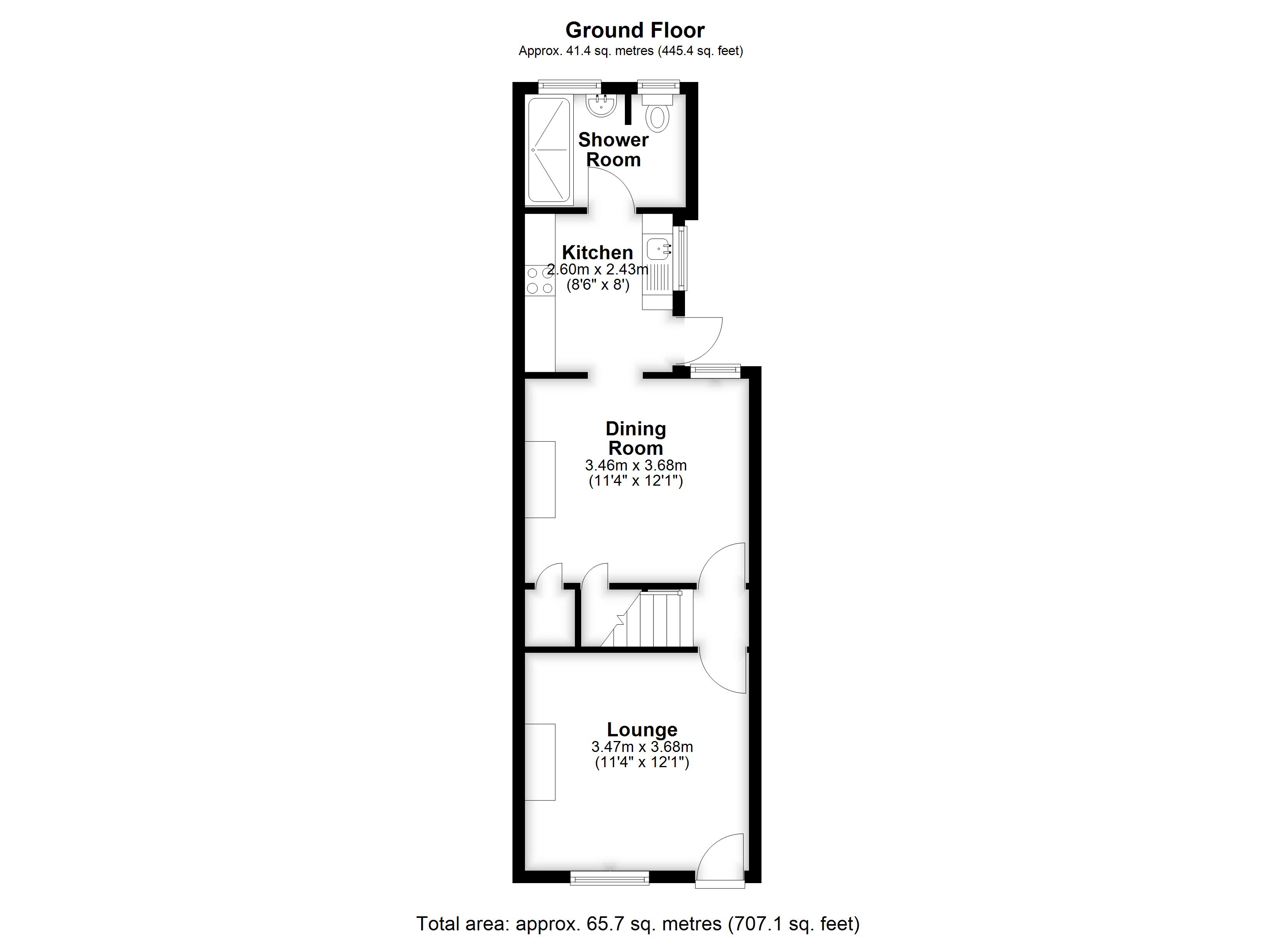
The Ground Floor Accommodation
Lounge 3.68m (12'1") x 3.47m (11'4")
Dining Room 3.68m (12'1") x 3.46m (11'4")
Kitchen 2.60m (8'6") x 2.43m (8')
Shower Room 2.64m (8'8") x 1.86m (6'1")

The First Floor Accommodation
Landing

Bedroom 1 3.67m (12') x 3.45m (11'4")
Bedroom 2 3.67m (12') x 3.37m (11')


EPC Rating: D

Key Features

  • Classic Turn Of The Century Cottage
  • Two Double Bedrooms
  • Two Reception Rooms
  • Private Rear Garden
  • Popular Residential Location
  • Offered CHAIN FREE

Property Details

  • Property type: House
  • Property style: Mid-Terraced
  • Price Per Sq Foot: £465
  • Approx Sq Feet: 753 sqft
  • Plot Sq Feet: 12,282 sqft
  • Council Tax Band: C
Please note, property and plot sizes displayed are for guidance purposes only and may have been derived from publicly available information over which neither the agent nor Street.co.uk have control.

Outside Spaces

Garden

9.00m x 5.00m

Location

Properties you may like

By Allen Heritage

Disclaimer - Property ID a3bb9d70-af44-42de-b171-887e3cde102d. The information displayed about this property comprises a property advertisement. Street.co.uk and Allen Heritage makes no warranty as to the accuracy or completeness of the advertisement or any linked or associated information, and Street.co.uk has no control over the content. This property advertisement does not constitute property particulars. The information is provided and maintained by the advertising agent. Please contact the agent or developer directly with any questions about this listing.