Book a Viewing

To book a viewing for this property, please call Myrings Estate Agents, on 01423 566400.

To book a viewing for this property, please call Myrings Estate Agents, on 01423 566400.

For Sale
£190,000 Guide Price

2 Bedroom Terraced House, Regent Terrace, Harrogate, HG1

Regent Terrace, Harrogate, HG1


NEW NEW NEW BRAND brand logo

Myrings Estate Agents

Myrings Estate Agents Ltd, 10 Princes Square

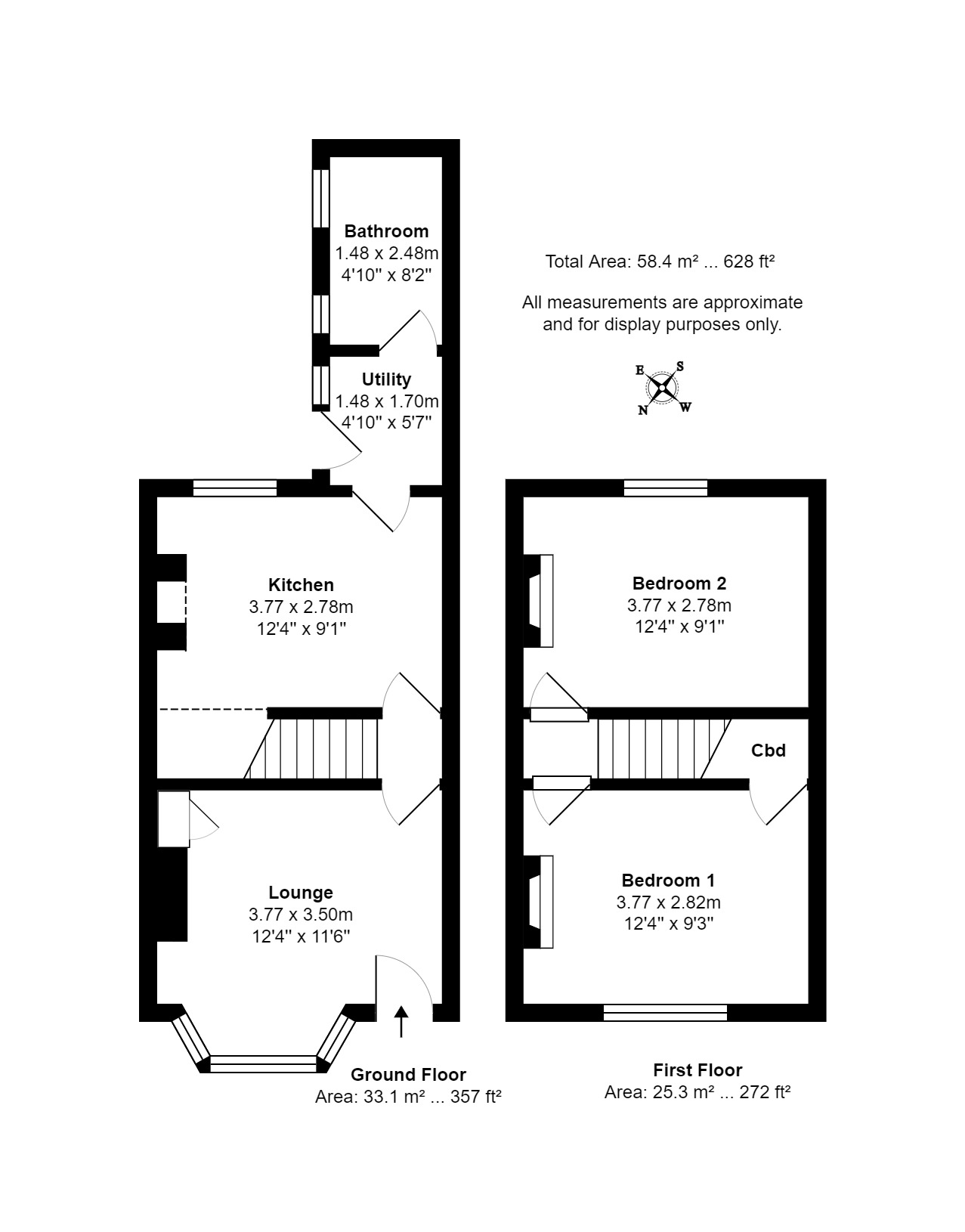
Description

Nestled in a popular residential area just a short walk from Harrogate town centre, this charming two-bedroom mid-terrace property offers convenient access to a range of local amenities and excellent transport links.

Beautifully presented throughout, the home briefly comprises: a spacious bay-fronted lounge, a well-proportioned kitchen fitted with a range of modern base and wall units, a utility lobby, and a ground floor bathroom featuring a white suite with shower over bath.

Upstairs, there are two comfortable double bedrooms, with the principal bedroom benefiting from a generous walk-in wardrobe.

Externally, the property enjoys a low-maintenance courtyard garden to the rear with a small planting bed, and a neat gravelled area to the front.

This lovely home combines character and practicality, making it ideal for first-time buyers, investors, or anyone seeking a well-located Harrogate property.


EPC Rating: D

Key Features

  • Newly decorated
  • Modern bathroom

Property Details

  • Property type: House
  • Property style: Terraced
  • Price Per Sq Foot: £310
  • Approx Sq Feet: 614 sqft
  • Property Age Bracket: Victorian (1830 - 1901)
  • Council Tax Band: B
Please note, property and plot sizes displayed are for guidance purposes only and may have been derived from publicly available information over which neither the agent nor Street.co.uk have control.

Floorplans

Outside Spaces

Garden

Front and rear gardens laid to gravel with planting area to the rear.

View Photos

Location

Regent Terrace is part of a popular residential area close to the Stray Parkland and Harrogate's town centre which offers a wide variety of restaurants, bars and designer boutiques. The train and central bus station's are a short walk for the daily commuter travelling into Leeds, York and beyond. The A1M is only 7 miles away which links into the national motorway network. There are excellent choices of reputable primary and secondary schools also within walking distance.

Properties you may like

By Myrings Estate Agents

Disclaimer - Property ID a50cd021-a00a-486d-b635-b17ca95998e3. The information displayed about this property comprises a property advertisement. Street.co.uk and Myrings Estate Agents makes no warranty as to the accuracy or completeness of the advertisement or any linked or associated information, and Street.co.uk has no control over the content. This property advertisement does not constitute property particulars. The information is provided and maintained by the advertising agent. Please contact the agent or developer directly with any questions about this listing.