Book a Viewing
To book a viewing for this property, please call Myrings Estate Agents, on 01423 566400.
To book a viewing for this property, please call Myrings Estate Agents, on 01423 566400.
5 Bedroom Detached House, Red Admiral Way, Knaresborough, HG5
Red Admiral Way, Knaresborough, HG5

Myrings Estate Agents
Myrings Estate Agents Ltd, 10 Princes Square
Description
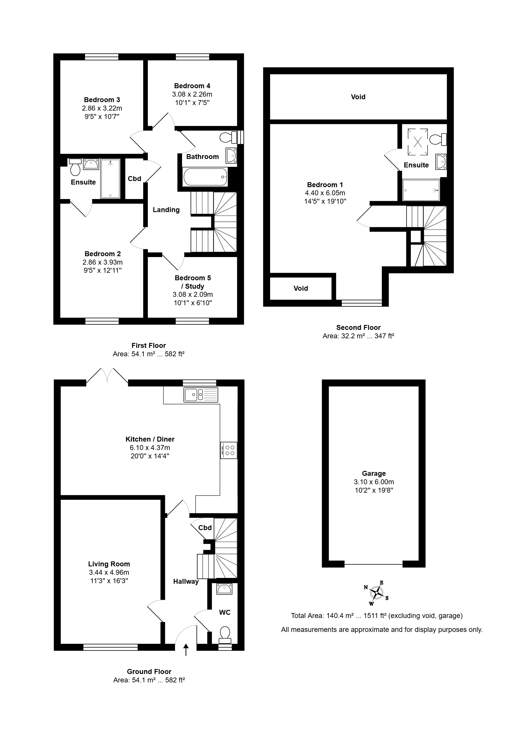
Located on a sought-after development, this impressive five-bedroom detached property offers spacious and versatile accommodation over three floors, complemented by modern interiors, driveway parking, garage, and an enclosed rear garden.
The ground floor opens with a welcoming entrance hall and guest WC. To the front sits a bright and comfortable living room, while to the rear, the highlight of the home is found — a contemporary open-plan kitchen-diner with ample space for family meals and entertaining, complete with French doors leading directly onto the private garden.
The first floor offers three generous double bedrooms plus a smaller double that could serve equally well as a study or nursery. One of the bedrooms enjoys its own en-suite shower room, in addition to the modern family bathroom on this level.
The second floor is dedicated to a superb principal bedroom suite wardrobes and a stylish en-suite, providing a private retreat away from the main living spaces.
Externally, the property benefits from driveway parking and a garage, along with an enclosed rear garden ideal for outdoor dining, play, and relaxation.
This is an excellent opportunity to acquire a modern and flexible family home in a desirable Knaresborough location.
PARKING
The parking at this property is ; driveway parking
HEATING
The heating supply at this property is; mains gas
COUNCIL TAX BAND
Band E
UTILITIES
All mains services are connected to the property
BROADBAND
The property has broadband connection available, for an indication of specifics speeds and supply we recommend you check these details using the Ofcom online search tool
https://checker.ofcom.org.uk/en-gb/broadband-coverage
MOBILE SIGNAL / COVERAGE
Mobile phone signal speed, supply and coverage can be checked using the Ofcom online search tool
https://checker.ofcom.org.uk/en-gb/mobile-coverage
HOLDING DEPOSIT
A holding deposit equal to one week’s rent will be payable to reserve the property. Please Note: This will be withheld if any relevant person (including any guarantor(s)) withdraw from the tenancy, fail a Right-to-Rent check, provide materially significant false or misleading information, or fail to sign their tenancy agreement (and / or Deed of Guarantee) within 15 calendar days (or other Deadline for Agreement as mutually agreed in writing).
SECURITY DEPOSIT
A security deposit is payable, equal to five weeks’ rent for rent under £50,000 per year. The security deposit will be equal to six weeks’ rent for rent of £50,000 or more per year.
EPC Rating: B
Key Features
- DETACHED PROPERTY
- DESIRABLE LOCATION
- SPACIOUS ACCOMMODATION
- FIVE BEDROOMS
- THREE BATHROOMS
- MODERN INTERIORS
Property Details
- Property type: House
- Approx Sq Feet: 1,475 sqft
- Plot Sq Feet: 3,089 sqft
- Property Age Bracket: New Build
- Council Tax Band: E
Floorplans
Outside Spaces
Parking Spaces
Garage
Capacity: 2
Garage and Driveway parking
Driveway
Capacity: N/A
Location
Red Admiral Way is a modern residential street in East Knaresborough, North Yorkshire, made up mainly of recently built detached and semi-detached homes. The area is quiet, family-friendly, and relatively affluent, with low crime levels and good access to local amenities including supermarkets, schools, and bus services. Knaresborough town centre and the railway station are nearby, while the A1(M) is easily accessible for commuters. Properties on the street are well-presented with gardens, driveways and garages, making it a desirable location for families and professionals alike
Properties you may like
By Myrings Estate Agents