Book a Viewing

To book a viewing for this property, please call Mansell McTaggart Haywards Heath, on 01444 456431.

To book a viewing for this property, please call Mansell McTaggart Haywards Heath, on 01444 456431.

For Sale
£575,000 Guide Price

3 Bedroom Semi Detached House, Dellney Avenue, Haywards Heath, RH16

Dellney Avenue, Haywards Heath, RH16


Colour Logo - Full brand logo

Mansell McTaggart Haywards Heath

Mansell McTaggart Estate Agents, 7 Muster Green South

Description

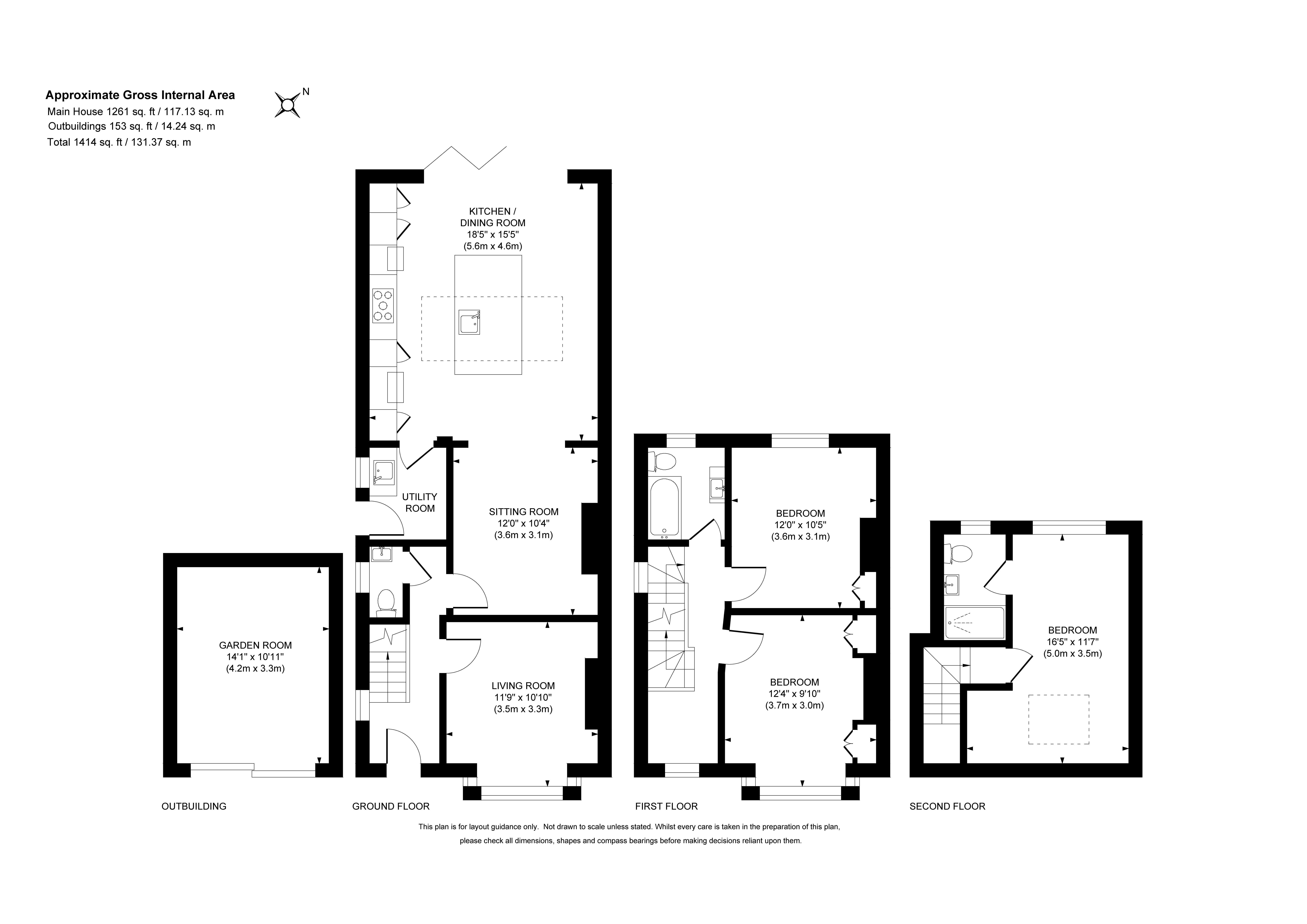
Guide Price £575,000 - £600,000 - A fabulous home that has just been the subject of a major refurbishment and enlargement programme to include a loft conversion, reconfiguration and a substantial extension on the ground floor to the rear to provide a huge family home. There is an 80' x 21' west facing garden with a timber studio. The property is situated in this established area just to the south of the main town centre and very close to the hospital and St Wilfrid’s Primary school.


EPC Rating: C

Virtual Tour


Key Features

  • Huge family home in prime established location
  • 80' west facing garden with studio/office
  • Living room with a wood burning stove
  • Orangery style kitchen extension with bi-fold doors out to the rear garden
  • Kitchen has stone worktops and integrated appliances
  • Dining area with wood burning stove
  • Downstairs cloakroom and utility room
  • Top floor master suite with en-suite shower room
  • 2 big first floor bedrooms and family bathroom
  • Private block paved driveway parking area
  • Close to town centre – 1.3 mile walk to station
  • EPC rating: C - Council Tax Band: D

Property Details

  • Property type: House
  • Property style: Semi Detached
  • Price Per Sq Foot: £456
  • Approx Sq Feet: 1,261 sqft
  • Council Tax Band: D
Please note, property and plot sizes displayed are for guidance purposes only and may have been derived from publicly available information over which neither the agent nor Street.co.uk have control.

Floorplans

Location

Dellney Avenue runs between Franklynn Road and Victoria Road just to the south east of the main town centre and is ideally placed within a 5 minute walk of the Princess Royal Hospital and St Wilfrid's Primary School. This established residential area is ideally placed within a 10 minute walk of the town centre and a 1.3 mile walk of the railway station. Children from this side of town fall into the catchment area for Oathall Community College in Lindfield with its farm. The town has an extensive range of shops, stores, cafes, restaurants and bars, leisure centre and 6th form college. Road access to the major surrounding areas can be gained via the B2112, the A272 town relief road and the A/M23 which lies about 6 miles to the west at Bolney or Warninglid. Distances: (on foot/by car in miles) St Wilfrid’s Primary School 0.15, Oathall Community College 0.8, Princess Royal Hospital 0.3, Railway station 1.3, A23 Bolney 6, Gatwick Airport 14, Brighton seafront 1.

Properties you may like

By Mansell McTaggart Haywards Heath

  • Weavers Mead, Haywards Heath, RH16

    • 2 Beds
    • 2 Bath
    View Property
  • Knight Close, Haywards Heath, RH16

    • 3 Beds
    • 2 Bath
    View Property
  • The Droveway, Haywards Heath, RH16

    • 4 Beds
    • 2 Bath
    View Property
  • Balcombe Road, Haywards Heath, RH16

    • 4 Beds
    • 3 Bath
    View Property
  • Rookery Way, Haywards Heath, RH16

    • 4 Beds
    • 4 Bath
    View Property
  • Harlands Road, Harlands House Harlands Road, RH16

    • 2 Beds
    • 2 Bath
    View Property
  • Great Heathmead, Anscome House Great Heathmead, RH16

    • 2 Beds
    • 1 Bath
    View Property
  • Ashenground Close, Haywards Heath, RH16

    • 3 Beds
    • 2 Bath
    View Property
  • Trubwick Avenue, Waverley House, RH16

    • 2 Beds
    • 2 Bath
    View Property
Disclaimer - Property ID abda80bd-c33e-4a9b-b96e-59323da35746. The information displayed about this property comprises a property advertisement. Street.co.uk and Mansell McTaggart Haywards Heath makes no warranty as to the accuracy or completeness of the advertisement or any linked or associated information, and Street.co.uk has no control over the content. This property advertisement does not constitute property particulars. The information is provided and maintained by the advertising agent. Please contact the agent or developer directly with any questions about this listing.