3 Bedroom Mid-Terraced House, The Avenue, Harrogate, HG1

The Avenue, Harrogate, HG1

Description

This beautifully presented three bedroom period terrace property is located on a quiet, tree lined road within a five minute walk of Starbeck train station and boasts front and rear gardens.

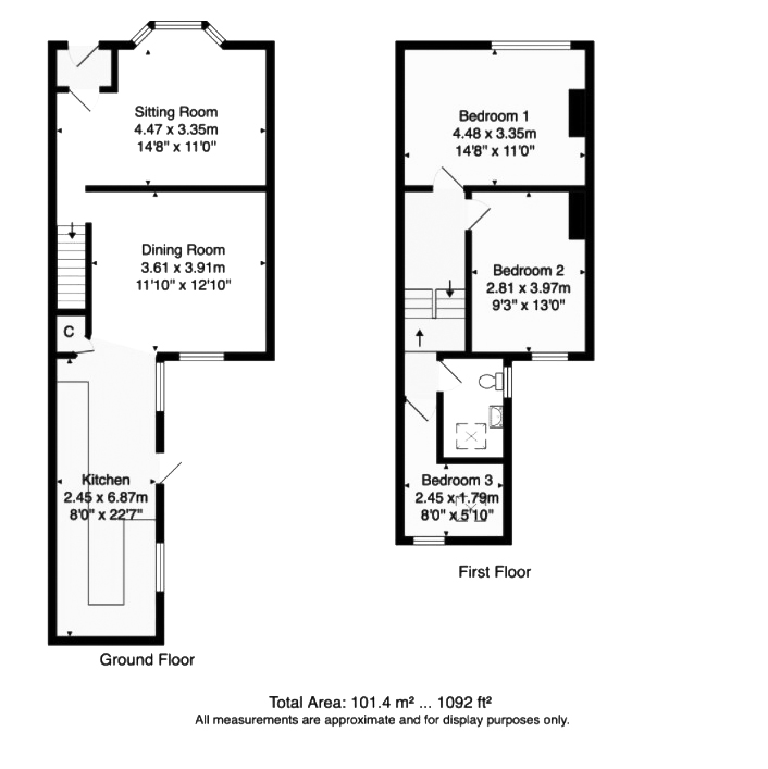
The front garden has been recently landscaped and has a manicured lawn and a seating area which is a real sun trap. The house, offering over 1000 square feet of accommodation, opens via an entrance porch into a hall open to a lovely bay fronted living room centred around a feature log burning stove. Adjoining there is a large open plan dining room which leads through to a modern fitted kitchen with a range of units. An access door opens out to the good sized, private and enclosed rear garden. Ascending to the first floor, a naturally light and airy split level landing with velux window branches firstly onto a stylish house bathroom with an over bath shower, and bedroom three which is ideal as a home office, study or nursery. There are two additional very well proportioned double bedrooms.


EPC Rating: D

Property Details

  • Property type: House
  • Property style: Mid-Terraced
  • Approx Sq Feet: 958 sqft
  • Plot Sq Feet: 1,884 sqft
  • Council Tax Band: B
Please note, property and plot sizes displayed are for guidance purposes only and may have been derived from publicly available information over which neither the agent nor Street.co.uk have control.

Floorplans

Location

Properties you may like

By Myrings Estate Agents

Disclaimer - Property ID b19b98d5-e639-4b34-a053-bd89123accd2. The information displayed about this property comprises a property advertisement. Street.co.uk and Myrings Estate Agents makes no warranty as to the accuracy or completeness of the advertisement or any linked or associated information, and Street.co.uk has no control over the content. This property advertisement does not constitute property particulars. The information is provided and maintained by the advertising agent. Please contact the agent or developer directly with any questions about this listing.