Book a Viewing
To book a viewing for this property, please call Lisa Costa Residential Sales &Lettings, on 01454 279734.
To book a viewing for this property, please call Lisa Costa Residential Sales &Lettings, on 01454 279734.
For Sale
£387,500
4 Bedroom Town House, Leaze Close, Thornbury, BS35
Leaze Close, Thornbury, BS35
Lisa Costa Residential Sales &Lettings
Lisa Costa Residential Sales & Lettings, 53 High Street
Description
Nestled in the heart of Thornbury, this immaculately presented townhouse offers a perfect blend of convenience and comfort for modern living. A mere stone's throw away from all of Thornbury's amenities, this property boasts a prime location that is second to none.
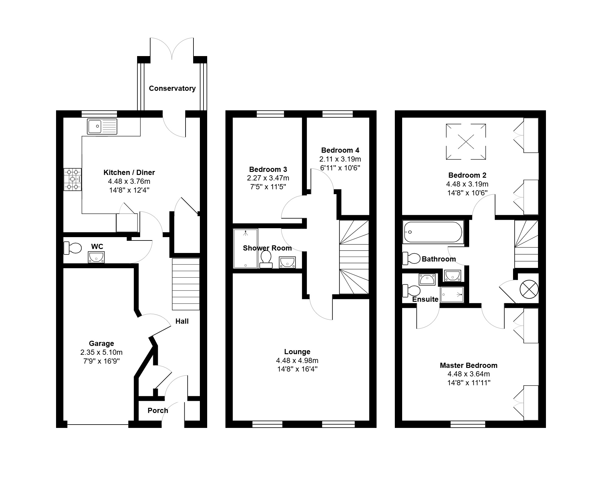
Spread over three floors, the flexible living accommodation of this townhouse is designed to meet the demands of a contemporary lifestyle. As you step into the property, you are greeted by an inviting entrance hall with a convenient wc, leading to a modern kitchen/breakfast room that is as functional as it is stylish. The adjacent conservatory provides a tranquil space to unwind and overlooks the pretty rear garden.
Moving upwards, the first floor is home to a spacious living room, along with bedrooms three and four, serviced by a sleek shower room. Ascend to the second floor to discover the master bedroom complete with an en suite shower room, alongside the second bedroom - both benefiting from fitted wardrobes. The family bathroom offers a touch of luxury to complete the sleeping quarters.
Outside, the property features a pretty rear garden with mature borders, offering a private retreat for relaxation and entertaining. Additional features include an integral garage and driveway parking, ensuring that practicality meets comfort seamlessly.
In conclusion, this townhouse in Thornbury presents a rare opportunity to embrace a lifestyle of convenience and modernity in a highly sought-after location. With its flexible living spaces, abundance of natural light, and charming outdoor setting, this property is not just a house but a place to call home. Arrange a viewing today and experience the allure of this stunning residence for yourself.
EPC Rating: B
Spread over three floors, the flexible living accommodation of this townhouse is designed to meet the demands of a contemporary lifestyle. As you step into the property, you are greeted by an inviting entrance hall with a convenient wc, leading to a modern kitchen/breakfast room that is as functional as it is stylish. The adjacent conservatory provides a tranquil space to unwind and overlooks the pretty rear garden.
Moving upwards, the first floor is home to a spacious living room, along with bedrooms three and four, serviced by a sleek shower room. Ascend to the second floor to discover the master bedroom complete with an en suite shower room, alongside the second bedroom - both benefiting from fitted wardrobes. The family bathroom offers a touch of luxury to complete the sleeping quarters.
Outside, the property features a pretty rear garden with mature borders, offering a private retreat for relaxation and entertaining. Additional features include an integral garage and driveway parking, ensuring that practicality meets comfort seamlessly.
In conclusion, this townhouse in Thornbury presents a rare opportunity to embrace a lifestyle of convenience and modernity in a highly sought-after location. With its flexible living spaces, abundance of natural light, and charming outdoor setting, this property is not just a house but a place to call home. Arrange a viewing today and experience the allure of this stunning residence for yourself.
EPC Rating: B
Key Features
- Immaculately presented town house based in the centre of Thornbury
- A stones throw from all of Thornbury's amenities
- Flexible living accommodation spread over three floors
- Four bedrooms
- Master bedroom with en suite shower room
- Spacious living room
- Modern kitchen/breakfast room
- Conservatory overlooking the pretty rear garden
- Two 'family' bathrooms and a down stairs wc
- Integral garage & driveway parking
Property Details
- Property type: Town House
- Council Tax Band: D
Floorplans
Outside Spaces
Garden
Parking Spaces
Garage
Capacity: 1
Location
Properties you may like
By Lisa Costa Residential Sales &Lettings
Disclaimer - Property ID bffcb349-e780-422a-9256-bc3dd687227d. The information displayed
about this property comprises a property advertisement. Street.co.uk and Lisa Costa Residential Sales &Lettings makes no warranty as to
the accuracy or completeness of the advertisement or any linked or associated information,
and Street.co.uk has no control over the content. This property advertisement does not
constitute property particulars. The information is provided and maintained by the
advertising agent. Please contact the agent or developer directly with any questions about
this listing.