3 Bedroom Semi Detached House, Llewellyn Chase, Old Wolverton, MK12

Llewellyn Chase, Old Wolverton, MK12

Description

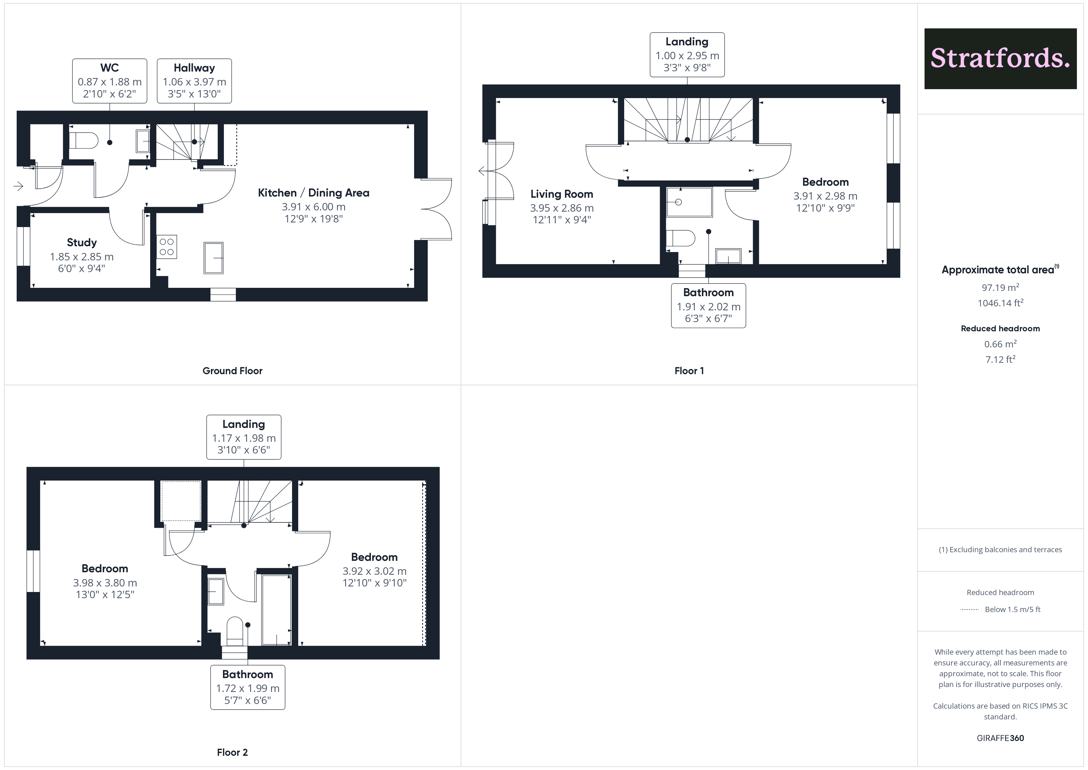
Arranged over three floors, this thoughtfully designed family home offers a superb balance of space and functionality. The ground floor features a well-equipped kitchen and dining area with access to the rear garden, a convenient WC, and a versatile study ideal for home working. The first floor hosts a bright living room with Juliet balcony, a spacious double bedroom, and a tiled ensuite with walk-in shower.

The top floor presents two further generously sized bedrooms with ample room for wardrobes, and a second contemporary bathroom. Finished to a good standard throughout, this property benefits from double glazing and efficient gas central heating.

The rear garden has been landscaped for low maintenance, combining artificial lawn with decorative stonework and a large decked seating area—perfect for outdoor dining or entertaining. A selection of established trees provides seasonal greenery and added privacy.

  • Nearest Bus Stops:

    • Hodge Lea Lane (0.3 miles) – Routes 6, 6A

    • Old Wolverton Road (0.4 miles) – Routes 5, 6

    • Greenleys Local Centre (0.5 miles) – Routes 5, 6, 7

  • Nearest Train Stations:

    • Wolverton Station – 0.6 miles

    • Milton Keynes Central – 2.4 miles

  • Nearby Schools:

    • Bushfield School – 0.7 miles – Ofsted: Good (Ages 7–11)

    • Wyvern School – 1.0 miles – Ofsted: Good (Ages 3–11)

    • The Radcliffe School – 1.3 miles – Ofsted: Good (Ages 11–18)


EPC Rating: C

Key Features

  • Three Double Bedrooms
  • Spacious Three-Storey Layout
  • Modern Kitchen with Integrated Oven
  • Living Room with Juliet Balcony
  • Study/Office Room
  • Carport with Space for Two to Three Vehicles
  • Low Maintenance Rear Garden with Decked Area
  • Gas Central Heating
  • Double Glazed Windows
  • Ultrafast 900mbs Internet Available

Property Details

  • Property type: House
  • Property style: Semi Detached
  • Approx Sq Feet: 1,046 sqft
  • Plot Sq Feet: 1,550 sqft
  • Council Tax Band: D
Please note, property and plot sizes displayed are for guidance purposes only and may have been derived from publicly available information over which neither the agent nor Street.co.uk have control.

Floorplans

Outside Spaces

Rear Garden

View Photos

Parking Spaces

Car port

Capacity: 2

View Photos

Location

Properties you may like

By Stratfords Lettings Ltd

  • £2,500 pcm

    Wood End, Little Horwood, MK17

    • 4 Beds
    • 3 Bath
    View Property
  • £1,600 pcm

    Kirby Road, Dunstable, LU6

    • 4 Beds
    • 2 Bath
    View Property
  • £1,100 pcm

    Gyles Close, Winslow, MK18

    • 2 Beds
    • 1 Bath
    View Property
  • £1,100 pcm

    Hockliffe Street, Oakland House, LU7

    • 2 Beds
    • 2 Bath
    View Property
  • £1,400 pcm

    Cornelia Close, Bletchley, MK2

    • 3 Beds
    • 1 Bath
    View Property
Disclaimer - Property ID c2c12149-7f2e-40e6-abd3-96f006dca6f7. The information displayed about this property comprises a property advertisement. Street.co.uk and Stratfords Lettings Ltd makes no warranty as to the accuracy or completeness of the advertisement or any linked or associated information, and Street.co.uk has no control over the content. This property advertisement does not constitute property particulars. The information is provided and maintained by the advertising agent. Please contact the agent or developer directly with any questions about this listing.