3 Bedroom Semi Detached House, Drumpellier Avenue, Coatbridge, ML5
Drumpellier Avenue, Coatbridge, ML5

HSP Homes Ltd t/a Housespotters Estate Agents
Clyde Offices, 2/3
Description
Stunning Refurbished 3-Bedroom Semi-Detached Villa – Drumpellier, Coatbridge
Located in the highly sought-after Drumpellier area of Coatbridge, this beautifully refurbished semi-detached villa is the very definition of a turn-key home. Finished to an exceptional standard throughout, it offers modern living with no ongoing maintenance required – ideal for young professional families or those looking to downsize in style.
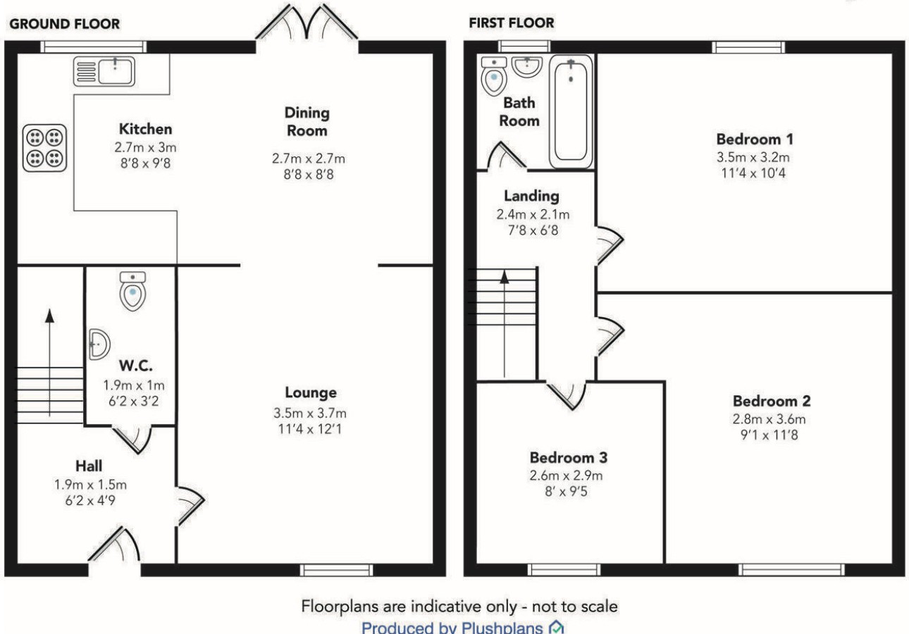
Upon entering, a bright and welcoming hallway leads to the upper landing, with fresh new carpets and access to a convenient downstairs WC. The quality flooring flows seamlessly through to the open-plan lounge, dining area, and kitchen. The lounge is flooded with natural light via a striking floor-to-ceiling double-glazed window, while steps lead to the formal dining space. From here, French doors open onto a decked terrace, perfectly positioned to enjoy the privacy of the landscaped rear garden.
The bespoke kitchen is a real highlight, offering a wide range of wall and floor-mounted units, complete with complimentary worktops and splashback. Integrated appliances are included, ensuring both style and functionality.
Upstairs, the accommodation comprises three generously sized bedrooms – two doubles and a large single – all presented in immaculate condition. The luxury three-piece family bathroom features a contemporary vanity suite and mains shower over the bath, completing the upper level.
Externally, the property continues to impress. The front benefits from a brand-new monoblock driveway providing off-street parking, while the rear garden has been thoughtfully designed with decking, low-maintenance Astro grass, flower beds, grey stone chips, and secure timber fencing.
Additional features include brand-new double glazing, updated electrics, and a modern gas central heating system, ensuring efficiency and comfort.
This truly outstanding home, set within one of Coatbridge’s most desirable locations, is certain to appeal to a wide range of buyers and must be viewed to be fully appreciated.
EPC Rating: D
Key Features
- Refurbished semi detached villa
- Desired Drumpellier district of Coatbridge
- Fabulous lounge to dining kitchen
- Downstairs WC
- 3 size bedrooms
- Luxury bathroom
- Off street parking
- Landscaped enclosed rear garden
- Double glazing & new gas central heating
- Upgraded electrics
Property Details
- Property type: House
- Price Per Sq Foot: £294
- Approx Sq Feet: 850 sqft
- Property Age Bracket: 1970 - 1990
- Council Tax Band: D
- Property Ipack: Home Report
Floorplans
Location
Drumpellier is conveniently placed for schooling, shopping and only a short distance from Drumpellier Country Park and it's amenities. Within the immediate area and the town of Coatbridge, there is a great choice of restaurants, bistros and pubs and for those commuting by public transport there are regular bus and train services from Coatbridge or Blairhill to the surrounding towns and cities including Glasgow and Edinburgh. The M74 motorway provides excellent access to the central belt linking the surrounding towns and cities. Sports facilities are in abundance and include golf courses, swimming pools, gyms and country parks with picturesque walks.
Properties you may like
By HSP Homes Ltd t/a Housespotters Estate Agents