3 Bedroom Bungalow, Victoria Way, Bramhall, SK7

Victoria Way, Bramhall, SK7

Description

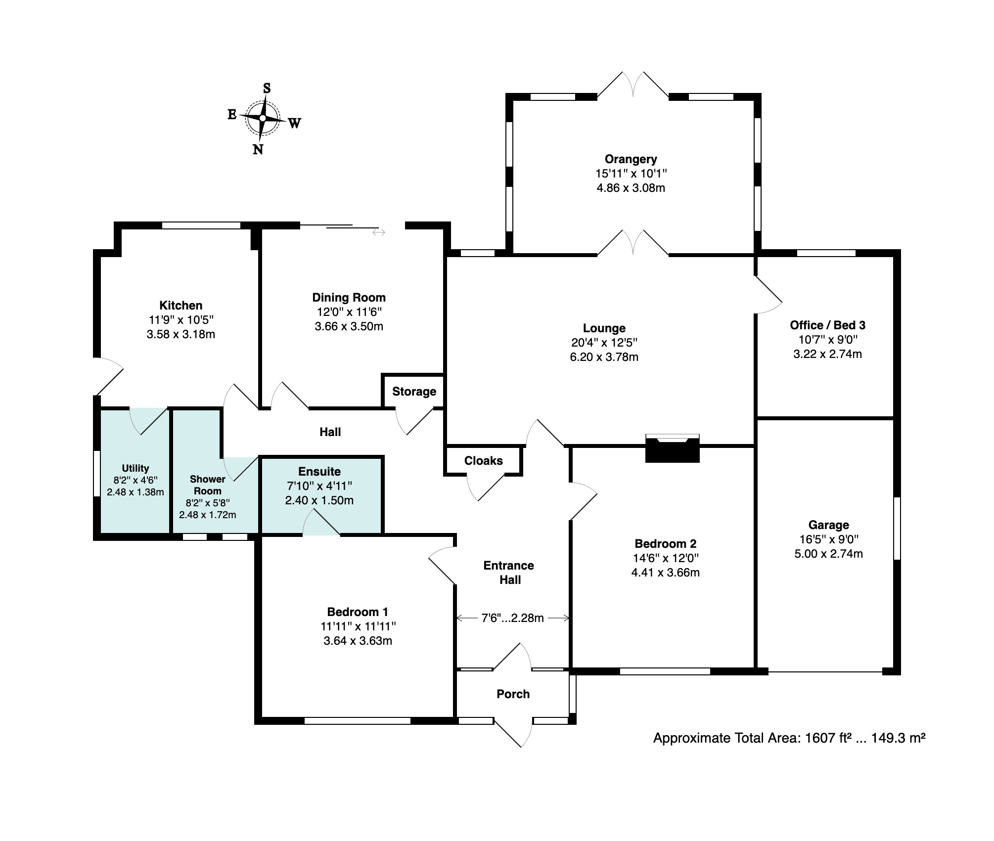
Nestled in the heart of a popular central village location, this charming 3-bedroom bungalow offers a blend of comfort and convenience. Boasting a spacious lounge and an additional study room that could easily be transformed into a fourth bedroom, this property provides versatile living space for families or professionals working from home. The well-appointed accommodation includes two main double bedrooms, two bathrooms (including an ensuite), a breakfast kitchen for culinary enthusiasts, and an inviting orangery-style conservatory that floods the home with natural light. The property also features a driveway and attached garage for off-road parking, ensuring every aspect of modern living is catered for. With the added bonus of a good-size south-facing garden, residents can enjoy outdoor living in a tranquil setting. This residence is perfect for those seeking a quick move, with no vendor chain offering a hassle-free buying process.

The outside space of this property is a true highlight, designed for relaxation and entertaining. Step outside into the beautifully landscaped garden, a tranquil oasis providing a peaceful escape from the daily hustle and bustle. The sun-soaked south-facing aspect ensures the garden is bathed in light throughout the day, perfect for al-fresco dining or simply unwinding in the fresh air. The well-maintained grounds offer ample space for gardening enthusiasts to cultivate their green thumb or for children to play freely in a safe environment. Additionally, the property benefits from a driveway and an attached garage, providing ample parking for multiple vehicles or extra storage space. With outdoor amenities catering to all lifestyle needs, this property offers a harmonious balance between indoor comfort and outdoor serenity, making it a truly desirable place to call home.

-------------------------------

Material Information Part A, B & C

  1. Property Construction: Brick exterior with Tiled or Slate Roof.

  2. Utilities: Electricity: Yes. Water Supply: Yes. Sewerage: Mains.

  3. Heating: Gas Central Heating (Refer to EPC)

  4. Broadband: According to ThinkBroadband Checker FTTC or FTTH available dependent on Provider.

  5. Mobile Signal/Coverage: Voice & Data Available, but speeds dependent on Provider and device type.

  6. Restrictions: Please contact the office for a copy of the Land Registry Title.

  7. Flooded: We have been advised no flooding by the seller

  8. Flood Risk Rivers: Very low Risk Surface Water: Low risk

  9. Local Planning: See planning note below

---------------------------------

Material Information has been sourced from various official and 3rd party sources. For more information please email " compliance @ snapes . co . uk " with the specific property your enquiry relates to. We strongly advise you consult a Solicitor and/or a surveyor and carry out your own research on the information provided to ensure there have been no changes since the information was sourced as we do not check for changes which may happen after the listing was made available. For broadband/mobile services we urge you to contact your provider to ensure your the service you need and your device is compatible. Human error by 3rd party data inputters, and a lag in data being transposed to digital records are some of the reasons the above information may be outdated before or after you view. Local Planning Applications & Planning Search Planning Application Search will not be added until the first interest party asks for this information, This is so the planning search is as recent as possible. If local planning applications are important to you in making a decision please contact the office for a copy of the search we have or so we can order the first one if you are the first person asking. We will only order one search per property and advise you have your own done as part of your purchase conveyance whether you have read ours or not.

Marketing Disclaimer: Our floor plan may not show some small recess areas, support posts or chimney breasts and any floor area or total area measurements quoted will include all the areas shown on the floor plan, unless otherwise noted, inc attached or integral garages. We do not recommend you use our floor plan to decide on buying carpets or furniture without measuring the space yourself, as skirting boards may alter the space you require because we measure above skirting board level. No appliances including heating and electrics have or will be tested by Snapes Estate Agents and we cannot be held responsible for a seller changing or removing fittings which are currently shown or mentioned in our marketing. Images Including Videos: Our photos and videos are provided to show the property in the best possible light and may have had some editing enhancements to improve the quality of the photo. The photos should not be used as an indication of what is included in the sale, both internally and externally. We strongly advise you consult with the Fixture and Fittings Form provided by the seller’s solicitor once a sale has been agreed, or when offering make it known to the office or your solicitor if there are any items you expect or want to be left, so this can be agreed prior to a sale progressing.


EPC Rating: E

Key Features

  • Popular Central Village Location
  • Lounge & Extra Study / Potential Bedroom
  • 2 Main Double Bedrooms
  • 2 Bathrooms (inc Ensuite)
  • Breakfast Kitchen
  • Orangery Style Conservatory
  • Driveway Attached Garage
  • Good Size South Facing Garden
  • Quick Move Possible
  • No Vendor Chain

Property Details

  • Property type: Bungalow
  • Approx Sq Feet: 1,607 sqft
  • Plot Sq Feet: 7,782 sqft
  • Council Tax Band: E
Please note, property and plot sizes displayed are for guidance purposes only and may have been derived from publicly available information over which neither the agent nor Street.co.uk have control.

Floorplans

Outside Spaces

Front Garden

Rear Garden

Parking Spaces

Driveway

Capacity: 1

Garage

Capacity: 1

Location

Properties you may like

By Snapes Estate Agents Bramhall

Disclaimer - Property ID d174ae47-5b8f-4588-bd69-6ecf277014e3. The information displayed about this property comprises a property advertisement. Street.co.uk and Snapes Estate Agents Bramhall makes no warranty as to the accuracy or completeness of the advertisement or any linked or associated information, and Street.co.uk has no control over the content. This property advertisement does not constitute property particulars. The information is provided and maintained by the advertising agent. Please contact the agent or developer directly with any questions about this listing.