3 Bedroom Semi Detached House, Holbeche Crescent, Fillongley, CV7

Holbeche Crescent, Fillongley, CV7

Description

Property location

Fillongley

See the brochure section below for comprehensive overview of the property and location.

We have built the Key Facts for Buyers Guide to give you information on local schools with their ratings, satellite view so that you can see the surrounding areas, as well as local and major transport connections, and much more.

On the viewing we will provide additional information on the property and the area so that you can make an informed decision.

Refurbishments and Features

Full Refurbishment Throughout.

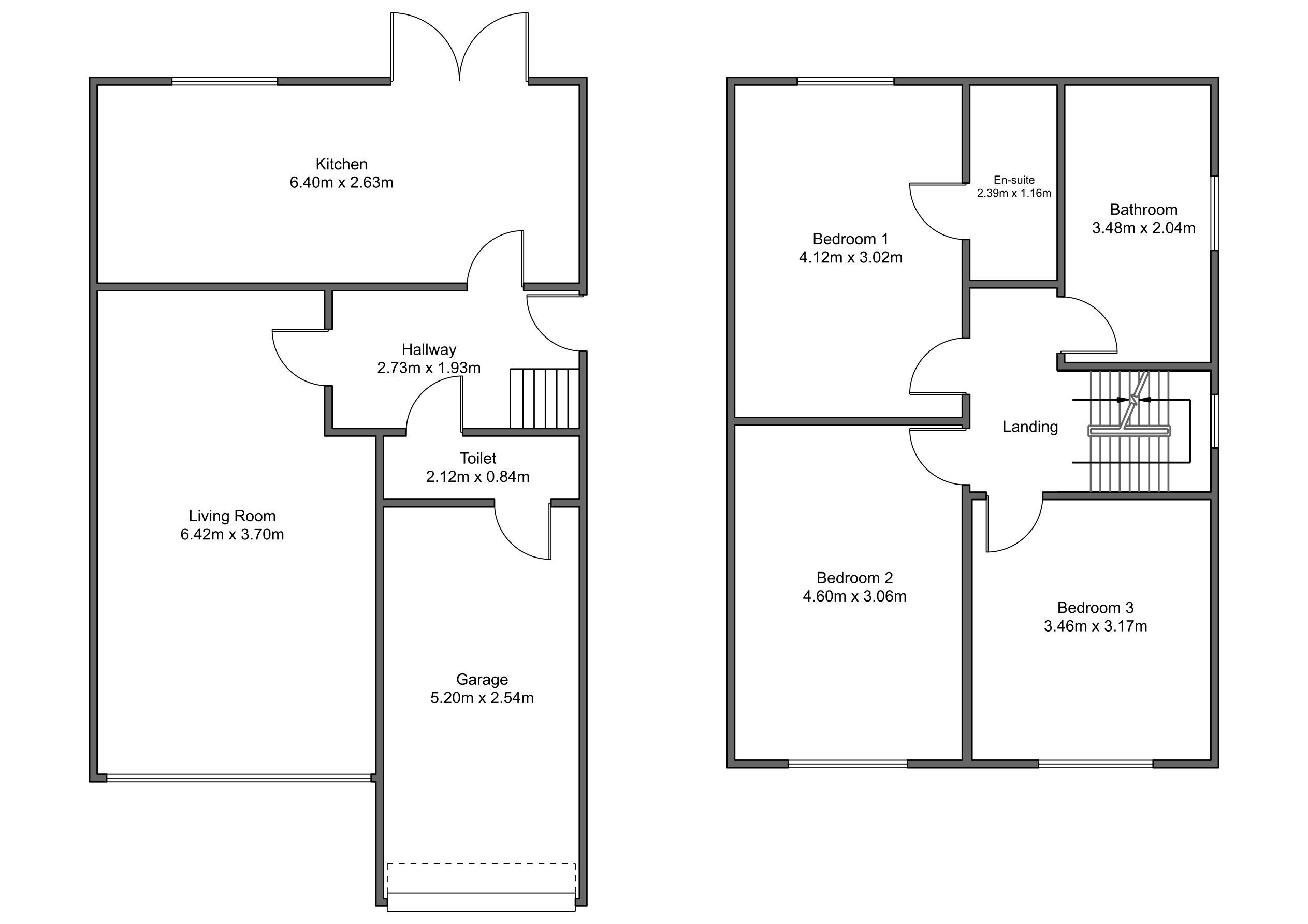
Room Measurements

Room dimensions and total floor area are included within our floor plan.

Tenure

Freehold

Outside Space

Front: Tarmac Driveway | Low Maintenance

Rear: Beautifully Landscaped Garden | Mature Planting | Stunning Show of Flowers & Shrubs Through the Seasons | Patio Area

Additional Information

Selling Position: Onward Purchase

Age of the Property: 1960 - 1970

Last Sold: 2011

Council Tax Band: D

Local Authority: Warwickshire

Energy Performance Certificate Rating:

Approx. Total Floor Area: 90 Sq. M.

Approx. Total Plot Size: 0.07 Acre

Heating System: Gas

Boiler Age: 13

Boiler Last serviced: 09/2023

Boiler Location: Garage

Loft: Boarded, Insulated

Type of Windows: UPVC Double Glazing

Age of Windows: 14 Years

Fireplace: N/A

Fuse Box Location: Garage

Garden Orientation: North-East (NE)

Material Information Parts B & C

History of Subsidence: N/A

Unsafe Cladding: N/A

Asbestos: N/A

Any Rights of Way: N/A

Please view the property brochure section for further Material Information Parts B and C


EPC Rating: C

Key Features

  • Guide Price £370,000 - £385,000
  • Must Be Viewed to Appreciate
  • Stylish Semi-Detached Family Home
  • Three Spacious Double Bedrooms
  • Stylish Modern Kitchen/Diner
  • Sought After Village Location
  • EPC Rating C, Potential B.
  • Master Bedroom with En-Suite
  • Approx. Total Floor Area 90 Sq. M.
  • Large Driveway Offering Ample Parking

Property Details

  • Property type: House
  • Property style: Semi Detached
  • Approx Sq Feet: 969 sqft
  • Plot Sq Feet: 3,046 sqft
  • Property Age Bracket: 1960 - 1970
  • Council Tax Band: D
Please note, property and plot sizes displayed are for guidance purposes only and may have been derived from publicly available information over which neither the agent nor Street.co.uk have control.

Floorplans

Outside Spaces

Parking Spaces

Driveway

Capacity: 3

View Photos

Garage

Capacity: 1

View Photos

Location

Properties you may like

By Bayzos Estate Agents

Disclaimer - Property ID de0c3358-9e2a-47d8-b2bb-a642265252da. The information displayed about this property comprises a property advertisement. Street.co.uk and Bayzos Estate Agents makes no warranty as to the accuracy or completeness of the advertisement or any linked or associated information, and Street.co.uk has no control over the content. This property advertisement does not constitute property particulars. The information is provided and maintained by the advertising agent. Please contact the agent or developer directly with any questions about this listing.