Book a Viewing

To book a viewing for this property, please call Kallars Deptford, on 0208 692 9533.

To book a viewing for this property, please call Kallars Deptford, on 0208 692 9533.

To Let
£2,500 pcm

Mid-Terraced Commercial Property, Deptford High Street, London, SE8

Deptford High Street, London, SE8


Kallars Primary Brand brand logo

Kallars Deptford

Kallars, Harp Of Erin House 2-4 New King Street

Description

Welcome to this fantastic mid-terraced commercial property with a brand new lease available, offering dual access for your convenience (convenient front entrance from the High Street plus additional rear access for deliveries, staff, or customers).

Located in a prime spot on bustling Deptford High Street, this versatile space is a great fit for a wide range of businesses (retail, café, office, or service-based). The area benefits from excellent transport links, with Deptford and New Cross stations nearby and solid bus connections.

You’ll find yourself in a thriving neighbourhood surrounded by independent shops, cafés, restaurants, and a growing residential community. The practical layout includes a flexible ground floor and basement floorplan with potential for customisation to suit your business needs.

The property boasts a strong local demand, drawing in both residents and visitors and ensuring a steady flow of customers.

EPC Rating of C (56)

Don’t miss out on this great opportunity to set up shop in one of the most vibrant areas of London!


EPC Rating: D

Key Features

  • Brand New Lease Available
  • Dual Access – Convenient front entrance from the High Street plus additional rear access for deliveries, staff, or customers.
  • Prime Location – Situated on bustling Deptford High Street, benefiting from high footfall and excellent visibility.
  • Versatile Space – Suitable for a wide range of uses including retail, café, office, or service-based business.
  • Transport Links – Close to Deptford and New Cross stations, with excellent bus connections.
  • Thriving Area – Surrounded by independent shops, cafés, restaurants, and a growing residential community.
  • Practical Layout – Flexible ground floor and basement floorplan with potential for fit-out to suit business needs.
  • Strong Local Demand – Popular with both residents and visitors, ensuring consistent customer flow.
  • EPC Rating C (56)

Property Details

  • Property type: Commercial Property
  • Property style: Mid-Terraced
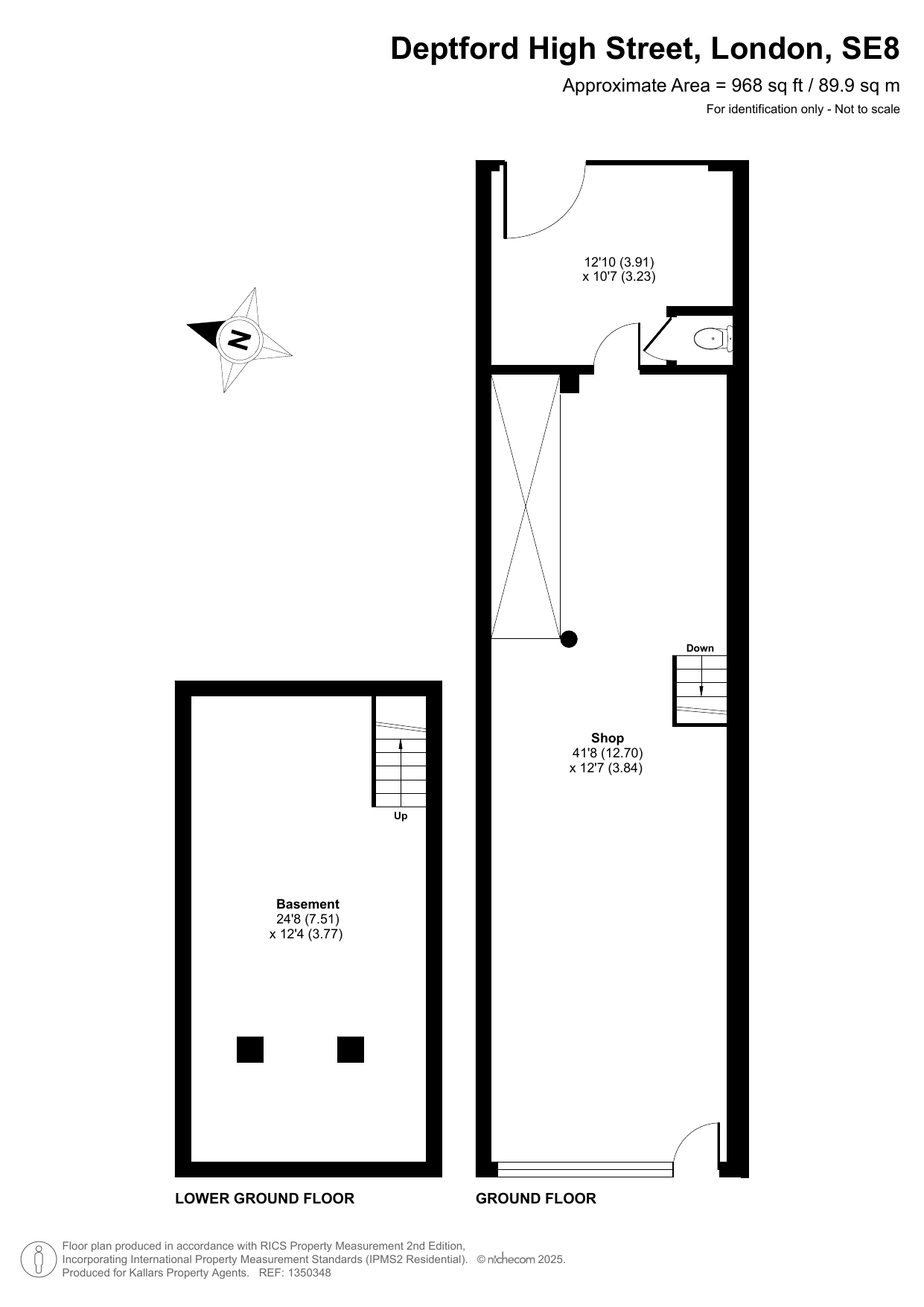
  • Approx Sq Feet: 968 sqft
  • Plot Sq Feet: 968 sqft
  • Council Tax Band: TBD
  • Tenure: Leasehold
  • Lease Expiry: -
  • Ground Rent:
  • Service Charge: Not Specified
Please note, property and plot sizes displayed are for guidance purposes only and may have been derived from publicly available information over which neither the agent nor Street.co.uk have control.

Floorplans

Location

Properties you may like

By Kallars Deptford

  • £900 pcm

    North Street, Stocks House, KT22

    • 0 Beds
    • 1 Bath
    View Property
  • £1,400 pcm

    Flat 8 Telegraph House 11-27 Hythe Street, Dartford, Kent, DA1 1GL

    • 1 Beds
    • 1 Bath
    View Property
  • £2,500 pcm

    Oyo Business Units, Crabtree Manorway North, DA17

    • Beds
    • Bath
    View Property
  • £2,000 pcm

    Blackheath Rise, London, SE13

    • 2 Beds
    • 1 Bath
    View Property
  • £1,400 pcm

    Flat 21 Telegraph House, 11-27 Hythe Street, Dartford, Kent, DA1 1GL

    • 1 Beds
    • 1 Bath
    View Property
  • £1,900 pcm

    Tulsemere Road, London, SE27

    • 1 Beds
    • 1 Bath
    View Property
  • £2,150 pcm

    Arklow Road, London, SE14

    • 2 Beds
    • 1 Bath
    View Property
  • £1,400 pcm

    Flat 7 Telegraph House 11-27 Hythe Street, Kent, DA1 1GL

    • 1 Beds
    • 1 Bath
    View Property
  • £1,050 pcm

    Room 1, 17 Waterbank Road London SE6 3DJ

    • 6 Beds
    • 1 Bath
    View Property
Disclaimer - Property ID e5edf842-5156-4689-b459-1f8c6137d9a8. The information displayed about this property comprises a property advertisement. Street.co.uk and Kallars Deptford makes no warranty as to the accuracy or completeness of the advertisement or any linked or associated information, and Street.co.uk has no control over the content. This property advertisement does not constitute property particulars. The information is provided and maintained by the advertising agent. Please contact the agent or developer directly with any questions about this listing.