Book a Viewing

To book a viewing for this property, please call Breakey & Co Estate Agents, on 01942 238200.

To book a viewing for this property, please call Breakey & Co Estate Agents, on 01942 238200.

For Sale
£260,000 Offers in Region of

3 Bedroom Terraced House, Aveley Gardens, Wigan, WN3

Aveley Gardens, Wigan, WN3


Breakey & Co Estate Agents Primary Brand brand logo

Breakey & Co Estate Agents

Breakey & Co, 57-59 Ormskirk Road

Description

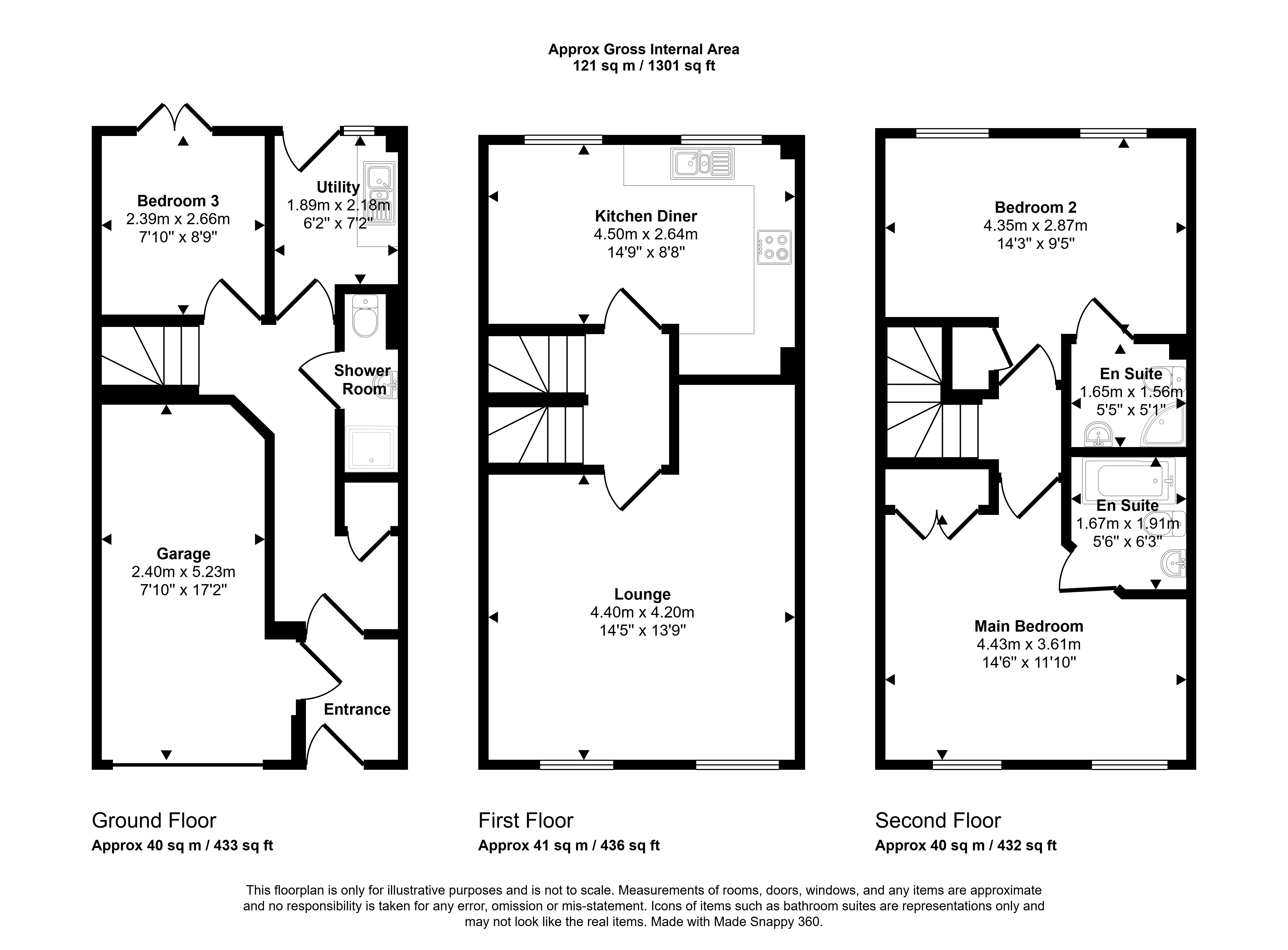
This well-presented three-bedroom stone-built mid-terrace home offers spacious and versatile living across three floors. To the front, the property benefits from a private driveway providing off-road parking for one vehicle, along with an integral garage.

The ground floor comprises a welcoming entrance hall, a convenient WC, and a flexible bedroom currently used as a home office. A utility area is located nearby, and French doors open out to a generously sized rear garden, featuring a lawn, patio area, and established borders, ideal for outdoor entertaining or relaxing. On the first floor, you’ll find a bright and spacious lounge alongside a modern kitchen/diner, fully equipped with integrated appliances including a dishwasher, fridge freezer, gas hob, and electric oven.

The second floor hosts the remaining accommodation, including a well-appointed shower room, a master bedroom with built-in wardrobes and its own en-suite bathroom, plus a further large bedroom also benefiting from an en-suite shower room on the third floor.

The property has been updated with new flooring and carpets within the last three years, enhancing its modern appeal.


EPC Rating: C

Key Features

  • Three-bedroom stone-built mid-terrace home
  • Driveway parking for one car plus integral garage
  • Flexible ground floor bedroom/home office
  • Ground floor WC and separate utility area
  • French doors leading to a long, private rear garden
  • Garden with lawn, patio, and established borders
  • Spacious first floor lounge and modern kitchen/diner
  • Two en-suite bedrooms plus additional shower room
  • New flooring and carpets installed within the last three years
  • Council Tax Band C/ Leasehold

Property Details

  • Property type: House
  • Property style: Terraced
  • Price Per Sq Foot: £200
  • Approx Sq Feet: 1,301 sqft
  • Plot Sq Feet: 1,582 sqft
  • Property Age Bracket: 2000s
  • Council Tax Band: C
  • Tenure: Leasehold
  • Lease Expiry: -
  • Ground Rent: £204.24 per year
  • Service Charge: £200.00 per year
Please note, property and plot sizes displayed are for guidance purposes only and may have been derived from publicly available information over which neither the agent nor Street.co.uk have control.

Floorplans

Parking Spaces

Garage

Capacity: N/A

Driveway

Capacity: N/A

Location

Winstanley, Wigan

Properties you may like

By Breakey & Co Estate Agents

Disclaimer - Property ID e8ab378f-11f0-4124-970c-30982eb1361b. The information displayed about this property comprises a property advertisement. Street.co.uk and Breakey & Co Estate Agents makes no warranty as to the accuracy or completeness of the advertisement or any linked or associated information, and Street.co.uk has no control over the content. This property advertisement does not constitute property particulars. The information is provided and maintained by the advertising agent. Please contact the agent or developer directly with any questions about this listing.