3 Bedroom Semi Detached House, Bradgate Drive, Coalville, LE67

Bradgate Drive, Coalville, LE67

Description

PRICED TO SELL - WITH VACANT POSSESSION

TENURE – Freehold

COUNCIL TAX BAND – B
EPC RATING –
D (POTENTIAL - B)

Energy performance certificate (EPC) – Find an energy certificate – GOV.UK

We're pleased to be marketing this attractive three-bedroom semi-detached house, located in the popular area of Coalville, which benefits from easy access to the local supermarkets, M1 motorway, and local amenities.

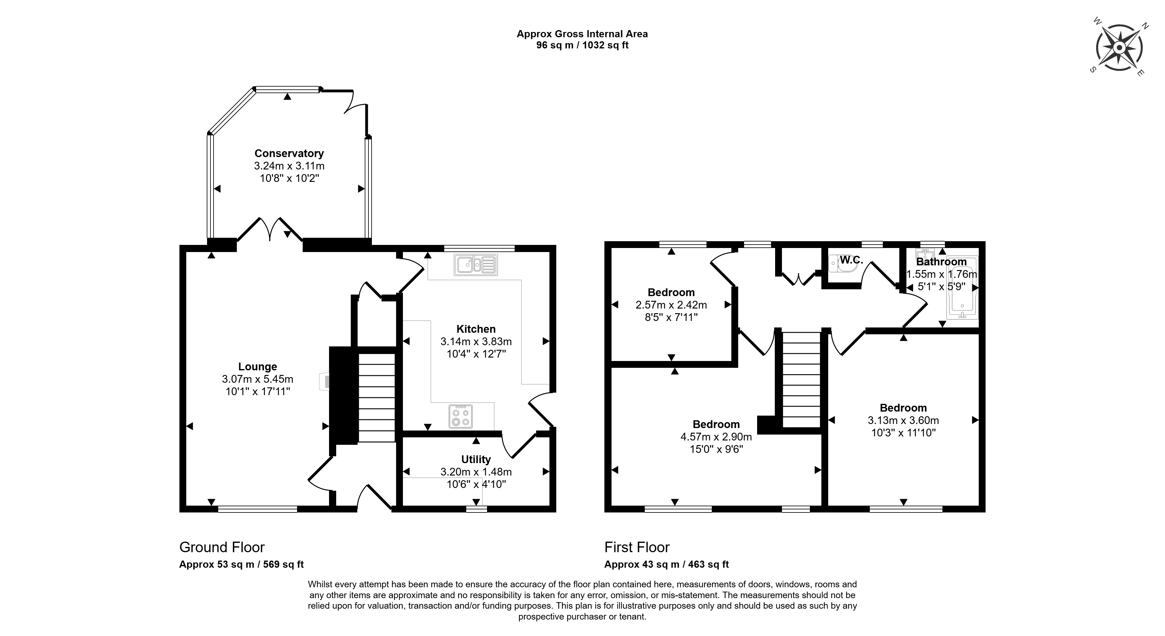
The property briefly comprises of three bedrooms, a conservatory at the rear of the property, a large front and rear garden.

NB. In accordance with Section 21 of the Estate Agent Act 1979, we declare that there is a personal interest in the sale of this property. The property is being sold by Director’s of Move Places Ltd.

1. MONEY LAUNDERING REGULATIONS - Intending purchasers will be asked to produce identification documentation at a later stage and we would ask for your co-operation in order that there will be no delay in agreeing the sale.
2: These particulars do not constitute part or all of an offer or contract.
3: The measurements indicated are supplied for guidance only and as such must be considered incorrect.
4: Potential buyers are advised to recheck the measurements before committing to any expense.
5: MP has not tested any apparatus, equipment, fixtures, fittings or services and it is the buyers interests to check the working condition of any appliances.
6: MP has not sought to verify the legal title of the property and the buyers must obtain verification from their solicitor.

A Buyer’s Reservation Fee forms part of any agreed purchase price. Please contact branch for more information.


EPC Rating: D

Key Features

  • PRICED TO SELL - WITH VACANT POSSESSION
  • TENURE – Freehold
  • COUNCIL TAX BAND – B
  • EPC RATING – D (POTENTIAL - B)
  • Close to M1 Motorway
  • Large Rear Garden

Property Details

  • Property type: House
  • Property style: Semi Detached
  • Plot Sq Feet: 4,026 sqft
  • Council Tax Band: B
  • Tenure: Leasehold
  • Lease Expiry: -
  • Ground Rent:
  • Service Charge: Not Specified
Please note, property and plot sizes displayed are for guidance purposes only and may have been derived from publicly available information over which neither the agent nor Street.co.uk have control.

Floorplans

Location

Bradgate Drive, Coalville - LE67 4HH

Properties you may like

By Move Places

Disclaimer - Property ID e9382c0d-f413-4b36-9cc1-3ba87662fbde. The information displayed about this property comprises a property advertisement. Street.co.uk and Move Places makes no warranty as to the accuracy or completeness of the advertisement or any linked or associated information, and Street.co.uk has no control over the content. This property advertisement does not constitute property particulars. The information is provided and maintained by the advertising agent. Please contact the agent or developer directly with any questions about this listing.