Book a Viewing

To book a viewing for this property, please call Millers Estate Agents, on 01263 519125.

To book a viewing for this property, please call Millers Estate Agents, on 01263 519125.

For Sale
£525,000

8 Bedroom End of Terrace House, St. Marys Road, Cromer, NR27

St. Marys Road, Cromer, NR27


Millers Estate Agents brand logo

Millers Estate Agents

18-20 Church Street, Cromer

Description

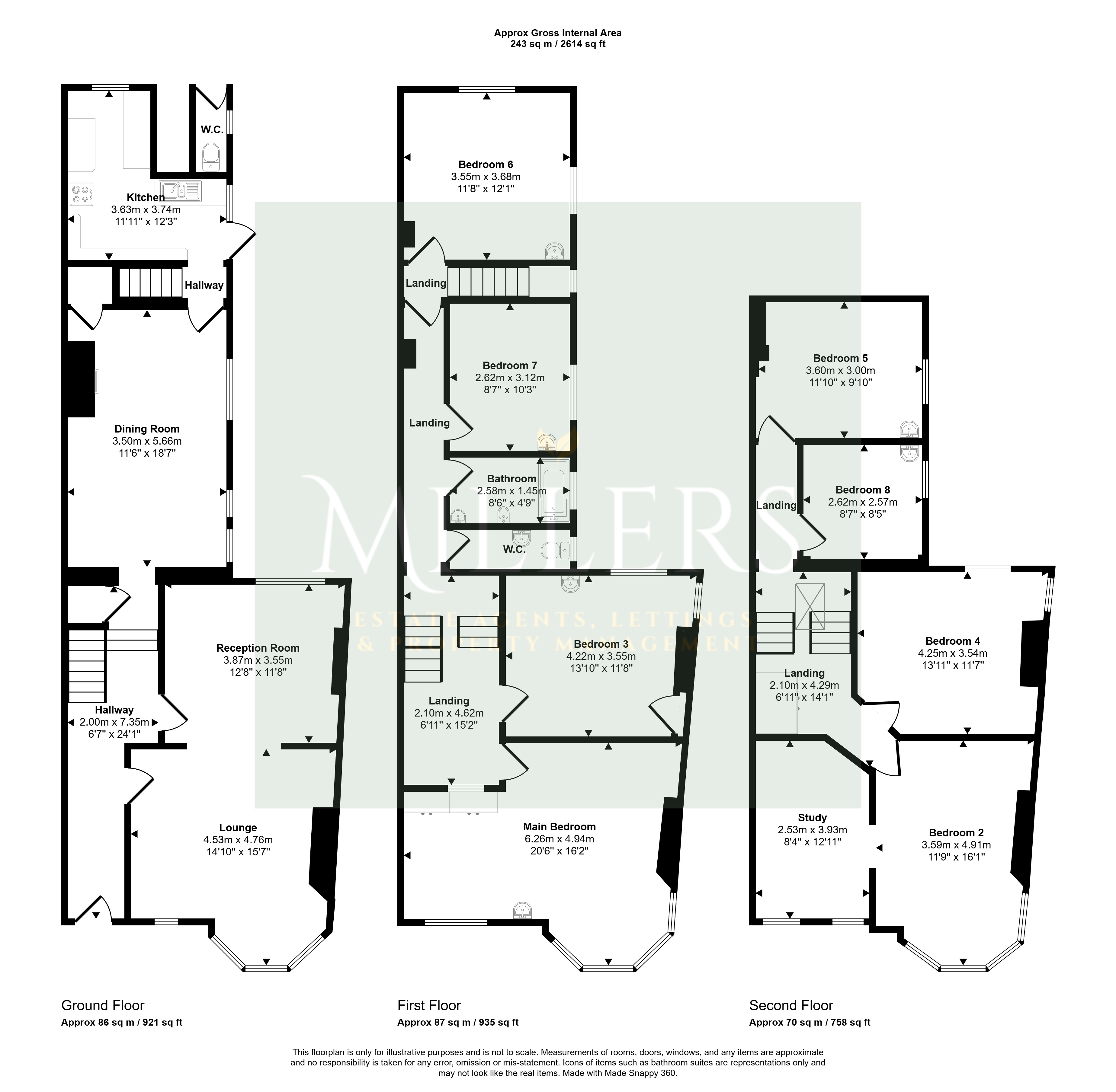
This substantial Victorian townhouse offers over 2,600 sq ft of well-balanced and versatile accommodation arranged across three principal floors, showcasing the generous proportions and architectural elegance synonymous with the period. From the moment you enter, the sense of space and character is immediately evident, with high ceilings, wide hallways and an abundance of natural light flowing throughout. The property retains a wealth of original charm while providing flexible living arrangements that lend themselves equally well to family occupation, multi-generational living or potential investment use.

The ground floor is particularly impressive, featuring three distinct and adaptable reception rooms that can be arranged to suit a variety of needs. These include a spacious lounge with a bay window, a separate dining room ideal for entertaining, and an additional reception room offering further flexibility as a sitting room, snug or communal space. The kitchen is positioned to the rear of the property and connects seamlessly with the ground floor layout, while maintaining a practical separation from the main living areas. This level also benefits from a welcoming entrance hallway that enhances the flow and scale of the accommodation.

The upper floors provide eight well-proportioned bedrooms, all enjoying excellent natural light and a bright, airy feel. The main bedroom is particularly generous in size and a real highlight of the home with its light-filled feature bay window. A dedicated study on the second floor offers excellent versatility and could easily function as a potential ninth bedroom if required.

To the rear of the property is an enclosed, low-maintenance garden that offers a private and functional outdoor space, ideal for relaxing or entertaining without the burden of extensive upkeep. The garden further benefits from an outdoor toilet and a useful storage area, enhancing everyday practicality. A particularly valuable feature is the presence of double-opening gates at the rear, which provide access for off-road parking, a rare and highly desirable asset for a period property in such a desirable location this close to the centre of town.

The property occupies a prime position just moments from the town centre and beach, offering the perfect balance between coastal living and convenience. Shops, cafés, restaurants, transport links and local amenities are all within easy reach, making the location highly appealing for both owner-occupiers and investors alike. Combining generous accommodation, period charm, flexible living space and an enviable setting, this Victorian townhouse represents a unique and exciting opportunity to acquire a truly impressive home in one of the area’s most sought-after locations.

Cromer

Cromer is a quintessential North Norfolk seaside town, renowned for its unspoilt coastline, traditional charm and vibrant community atmosphere. Set against a backdrop of rolling countryside and dramatic clifftop views, the town is perhaps best known for its iconic Victorian pier, sandy and shingle beaches and colourful seafront. Cromer retains a timeless appeal, blending classic seaside heritage with modern-day living, and offers an attractive lifestyle for permanent residents, second-home owners and holidaymakers alike.

The town centre provides an excellent range of independent shops, cafés, restaurants and amenities, all within easy reach and catering to everyday needs as well as leisure and tourism. Local schools, healthcare facilities and regular transport links, including rail services to Norwich and beyond, make Cromer both practical and well connected. The area is also famous for its locally landed crab and fresh seafood, while nearby coastal walks, golf courses and countryside trails offer endless opportunities for outdoor pursuits and relaxation.

Beyond the town itself, Cromer sits at the heart of the North Norfolk coast, an area designated for its outstanding natural beauty and charming villages. The surrounding coastline and countryside provide a wealth of attractions, from nature reserves and beaches to historic market towns and stately homes. With its strong sense of community, thriving tourism economy and enviable coastal setting, Cromer continues to be one of Norfolk’s most desirable locations, offering a superb balance of lifestyle, convenience and long-term appeal.

Key Features

  • Magnificent Period Residence
  • Prime Location Just Moments from the Town Centre & Beach
  • Impressively Spacious & Flexible Accommodation
  • 8/9 Bedrooms
  • Three Versatile Reception Rooms
  • Full of Charm & Character
  • Gas Central Heating
  • Low-Maintenance Rear Garden with Off-Road Parking
  • Viewings are Highly Advised
  • Call Millers to View

Property Details

  • Property type: House
  • Property style: End of Terrace
  • Price Per Sq Foot: £201
  • Approx Sq Feet: 2,614 sqft
  • Plot Sq Feet: 2,239 sqft
  • Council Tax Band: D
Please note, property and plot sizes displayed are for guidance purposes only and may have been derived from publicly available information over which neither the agent nor Street.co.uk have control.

Floorplans

Outside Spaces

Garden

Parking Spaces

Driveway

Capacity: 1

Location

Properties you may like

By Millers Estate Agents

Disclaimer - Property ID f1a01cbe-d22d-4b39-96ff-b28e0f8581e0. The information displayed about this property comprises a property advertisement. Street.co.uk and Millers Estate Agents makes no warranty as to the accuracy or completeness of the advertisement or any linked or associated information, and Street.co.uk has no control over the content. This property advertisement does not constitute property particulars. The information is provided and maintained by the advertising agent. Please contact the agent or developer directly with any questions about this listing.