Book a Viewing

Click here to pick an available date and time to view this property

Book a Viewing
For Sale
£390,000 Guide Price

3 Bedroom Semi Detached House, Chancel Close, Benfleet, SS7

Chancel Close, Benfleet, SS7


Nest in Essex Primary Brand brand logo

Nest in Essex

Lubards Lodge, Hullbridge Road, Hullbridge Road

Description

Nestled in a quiet cul‑de‑sac of Chancel Close in the well‑regarded Benfleet suburb, this semi‑detached home offers a balance of comfort, space and potential in a sought‑after location. With easy access to local amenities, strong transport links and good schooling nearby, it stands as a versatile family purchase with room to grow.

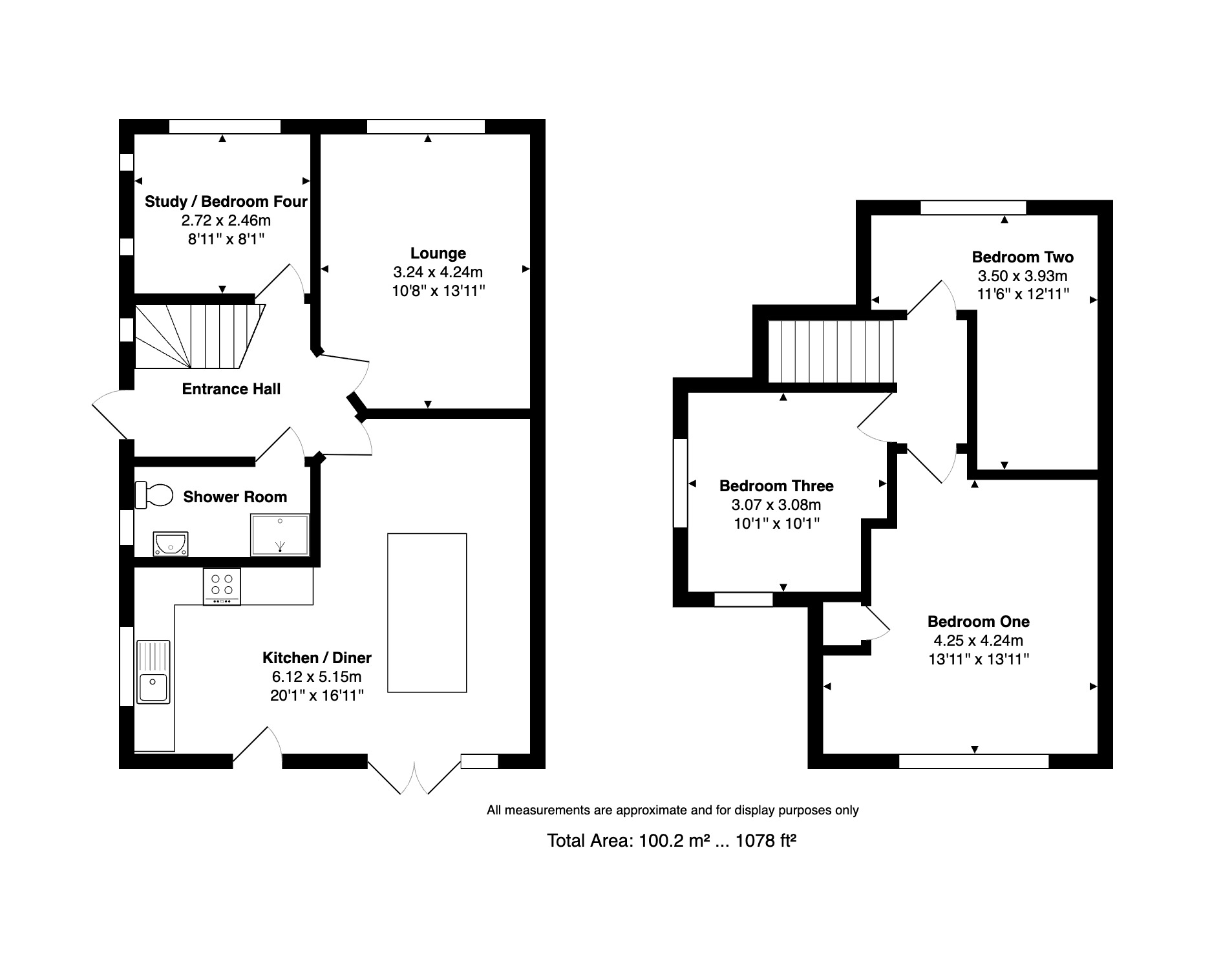
On the ground floor there’s a fourth bedroom/study versatile space, ideal as a home‑office or guest bedroom. A generous front lounge provides a relaxed sitting room that benefits from plenty of natural light. The heart of the home is the recently opened‑up L‑shaped kitchen‑diner, comprising a modern fitted kitchen and dining zone anchored by a breakfast‑bar/island, with access out to the garden. A contemporary shower room completes this floor.

Upstairs, you’ll find three well‑proportioned bedrooms. The principal bedroom enjoys built‑in storage, while the two further bedrooms provide good flexibility for family, guest or workspace use. The modern family bathroom supports the home’s ready‑to‑move‑in condition.

To the rear lies a generous garden, lawned and ideal for family life or entertaining. Side access adds convenience, and the front boasts off‑street parking for three cars comfortably, easing the daily comings and goings and guest parking.

The gravelled driveway at the front provides parking for up to three cars. Side access offers additional scope and flexibility (perhaps for future extension – subject to permissions). The property sits on a plot with potential for growth and adaptation.

Benfleet enjoys strong connectivity and amenities. The nearby Benfleet railway station provides direct links to London and surrounding towns, making this an excellent choice for commuters. The area features a range of shops, cafés, and green spaces within easy reach. Local schools are well‑placed: for example the The King John School on Shipwrights Drive serves secondary learners in the area.

Agents Comment
Measurements are shown on the floor plan. Same‑day viewings are rarely possible and typically require at least 24 hours’ notice.


EPC Rating: E

Key Features

  • Three/Four Bedroom Semi Detached House
  • Large L Shaped Kitchen Diner with Island/Breakfast Bar
  • Bedroom Four / Study Downstairs
  • Ample Parking
  • Large Garden with Potential to Extend (subject to correct permissions)
  • 5-minute walk to Appleton School, Woodham Ley & Montgomerie Primary School
  • 2-minute walk to local shops and supermarket
  • Almost 1100sq ft
  • Bedroom 4/home office/play room
  • Guide Price £390,000 to £410,000

Property Details

  • Property type: House
  • Property style: Semi Detached
  • Price Per Sq Foot: £362
  • Approx Sq Feet: 1,078 sqft
  • Property Age Bracket: 1970 - 1990
  • Council Tax Band: D
Please note, property and plot sizes displayed are for guidance purposes only and may have been derived from publicly available information over which neither the agent nor Street.co.uk have control.

Floorplans

Outside Spaces

Parking Spaces

Driveway

Capacity: 3

View Photos

Location

Properties you may like

By Nest in Essex

Disclaimer - Property ID f5075832-8d96-4bb0-a21a-145c884b8a17. The information displayed about this property comprises a property advertisement. Street.co.uk and Nest in Essex makes no warranty as to the accuracy or completeness of the advertisement or any linked or associated information, and Street.co.uk has no control over the content. This property advertisement does not constitute property particulars. The information is provided and maintained by the advertising agent. Please contact the agent or developer directly with any questions about this listing.