Book a Viewing
To book a viewing for this property, please call Bayzos Estate Agents, on 0330 124 6533.
To book a viewing for this property, please call Bayzos Estate Agents, on 0330 124 6533.
3 Bedroom Detached Bungalow, Wall Hill Road, Corley, CV7
Wall Hill Road, Corley, CV7

Bayzos Estate Agents
9 The Square, Kenilworth
Description
Property location
Corley
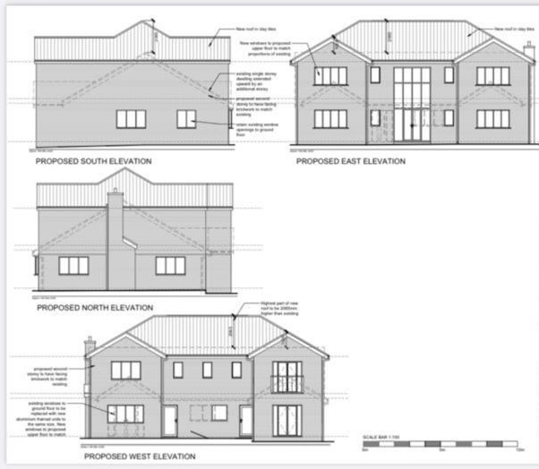
Approved Planning Permission - Able to Increase the Property Upto 418 SQM - Including Adding a Floor: Kitchen Extension & More - PLEASE ASK TO SEE RELEVANT PLANS
Below are the 3 planning reference numbers
Kitchen Extension-
PL/2025/0000817/HHA
Additional Floor
PL/2025/0000810/PAHA
Double Garage
PL/2024/0001626/FUL
See the brochure section below for comprehensive overview of the property and location.
We have built the Key Facts for Buyers Guide to give you information on local schools with their ratings, satellite view so that you can see the surrounding areas, as well as local and major transport connections, and much more.
On the viewing we will provide additional information on the property and the area so that you can make an informed decision.
Refurbishments and Features
Driveway | South Facing Garden With Additional Games Room & Office Space | 3 Bedrooms | Large Living Room | Views Over Woodland & Open Fields
Room Measurements
Room dimensions and total floor area are included within our floor plan.
Tenure
Freehold
Outside Space
Front: Lawn | Patio Area | Large Driveway | Shrubs
Rear: Lawn | Patio Area | Shed | Outside Bar | Outside Office Space | Summer House | Large Garden
Additional Information
Selling Position: No Upward Chain
Age of the Property: 1990s
Last Sold: 2006
Council Tax Band: F
Local Authority: Coventry
Energy Performance Certificate Rating: E
Approx. Total Floor Area: 193.63 Sq. M.
Approx. Total Plot Size: 1.37 Acre
Heating System: LPG/Oil Central Heating
Boiler Age: 13 Years
Boiler Last serviced: 25/03/2025
Boiler Location: Loft
Loft: Partially Boarded | Insulated | Light
Type of Windows: UPVC
Age of Windows: 6 Years
Fireplace: Electric
Fuse Box Location: Kitchen
Garden Orientation: South (S)
Material Information Parts B & C
History of Subsidence: No
Unsafe Cladding: No
Asbestos: No
Any Rights of Way: No
Please view the property brochure section for further Material Information Parts B and C
EPC Rating: E
Key Features
- Sought After Location Of Corley
- Bungalow Has Approved Planning Permission To Increase Upto 418 SQM
- No Upward Chain
- Large Driveway Offering Ample Parking
- South Facing Large Garden With Separate Games Room
- Additional Office Space In Courtyard With W/C & Storage
- 4 Piece Bathroom Suite
- Unique Location Overlooking Ancient Woodlands & Rear Views To Open Fields. Plot Size 1.37 Acres
- EPC Current: E Potential: D
- Approx Floor Area: 193.63 SQM
Property Details
- Property type: Bungalow
- Price Per Sq Foot: £372
- Approx Sq Feet: 2,084 sqft
- Property Age Bracket: 1990s
- Council Tax Band: F
Floorplans
Outside Spaces
Parking Spaces
Location
Properties you may like
By Bayzos Estate Agents