Book a Viewing

To book a viewing for this property, please call Hockeys, on 01223 356054.

To book a viewing for this property, please call Hockeys, on 01223 356054.

For Sale
£600,000 In Excess of

4 Bedroom Detached House, Froment Way, Milton, CB24

Froment Way, Milton, CB24


Hockeys Primary Brand brand logo

Hockeys

Hockeys, 10 Mill Road

Description

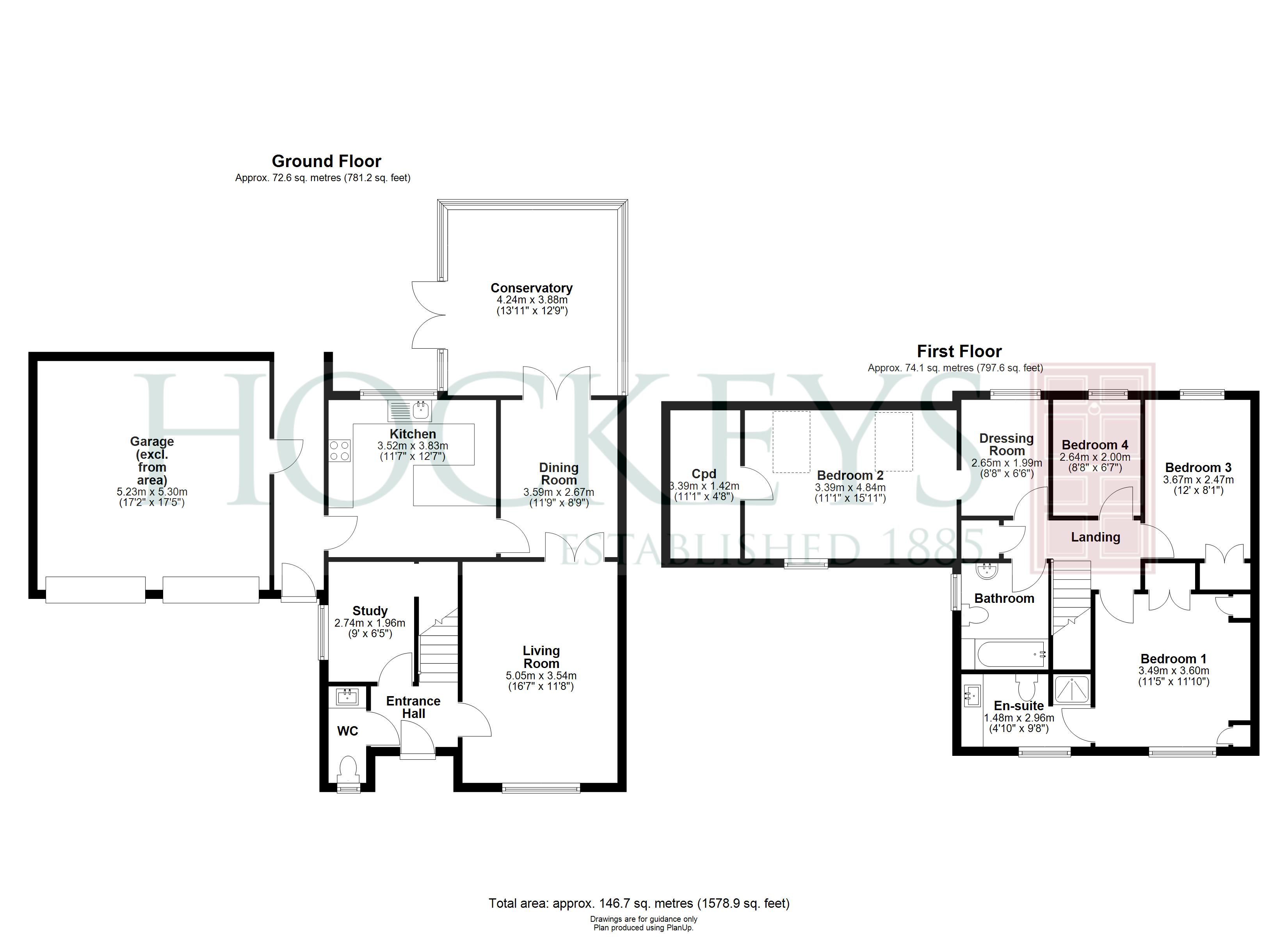
Situated in the highly sought-after village of Milton, this beautifully presented four-bedroom detached home offers generous and versatile accommodation ideal for modern family living. The ground floor features a welcoming entrance hall with a cloakroom, a spacious living room filled with natural light, and a separate study perfect for home working. The well-equipped kitchen flows into the dining room and a bright conservatory, creating a wonderful open space for entertaining or relaxing while overlooking the garden. There is also convenient internal access to the garage, providing excellent storage or potential for conversion.

Upstairs, the property offers four well-proportioned bedrooms, including a generous principal bedroom with an en-suite shower room. Bedrooms two and three are comfortable doubles, while bedroom four and an adjoining dressing area provide flexible use for a nursery or office. A family bathroom completes the first floor. Outside, the home benefits from a private driveway and integral garage, along with an enclosed rear garden offering a peaceful retreat for outdoor dining and play. Ideally positioned close to Milton’s excellent local amenities, schools, and transport links to Cambridge City Centre and the Science Park, this property combines village charm with convenience in an exceptional location.

Local amenities include a large supermarket with car wash and petrol station, doctor’s surgery, vets, florist, gymnastics club, takeaway, newsagent, hairdressers and a barber shop. Milton has four pubs namely The White Horse, The Waggon & Horses, The Lion & Lamb, and The Brewers Inn.  On the northern edge of the village is the Maise Maze, a popular family attraction with a large maze and giant slide, go-karts, tractor & trailer Rides and a farm trail. There are two churches in the village, All Saints and The Apostolic Church, and a community centre which holds regular events for all ages located on the recreation ground. The recreation ground itself features a bowls green, tennis courts, football and five-a-side football pitches. 


EPC Rating: C

Virtual Tour


Key Features

  • Spacious Four-Bedroom
  • Detached Family Home
  • Private Driveway And Integral Garage
  • Enclosed Garden
  • Prime Milton Location Close To Cambridge And Amenities
  • EPC - C

Property Details

Please note, property and plot sizes displayed are for guidance purposes only and may have been derived from publicly available information over which neither the agent nor Street.co.uk have control.

Floorplans

Outside Spaces

Garden

Parking Spaces

Garage

Capacity: 3

Location

Local amenities include a large supermarket with car wash and petrol station, doctor’s surgery, vets, florist, gymnastics club, takeaway, newsagent, hairdressers and a barber shop. Milton has four pubs namely The White Horse, The Waggon & Horses, The Lion & Lamb, and The Brewers Inn.  On the northern edge of the village is the Maise Maze, a popular family attraction with a large maze and giant slide, go-karts, tractor & trailer Rides and a farm trail. There are two churches in the village, All Saints and The Apostolic Church, and a community centre which holds regular events for all ages located on the recreation ground. The recreation ground itself features a bowls green, tennis courts, football and five-a-side football pitches.

Properties you may like

By Hockeys

Disclaimer - Property ID fe40c500-7a59-4937-84d9-cbe0c7b3d284. The information displayed about this property comprises a property advertisement. Street.co.uk and Hockeys makes no warranty as to the accuracy or completeness of the advertisement or any linked or associated information, and Street.co.uk has no control over the content. This property advertisement does not constitute property particulars. The information is provided and maintained by the advertising agent. Please contact the agent or developer directly with any questions about this listing.