Book a Viewing
To book a viewing for this property, please call Edge Goodrich, on 01785 850222.
To book a viewing for this property, please call Edge Goodrich, on 01785 850222.
For Sale
£750,000
4 Bedroom Detached House, Newport Road, Woodseaves, ST20
Newport Road, Woodseaves, ST20
Edge Goodrich
Edge Goodrich, 30 High Street, Eccleshall
Description
Register your interest now for this exceptional four-bedroom detached family home, a bespoke architect-designed property set in a charming village location.
Due for completion in mid-2026, this thoughtfully crafted residence blends contemporary living with timeless elegance, offering a unique opportunity to secure a home tailored for comfort and style.
The heart of the home is a spacious open-plan kitchen and living area, featuring high-quality finishes and expansive bi-folding doors that seamlessly connect the indoors to the outdoors, flooding the space with natural light and framing breathtaking views to the rear.
In addition to the main living area, there is a separate snug for cosy evenings, a practical utility room, and a convenient ground floor cloakroom.
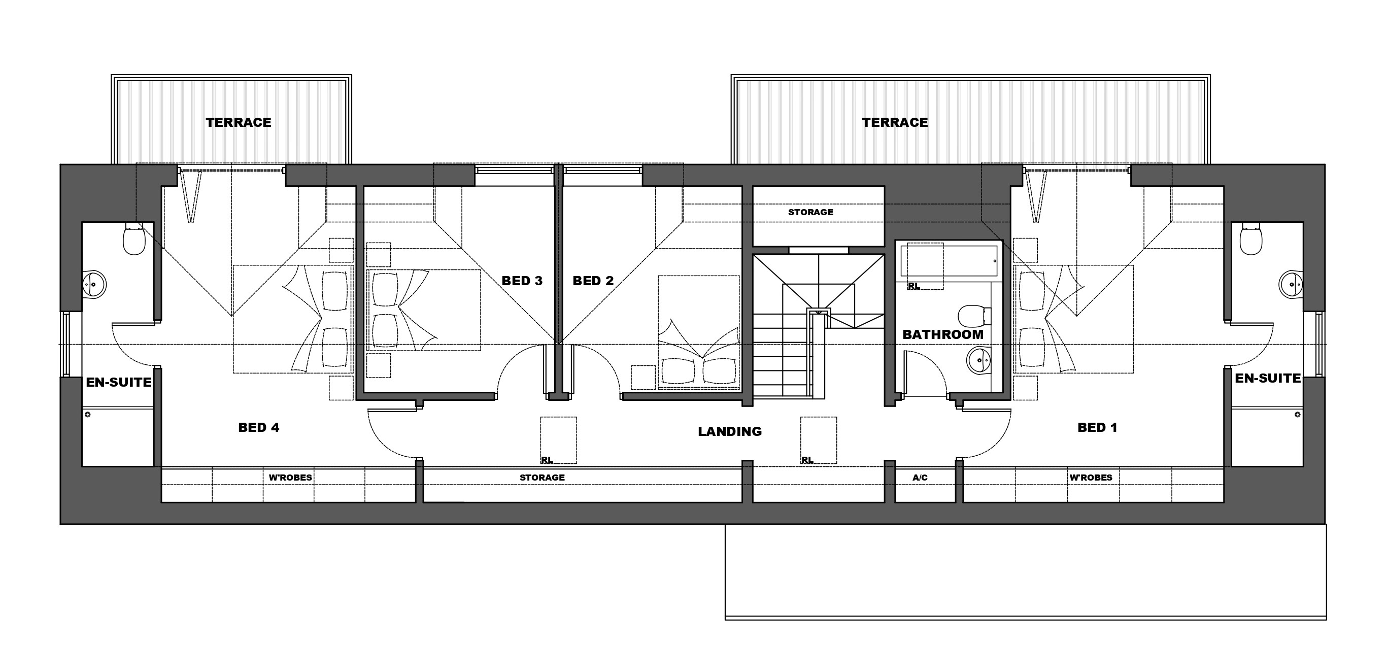
The stunning master suite boasts a large private balcony with far-reaching views over the rolling countryside, providing a tranquil retreat. Bedroom four also benefits from an en-suite shower room and its own balcony, while two further double bedrooms are served by a thoughtfully appointed principal bathroom.
The property further offers an integral garage and an additional brick-built garden store, ensuring ample space for storage and family living.
The generous rear garden is a true highlight, offering an exceptional outdoor space that enjoys uninterrupted views across the surrounding countryside. Designed for both relaxation and entertaining, this substantial garden provides plenty of room for children to play, summer gatherings, or simply unwinding while taking in the picturesque landscape.
The property’s rural location combines peace and tranquillity with convenience, as it sits within easy reach of wider road and rail networks, making commuting and travel straightforward. Local amenities, scenic walking routes, and welcoming village pub are all within close proximity, enhancing the appeal of this sought-after setting.
Due for completion in mid-2026, this thoughtfully crafted residence blends contemporary living with timeless elegance, offering a unique opportunity to secure a home tailored for comfort and style.
The heart of the home is a spacious open-plan kitchen and living area, featuring high-quality finishes and expansive bi-folding doors that seamlessly connect the indoors to the outdoors, flooding the space with natural light and framing breathtaking views to the rear.
In addition to the main living area, there is a separate snug for cosy evenings, a practical utility room, and a convenient ground floor cloakroom.
The stunning master suite boasts a large private balcony with far-reaching views over the rolling countryside, providing a tranquil retreat. Bedroom four also benefits from an en-suite shower room and its own balcony, while two further double bedrooms are served by a thoughtfully appointed principal bathroom.
The property further offers an integral garage and an additional brick-built garden store, ensuring ample space for storage and family living.
The generous rear garden is a true highlight, offering an exceptional outdoor space that enjoys uninterrupted views across the surrounding countryside. Designed for both relaxation and entertaining, this substantial garden provides plenty of room for children to play, summer gatherings, or simply unwinding while taking in the picturesque landscape.
The property’s rural location combines peace and tranquillity with convenience, as it sits within easy reach of wider road and rail networks, making commuting and travel straightforward. Local amenities, scenic walking routes, and welcoming village pub are all within close proximity, enhancing the appeal of this sought-after setting.
Key Features
- Register your interest now
- Exceptional family home enjoying stunning views to the rear
- Large open planned kitchen and living area opening out to the rear through bi-folding doors
- Separate snug, utility room and ground floor cloak room
- Stunning master suite with large balcony with far reaching views over the countryside
- Bedroom four also has an en-suite and balcony
- Two further double bedrooms and principal bathroom
- Bespoke, architect designed property in a charming village setting
Property Details
- Property type: House
- Property style: Detached
- Property Age Bracket: New Build
- Council Tax Band: TBD
Floorplans
Outside Spaces
Rear Garden
Generous rear garden with exceptional views.
Parking Spaces
Driveway
Capacity: 3
Location
Woodseaves is a pretty village within easy reach of Stafford, Eccleshall and Newport.
Properties you may like
By Edge Goodrich
Disclaimer - Property ID febd2e71-3231-4a3a-bd30-58b77f63daa3. The information displayed
about this property comprises a property advertisement. Street.co.uk and Edge Goodrich makes no warranty as to
the accuracy or completeness of the advertisement or any linked or associated information,
and Street.co.uk has no control over the content. This property advertisement does not
constitute property particulars. The information is provided and maintained by the
advertising agent. Please contact the agent or developer directly with any questions about
this listing.