Book a Viewing

To book a viewing for this property, please call The Address, on 0208 650 5875.

To book a viewing for this property, please call The Address, on 0208 650 5875.

For Sale
£860,000 Guide Price

4 Bedroom End of Terrace House, Cherry Tree Walk, Beckenham, BR3

Cherry Tree Walk, Beckenham, BR3


The Address New Primary Brand brand logo

The Address

The Address, 247 Croydon Road

Description

The Address is delighted to offer this stunning 4-bedroom extended end of terrace house, a beautifully presented and well-designed family home that has been stylishly updated throughout and situated on a desirable residential road, boasting a lovely rear extension with access to the garden, and stunning master suite to the loft.

Stepping inside, via an enclosed porch, you are greeted by the characterful ambience of a 1930's end of terrace house, blending traditional charm with modern comforts. The open plan kitchen/diner is a focal point of the home with generous central island, perfect for entertaining guests. Natural light floods through the skylights creating a bright and welcoming atmosphere with bi-folding doors to the garden.

The Westerly garden, approx 80ft and offers a peaceful outdoor space to relax and unwind with generous patio and lawn.

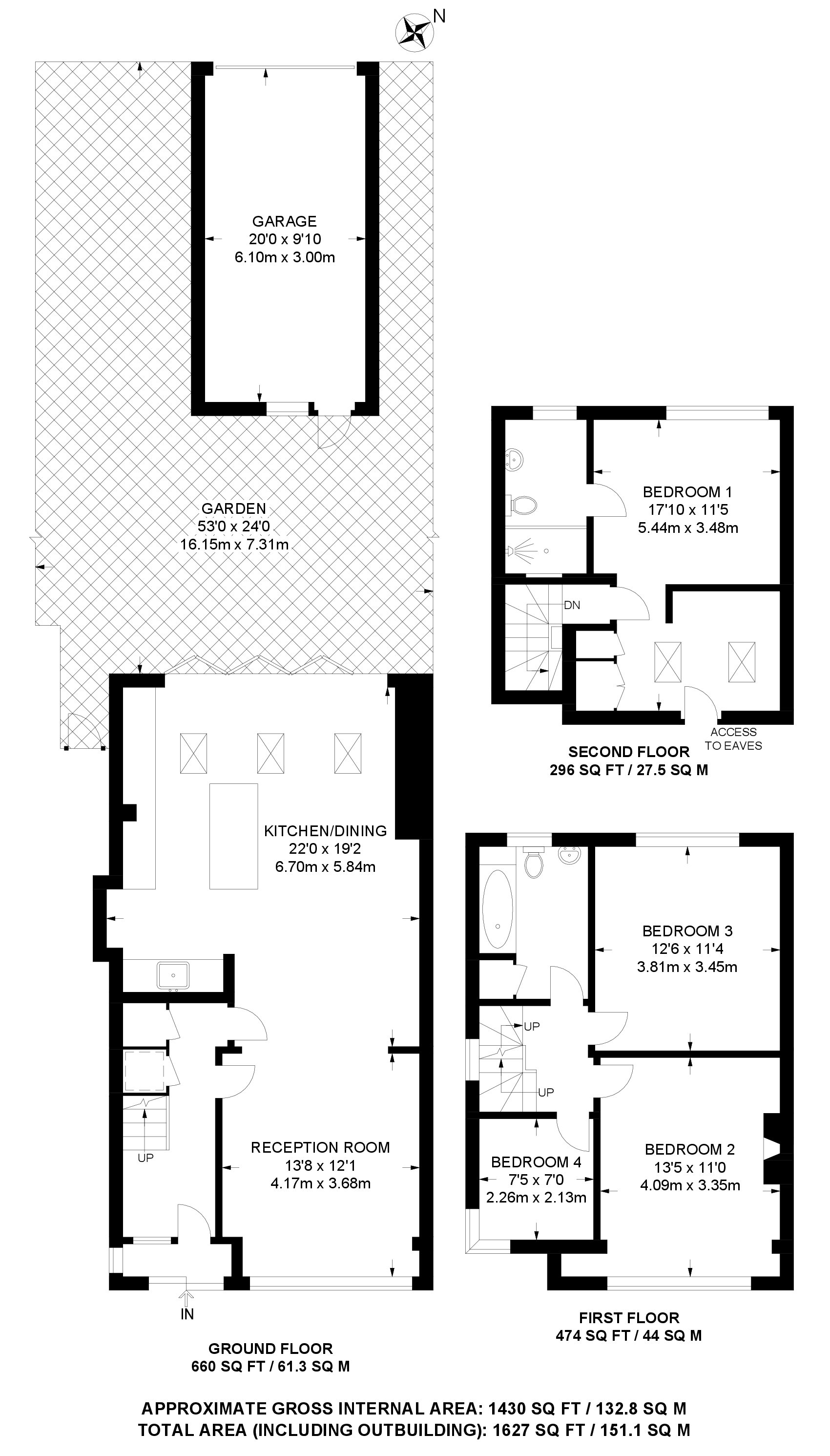
Upstairs, the property offers four generously sized bedrooms. The garage provides convenient storage space to the rear and accessed via a back service way, adding to the appeal of this already impressive home.

Located in close proximity to local shops, restaurants, and Beckenham High Street, residents will enjoy easy access to amenities and entertainment options. Families will appreciate the property's proximity to Balgowan, Unicorn, Eden Park High and Harris schools, ensuring quality education for children.

For commuters, Clock House, Eden Park, and Elmers End Stations are just a short distance away, offering quick and convenient access to central London, as well as trams to Croydon and Wimbledon. Whether it's for work or leisure, the location of this property is truly unbeatable.




EPC Rating: D

Key Features

  • Prime location on desirable residential road
  • Extended four bedroom family home
  • Characterful 1930's end of terrace house
  • Easy access to local shops, restaurants and Beckenham High Street
  • Close proximity to Balgowan, Unicorn, and Harris schools
  • Garage
  • Nearby Clock House, Eden Park and Elmers End Stations with trains to central London as well as trams to Croydon and Wimbledon.
  • Open plan kitchen/diner
  • Approximately 80' Westerly facing rear garden

Property Details

  • Property type: House
  • Property style: End of Terrace
  • Price Per Sq Foot: £529
  • Approx Sq Feet: 1,626 sqft
  • Plot Sq Feet: 3,143 sqft
  • Council Tax Band: E
Please note, property and plot sizes displayed are for guidance purposes only and may have been derived from publicly available information over which neither the agent nor Street.co.uk have control.

Floorplans

Location

Properties you may like

By The Address

Disclaimer - Property ID 007b11bc-5db1-41ba-885d-b4f23f6bc4fc. The information displayed about this property comprises a property advertisement. Street.co.uk and The Address makes no warranty as to the accuracy or completeness of the advertisement or any linked or associated information, and Street.co.uk has no control over the content. This property advertisement does not constitute property particulars. The information is provided and maintained by the advertising agent. Please contact the agent or developer directly with any questions about this listing.