Book a Viewing

To book a viewing for this property, please call Johnsons Property Consultants, on 01386761515.

To book a viewing for this property, please call Johnsons Property Consultants, on 01386761515.

For Sale
£700,000 Offers Over

4 Bedroom Detached House, Evesham Road, Norton, WR11

Evesham Road, Norton, WR11


Johnsons Property Consultants Primary Brand brand logo

Johnsons Property Consultants

91 High Street, Evesham, Worcestershire

Description

The Birches is an individually designed and thoughtfully built, contemporary family home, completed in 2025. Set within the Vale of Evesham village of Norton, the property enjoys far-reaching countryside views to the rear, creating an immediate sense of space, privacy, and connection to the landscape beyond.

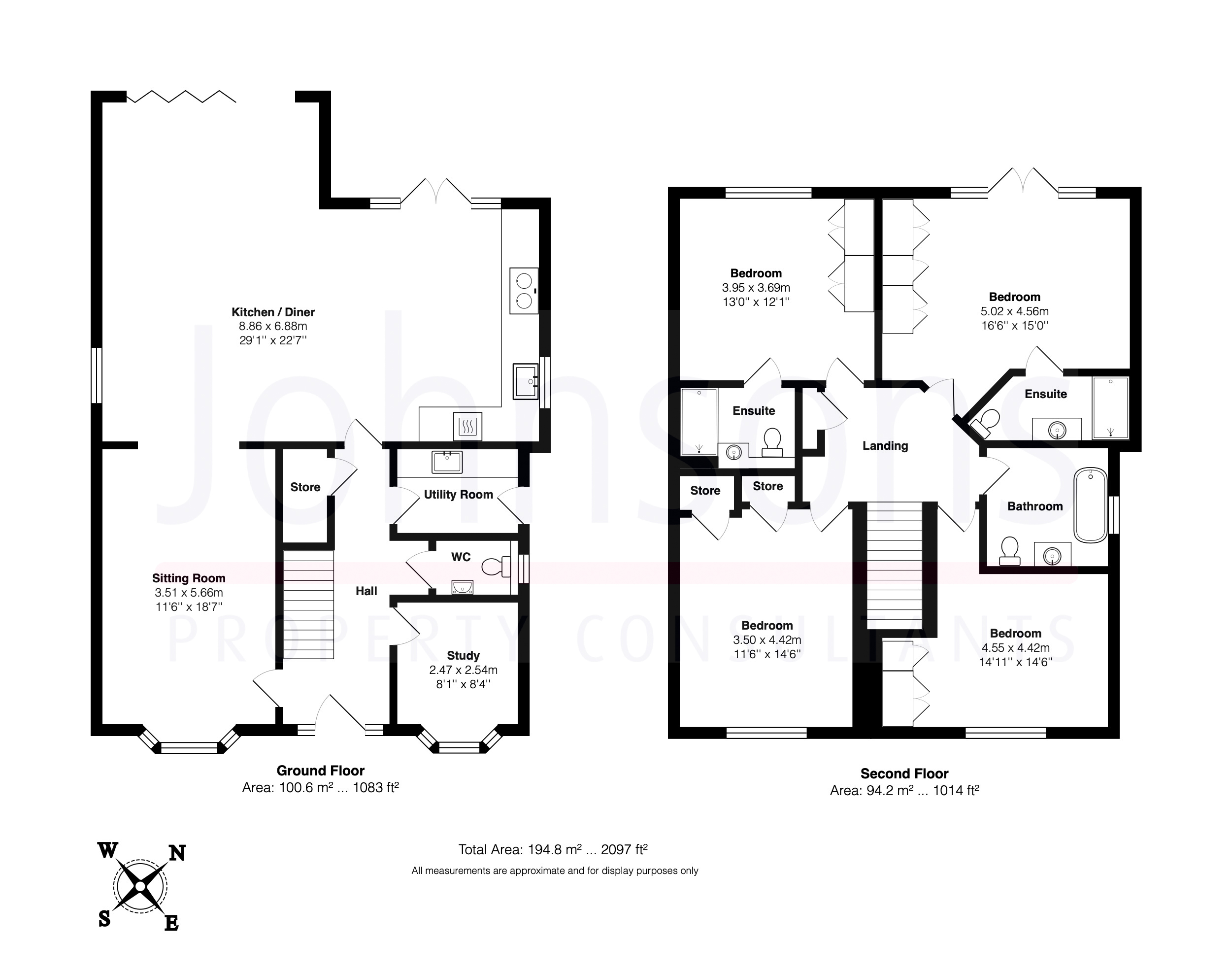
Approached via a generous driveway providing parking for up to five vehicles, the home presents a smart yet understated frontage that hints at the quality and scale within. Upon entering, a bright and welcoming hallway sets the tone, enhanced by clean contemporary lines and excellent natural light. From here, there is access to a practical under-stairs store, a neatly appointed cloakroom/ W.C., and a utility room designed to support the demands of modern family life. A separate study, positioned off the hall and enjoying a bay window overlooking the front driveway, offers an ideal home-office or quiet retreat.

The heart of the home lies in the stunning open-plan ground floor accommodation. An impressive kitchen/ breakfast room flows seamlessly into the dining area, forming a sociable and versatile space perfectly suited to both everyday living and entertaining. Bi-fold and French doors open directly onto the rear patio and gardens, blurring the line between inside and out and framing the beautiful countryside views beyond. Adjoining this space is a comfortable sitting room, featuring a bay window to the front and providing a cosy yet connected living area.

Upstairs, the sense of space and light continues. There are four generous double bedrooms, each well-proportioned and benefiting from ample built-in wardrobe and storage solutions, as well as attractive rural outlooks. Two of the bedrooms enjoy their own stylish en-suite shower rooms, while the remaining bedrooms are served by a beautifully appointed family bathroom featuring a roll-top bath and contemporary white sanitaryware. The principal bedroom is a particular highlight, with a Juliet balcony overlooking the rear gardens and the open countryside beyond.

Outside, the extensive rear gardens provide a tranquil setting for family life and entertaining alike. Paved seating areas and planter spaces lead onto generous lawns, framed by planted borders and several established, attractive trees – including the silver birch that gives the property its name – creating both structure and seasonal interest.

Designed with sustainability firmly in mind, The Birches benefits from solar panels with battery storage and an air source heat pump, offering impressive energy efficiency and reduced running costs without compromising on comfort or style. The house also benefits from underfloor heating throughout.

Altogether, The Birches represents a rare opportunity to acquire a bespoke, energy-efficient family home in a popular village location, where contemporary living meets countryside calm. A viewing is highly recommended to fully appreciate the quality, setting, and lifestyle on offer.

About the area

Norton is a small village in the parish of Norton & Lenchwick, nestled amongst stunning Worcestershire countryside. It is modestly equipped with a village church, village hall, pub/ restaurant and park with children’s play area. For the keen explorer, there are an abundance of walking routes, but other options include The Valley (retail and leisure park) or riverside walks along the River Avon in Evesham.

The larger historic, riverside market town of Evesham provides a wealth of amenities, schools, performing arts venues, community events and good commuting access.

The Vale of Evesham is well-known for its fruit and vegetable growing, with annual asparagus sales and plum festivals as well its medieval heritage, commemorated by the ever growing and popular Battle of Evesham event that takes place in August each year. Evesham is home to an independent cinema, a choice of arts venues offering regular live shows and a good choice of independent and chain retail stores, public houses and eateries. For the sporting orientated, there are a great selection of clubs including a rowing club which has had a famous Olympic athlete oar their way to success from! There are numerous clubs to get involved with to suit every hobby or future professional!

There is good access to healthcare, with four GP surgeries that cover the area and a minor injuries unit located in the centre. There are local pharmacies and dentists that also provide good service to the area.

For the commuters, Evesham has a railway station located centrally that provides great direct access to the nearby city of Worcester or through to London (Paddington). There are regular bus routes through to the surrounding villages, within Evesham or a further afield to nearby towns such as Stratford upon Avon or Redditch.

Important information

Planning enquires concerning the property and surrounding area can be made with Wychavon District Council.

Environmental enquires concerning the property and surrounding area can be made with Environment Agency.

Broadband inquiries at the property concerning its availability and estimated strength and download speeds can be made with BT.

Misrepresentation Act: These particulars are prepared with care but are not guaranteed and do not constitute, or constitute part of, any offer or contract. Intending purchasers must satisfy themselves of these particulars’ accuracy by inspection or otherwise, since neither the seller nor Johnsons shall be responsible for statements or representations made. The seller does not make or give, and neither Johnsons nor any person in their employment, has any authority to make or give any representation or warranty in relation to this property.

We endeavour to make the sales details accurate, if there is any matter(s) that is particularly important to you, please check with us prior to travelling any distance to view the property. Johnsons are unable to comment on the state of repair or condition of the property or confirm that any services equipment or appliances are in satisfactory working order. Reference to tenure is based upon information supplied by the vendor. Fixtures and fittings not included.

Johnsons Property Consultants reserve the right to earn a referral fee from third party providers (mortgage brokers, removals, conveyancers, etc), if instructed.


EPC Rating: B

Key Features

  • An individually designed and contemporary family home, completed in 2025
  • Solar panels with battery storage, air source heat pump and underfloor heating throughout
  • Far reaching Worcestershire countryside views
  • Stunning open plan ground floor accommodation, comprising an impressive kitchen/ breakfast room and dining area
  • Four generous and well-proportioned double bedrooms, each with ample built in wardrobe/ storage space and benefiting from rural views
  • Extensive rear gardens incorporating paved areas for seating and planter pots, generous lawns and planted borders
  • Driveway parking for up to five vehicles

Property Details

  • Property type: House
  • Property style: Detached
  • Price Per Sq Foot: £334
  • Approx Sq Feet: 2,097 sqft
  • Plot Sq Feet: 2,000 sqft
  • Council Tax Band: G
Please note, property and plot sizes displayed are for guidance purposes only and may have been derived from publicly available information over which neither the agent nor Street.co.uk have control.

Floorplans

Outside Spaces

Parking Spaces

Driveway

Capacity: 5

View Photos

Location

Properties you may like

By Johnsons Property Consultants

Disclaimer - Property ID 03666f2b-7b3f-44ac-b66e-a5f3272371d8. The information displayed about this property comprises a property advertisement. Street.co.uk and Johnsons Property Consultants makes no warranty as to the accuracy or completeness of the advertisement or any linked or associated information, and Street.co.uk has no control over the content. This property advertisement does not constitute property particulars. The information is provided and maintained by the advertising agent. Please contact the agent or developer directly with any questions about this listing.