4 Bedroom Detached House, Harold Close, Rochford, SS4

Harold Close, Rochford, SS4

Description

Welcome to this stunning four-bedroom detached family home, perfectly suited for a growing family. Nestled within easy reach of excellent local amenities, this property offers a spacious and character-filled living space. Before we talk more about this home, let's explore the local area a little more.

Rochford Station is accessible in under a 10-minute walk. With links directly to Liverpool Street Station in an hour and Southend Victoria in the other direction.

You are within easy access to some great schools, like Cherry Pips Nursery school (1 mile or 5 minute drive), Rochford Primary School (5 minute walk) & St Theresa’s Primary School (10-15 minute walk).

Rochford Hundred Golf Club is just across the road, great for meeting up with friends and not too far to walk back from with the clubs after a drinks in the club house afterwards!

Rochford town centre is just over a 10-minute walk from the front door, Rochford, and what makes Rochford centre so special is the untouched history dotted around every corner. With the Market Square which hosts Rochford Market every Tuesday. Around the edge of the square is restaurants, convenience stores and coffee shops.

There is a Sainsbury's only a 10-minute walk from your front door which you will pass on your route in and out of Rochford.

Now we know a little more about the area, let's take a walk inside this home.

Externally, the property has off-street parking for two vehicles, ensuring convenience for your family and for guests, there is plenty of parking nearby.

As you step inside, you'll immediately notice how spacious and light this home is.

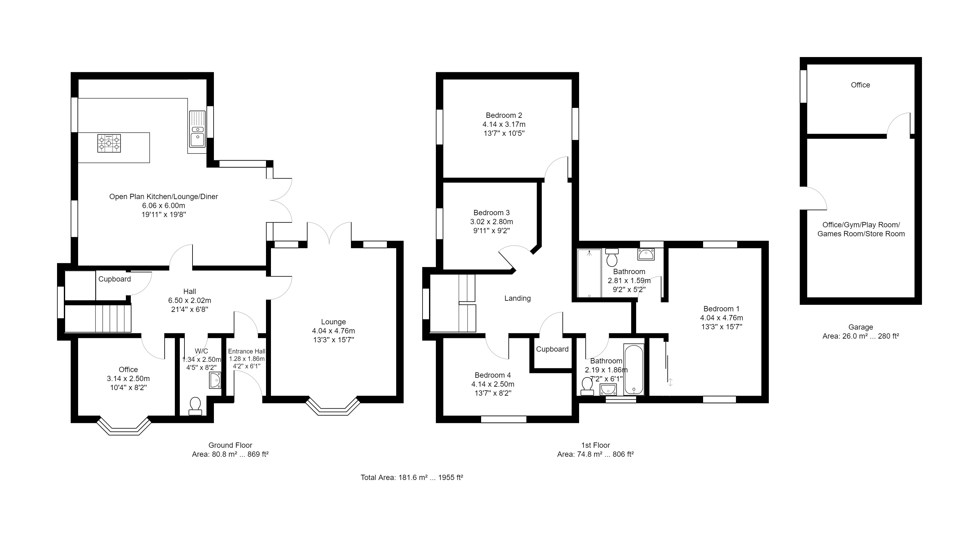
The well-designed layout spans around beautifully designed kitchen/dining/family room. The kitchen features an island that extends into a convenient breakfast bar, seamlessly connecting to the family area. With plenty of worktop space to carry out those ingredient heavy recipes and the storage for the equipment that comes with it.

The half orangery connects the garden all year round. The rear garden is a little oasis as it is south facing and very private.

The ground floor also offers a large stylish downstairs w/c, a dedicated study that could be a formal dining room, study or currently used as a playroom.

A spacious yet cosy lounge, perfect for relaxing evenings with family and friends.

Upstairs, you'll find four double bedrooms. The main bedroom has a spacious en-suite. Additionally, there's an immaculate three-piece suite family bathroom.

The garage has been cleverly converted and is currently used as a study, gym, and sitting area, with loft access for additional storage.

Don't miss this opportunity to make this impressive house your family's forever home. Contact us today to arrange a viewing and experience the charm and convenience this property has to offer.

 


EPC Rating: B

Key Features

  • Converted Garage into office/gym/workspace
  • South Facing Garden
  • Located on a cul-de-sac
  • 10-minute walk to Rochford Station taking you to Liverpool Street in under an hour
  • 10-minute walk to Rochford town centre
  • Open plan kitchen/family/dining room
  • Downstairs w/c
  • 4 Double bedrooms
  • Large lounge and large separate study/play room

Property Details

  • Property type: House
  • Property style: Detached
  • Approx Sq Feet: 1,668 sqft
  • Plot Sq Feet: 3,735 sqft
  • Council Tax Band: F
Please note, property and plot sizes displayed are for guidance purposes only and may have been derived from publicly available information over which neither the agent nor Street.co.uk have control.

Floorplans

Outside Spaces

Garden

South Facing Garden, with patio areas

Parking Spaces

Garage

Capacity: 2

Parking for 2 cars

Location

Properties you may like

By Nest in Essex

Disclaimer - Property ID 18e30c48-e57d-4101-9065-f3785e898b96. The information displayed about this property comprises a property advertisement. Street.co.uk and Nest in Essex makes no warranty as to the accuracy or completeness of the advertisement or any linked or associated information, and Street.co.uk has no control over the content. This property advertisement does not constitute property particulars. The information is provided and maintained by the advertising agent. Please contact the agent or developer directly with any questions about this listing.