Book a Viewing

To book a viewing for this property, please call Revilo Homes & Mortgages- Rochdale, on 01706 509237.

To book a viewing for this property, please call Revilo Homes & Mortgages- Rochdale, on 01706 509237.

For Sale
£190,000 Offers in Region of

2 Bedroom Terraced House, Merefield Street, Rochdale, OL11

Merefield Street, Rochdale, OL11


Revilo Homes & Mortgages brand logo

Revilo Homes & Mortgages- Rochdale

Revilo Homes Ltd, Revilo House

Description

This beautifully presented extended two bedroom terraced property offers spacious and versatile accommodation, ready for immediate occupation and ideal for modern family living. The thoughtfully designed layout maximises both space and natural light, creating a welcoming and airy atmosphere throughout. The heart of the home is the impressive extended living area, which provides ample room for both relaxation and entertaining, while the contemporary fitted kitchen features plentiful storage and generous workspace, catering to the needs of any home chef. Upstairs, two well-proportioned double bedrooms offer comfortable accommodation, complemented by a stylish family bathroom with modern fixtures and fittings for a touch of luxury. The property further benefits from a functional loft conversion, which serves as a versatile additional living space (perfect for use as a home office, guest room, or playroom, depending on your requirements). Each room has been finished to a high standard, with neutral décor and quality materials throughout, ensuring a move-in ready experience. Located in a desirable area with excellent local amenities and convenient transport links nearby, this property provides the perfect blend of comfort, practicality, and lifestyle. Whether you are a first-time buyer, a growing family, or seeking a stylish and low-maintenance home in a sought-after location, this extended terraced house offers an exceptional opportunity not to be missed. Early viewing is highly recommended to fully appreciate the space, quality, and versatility this impressive home has to offer.
EPC Rating: C

Key Features

  • Extended 2 Bedroom Terraced Property with Functional Loft Conversion
  • Impressive Loft Conversion Providing Versatile Additional Living Space
  • Beautifully Presented And Ready To Move Straight Into
  • Spacious Extended Living Areas, Perfect For Modern Family Living
  • Thoughtfully Designed Layout Maximizing Space And Natural Light
  • Contemporary Fitted Kitchen With Ample Storage And Workspace
  • Two Well-Proportioned Double Bedrooms & Well Proportioned Loft Conversion Offering Comfortable Accommodation
  • Stylish Family Bathroom With Modern Fixtures And Fittings
  • Low-Maintenance Rear Garden, Ideal For Entertaining And Relaxation
  • Desirable Location With Excellent Local Amenities And Transport Links Nearby

Property Details

  • Property type: House
  • Property style: Terraced
  • Price Per Sq Foot: £165
  • Approx Sq Feet: 1,152 sqft
  • Plot Sq Feet: 646 sqft
  • Council Tax Band: A
  • Tenure: Leasehold
  • Lease Expiry: -
  • Ground Rent:
  • Service Charge: Not Specified
Please note, property and plot sizes displayed are for guidance purposes only and may have been derived from publicly available information over which neither the agent nor Street.co.uk have control.

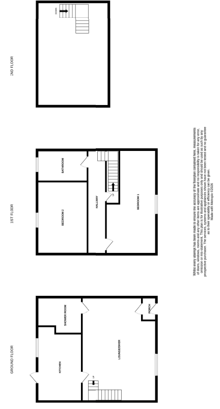
Rooms

Entrance Porch

Lounge / Diner

7.97m x 3.96m

Downstairs Wet Room

2.85m x 1.13m

Kitchen

5.38m x 2.94m

Bedroom One

4.04m x 2.12m

Bedroom Two

3.76m x 3.94m

Loft Conversion

3.94m x 3.81m

Family Bathroom

4.08m x 1.55m

Cellar

Floorplans

Outside Spaces

Rear Garden

Location

Properties you may like

By Revilo Homes & Mortgages- Rochdale

Disclaimer - Property ID 1efdb007-0c07-43dc-bb7b-96341afef6b5. The information displayed about this property comprises a property advertisement. Street.co.uk and Revilo Homes & Mortgages- Rochdale makes no warranty as to the accuracy or completeness of the advertisement or any linked or associated information, and Street.co.uk has no control over the content. This property advertisement does not constitute property particulars. The information is provided and maintained by the advertising agent. Please contact the agent or developer directly with any questions about this listing.