Book a Viewing

To book a viewing for this property, please call Finest Properties, on 0330 111 2266.

To book a viewing for this property, please call Finest Properties, on 0330 111 2266.

For Sale
£775,000 Guide Price

4 Bedroom Detached House, Waungron Uchaf, Velfrey Road, Whitland

Waungron Uchaf, Velfrey Road, Whitland


Finest Properties Primary Brand brand logo

Finest Properties

15 Market Place, Corbridge

Description

The Property
Set in an elevated position above the surrounding valley, this distinctive detached farmhouse dates back approximately 350 years and carries with it a quiet confidence born of age, craftsmanship and survival. Built in stone with render and shaped by generations of careful stewardship, the house sits comfortably within its landscape, with wildlife quite literally on the doorstep and long views unfolding across open countryside in every direction. Traditional form remains clearly legible throughout, softened and shaped over time by a series of considered changes that allow the house to function with ease today, while its original character, proportions and material honesty continue to define the way it is experienced.

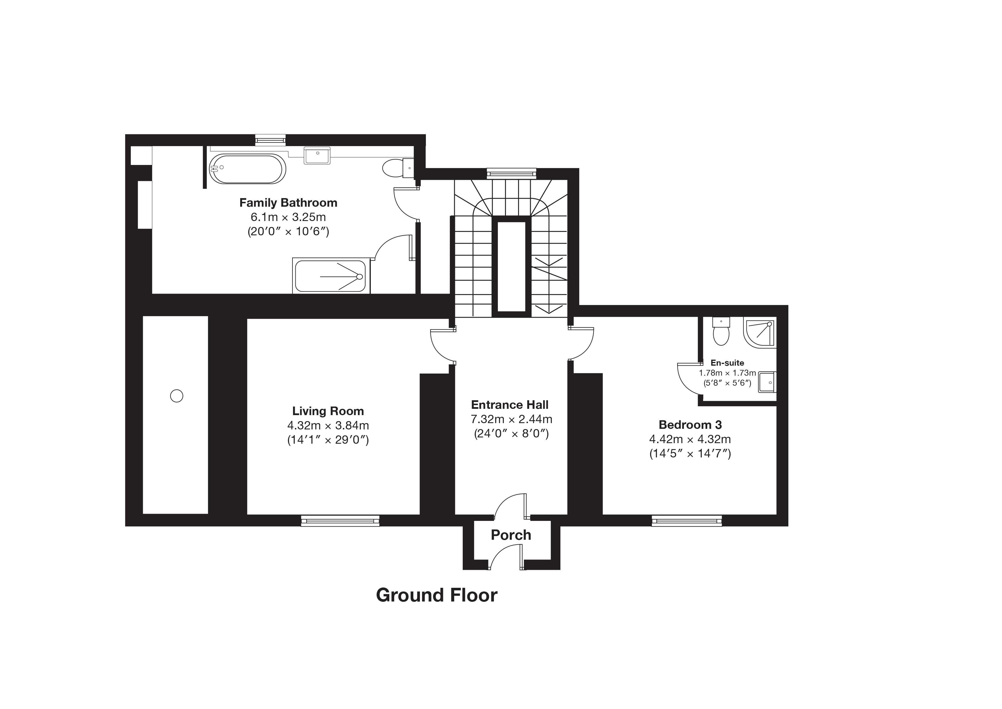
Arrival is via a central porch which draws you into a welcoming hallway connecting the principal living spaces. The ground floor living room is a calm and quietly characterful space, framed by a wide garden facing window that draws in soft natural light throughout the day. Its proportions allow for both a comfortable main seating arrangement and quieter reading corners, while the outlook across the garden lends the room a gentle sense of connection to the landscape beyond.

A bright and well-proportioned ground floor bedroom enjoys its own en suite shower room, making it particularly well suited to guests or single-level living if required. A broad window draws in soft natural light and frames leafy garden views, giving the room a calm, outward-looking feel that is both private and quietly connected to the surrounding setting.

Completing this level, a beautifully appointed family bathroom centres on a freestanding bath set beneath original exposed beams and textured historic stonework, a striking reminder of the building’s age and construction. A generous walk-in rainfall shower sits alongside, finished in dark stone tiling with glazed screening, while timber cabinetry, contemporary sanitaryware and discreet downlighting bring a refined modern contrast to the historic fabric.

Returning to the hallway, the stairs descend to the lower ground floor where the layout opens into a relaxed and well balanced sequence of spaces. The inglenook room is a generous and deeply atmospheric setting, centred on a substantial stone fireplace with a wood burning stove set deep into the original recess beneath original timber lintels. This is a room shaped by the house’s history, with exposed stone walls, deep hearth stones and original structural beams all visible. The thick walls give the room a naturally balanced feel, warm and cosy in winter, yet cool through the summer months, making it a space the current owners gravitate to for everyday living, often settling into the inglenook itself to watch television beside the fire. Subtle alcoves and the depth of the stonework lend a strong sense of enclosure and retreat, giving the room a quiet intimacy that feels entirely in keeping with the age of the house.

Next door, a dedicated study offers a calm and characterful work from home setting, equally well suited to creative pursuits such as crafting. Warmed by its own wood burning stove and framed by exposed beams that lend a clear sense of age and texture, the room feels both settled and inviting. A broad window draws in natural light and opens out to long valley views across the surrounding countryside, giving the space an uplifting, outward-looking quality despite its quietly tucked away position.

The kitchen and dining room are arranged together on this level, fitted with extensive oak cabinetry, broad work surfaces and a substantial range cooker set beneath a wide tiled splashback and extractor. The dining area sits comfortably alongside, creating an easy, everyday space for cooking, dining and relaxed conversation. A separate pantry next door provides valuable additional storage and keeps the main room neatly arranged.

Stairs rise to the first floor, which is arranged around a central landing linking three well proportioned double bedrooms. The principal bedroom enjoys a calm outlook across the gardens and open countryside and benefits from its own en suite shower room. Two further double bedrooms are both light and well balanced, each enjoying peaceful views across the surrounding landscape, with wildlife frequently visible from the windows, reinforcing the sense that the countryside truly begins at the doorstep.

Above, the second floor loft level introduces two further generous rooms set beneath the original roof structure. Exposed beams, angled ceilings and areas of stonework give these spaces strong character and a direct connection to the building’s age, offering excellent scope, subject to the necessary consents, for use as additional bedrooms, studio spaces or occasional accommodation. A central loft storage area provides useful supplementary space at this upper level.

Externally
The house sits within approximately 1.3 acres of established gardens and grounds, forming part of a wider holding that extends in total to approximately 34.89 acres, divided roughly between open pasture and mature oak woodland. The formal gardens are laid predominantly to lawn and shaped by established trees and hedging, framing both privacy and outward views across the valley. From its elevated position, the setting enjoys far-reaching panoramic outlooks across rolling countryside, with fields, woodland and distant ridgelines creating a layered rural backdrop.

Beyond the immediate gardens, the woodland becomes a defining part of the experience. A footpath winds through the oak trees and leads gently down towards a stream, creating the opportunity for private woodland walks directly from the door. In spring, the ground is carpeted with bluebells, transforming the woodland into a seasonal highlight, while throughout the year the land offers a rare sense of calm and seclusion. The setting is remarkably peaceful, with wildlife regularly seen moving through the fields and trees, reinforcing the feeling of living closely connected to nature.

A paved seating terrace is set to take full advantage of the open aspect, well placed for outdoor dining and long views across the land. A private driveway provides off-road parking and a clear sense of arrival, while practical garden storage is positioned discreetly beyond the main accommodation, easily accessed from the secondary porch and kept visually separate from the principal garden areas. The remaining land extends beyond the gardens to give the property a rare sense of scale, openness and long-term potential.

Local Information
Waungron Uchaf sits on the edge of Whitland, a small market town on the River Taf that provides day to day amenities including shops, cafés, schooling and a railway station on the West Wales line. For families, the area is well served by both primary and secondary schools within walking distance. The A40 runs just to the south, giving straightforward road access east towards Carmarthen and the wider M4 corridor and west towards Haverfordwest. By rail, Whitland offers regular services to Carmarthen, Swansea, Cardiff and the Pembrokeshire resorts, making it an appealing base for commuting or leisure. The surrounding countryside and nearby coast provide plentiful opportunities for walking, riding and exploring, with popular seaside towns such as Tenby and Saundersfoot within easy reach.

Approximate Mileages
Narberth 7 miles | Carmarthen 14 miles | Tenby 14 miles | Haverfordwest 16 miles | Swansea 41 miles | Cardiff 81 miles

Services
Mains electricity and water. Oil heating and wood burner/open fires. Foul Drainage to Septic Tank.

Tenure
Freehold

Council Tax
Band G

Wayleaves, Easements & Rights of Way
The property is being sold subject to all existing wayleaves, easements and rights of way, whether or not specified within the sales particulars.

Agents Note to Purchasers
We strive to ensure all property details are accurate, however, they are not to be relied upon as statements of representation or fact and do not constitute or form part of an offer or any contract. All measurements and floor plans have been prepared as a guide only. All services, systems and appliances listed in the details have not been tested by us and no guarantee is given to their operating ability or efficiency. Please be advised that some information may be awaiting vendor approval.

Submitting an Offer
Please note that all offers will require financial verification including mortgage agreement in principle, proof of deposit funds, proof of available cash and full chain details including selling agents and solicitors down the chain. To comply with Money Laundering Regulations, we require proof of identification from all buyers before acceptance letters are sent and solicitors can be instructed.

Disclaimer
The information displayed about this property comprises a property advertisement. Finest Properties strives to ensure all details are accurate; however, they do not constitute property particulars and should not be relied upon as statements of fact or representation. All information is provided and maintained by Finest Properties.


EPC Rating: E

Virtual Tour


Key Features

  • Breathtaking Valley Views
  • Private Yet Close to Amenities
  • Charm and History
  • Elevated Rural Position
  • Grazing Land and Historic Woodland
  • Approx. 34.89 Acres
  • Private Driveway Parking

Property Details

  • Property type: House
  • Property style: Detached
  • Price Per Sq Foot: £278
  • Approx Sq Feet: 2,788 sqft
  • Property Age Bracket: Pre-Georgian (pre 1710)
  • Council Tax Band: G
Please note, property and plot sizes displayed are for guidance purposes only and may have been derived from publicly available information over which neither the agent nor Street.co.uk have control.

Outside Spaces

Garden

Parking Spaces

Driveway

Capacity: 2

Location

Properties you may like

By Finest Properties

  • Apartment 12, Springfield Court, Springfield Avenue, Harrogate, North Yorkshire

    • 3 Beds
    • 2 Bath
    View Property
  • Common House Farm, Melkridge, Haltwhistle, Northumberland

    • 3 Beds
    • 2 Bath
    View Property
  • Dalmeny, Newcastle Road, Corbridge, Northumberland

    • 4 Beds
    • 2 Bath
    View Property
  • Waungron Uchaf, Velfrey Road, Whitland

    • 4 Beds
    • 3 Bath
    View Property
  • Blindburn Hall, Wark, Hexham, Northumberland

    • 6 Beds
    • 4 Bath
    View Property
  • St Paul’s Church Halifax Road, Denholme, West Yorkshire

    • 5 Beds
    • 4 Bath
    View Property
  • 31 Slaley Hall Villa, Coal Road, Hexham, Northumberland

    • 4 Beds
    • 4 Bath
    View Property
  • Brahma House, The Avenue, Medburn, Ponteland, Northumberland

    • 5 Beds
    • 3 Bath
    View Property
  • Yew Tree, Belford Hall, Belford, Northumberland

    • 2 Beds
    • 1 Bath
    View Property
Disclaimer - Property ID 21d417f0-72be-40c7-90ca-a848ec570eea. The information displayed about this property comprises a property advertisement. Street.co.uk and Finest Properties makes no warranty as to the accuracy or completeness of the advertisement or any linked or associated information, and Street.co.uk has no control over the content. This property advertisement does not constitute property particulars. The information is provided and maintained by the advertising agent. Please contact the agent or developer directly with any questions about this listing.