Book a Viewing

Click here to pick an available date and time to view this property

Book a Viewing
For Sale
£375,000 Offers Over

4 Bedroom Semi Detached House, Westbury Close, Bury, BL8

Westbury Close, Bury, BL8


Kingtons New brand logo

Kingtons Estate Agents

103 Blackburn Street, Radcliffe

Description

Kingtons Estate Agents are delighted to offer to the market this very well presented four bedroom semi-detached Dorma bungalow, situated in a highly sought-after location, Westbury Close, Bury.

Located ideally for Bury and Bolton Town centres, and local transport links to the motorway and Metrolink networks, good local schools, shops and amenities with supermarkets and village shops. With amazing local parks and walks close by.

This extensive bungalow has been maintained to the highest of standards with spacious rooms, beautiful outlook over the gardens and the hills of Bury beyond.

Welcomed into a full height hallway with grand staircase and gallery style landing, which leads to a spacious lounge with large bay fronted window. The kitchen is a chefs dream with modern integrated appliances, all included and marble work tops. Bi-fold doors to the landscaped gardens, from the kitchen. Four great size bedrooms, a new family bathroom and a stunning master en suite with dressing room. This property offers a touch of luxury for any family.

The beautiful landscaped back garden has multiple seating areas, with an amazing garden room, equipped with home office and bar. A fantastic addition to this home. The garden has an Indian stone pathway and patio with secure gated entry. To the front is a garden with driveway for up to two cars.

This is a family home not to be missed so call Kingtons now to arrange your private viewing.


EPC Rating: D

Key Features

  • Four large bedrooms
  • Outstanding Gardens with garden room
  • Modern Kitchen with bi-fold doors
  • Master with en suite and dressing room
  • Large driveway

Property Details

  • Property type: House
  • Property style: Semi Detached
  • Price Per Sq Foot: £581
  • Approx Sq Feet: 646 sqft
  • Plot Sq Feet: 5,759 sqft
  • Property Age Bracket: 1960 - 1970
  • Council Tax Band: C
Please note, property and plot sizes displayed are for guidance purposes only and may have been derived from publicly available information over which neither the agent nor Street.co.uk have control.

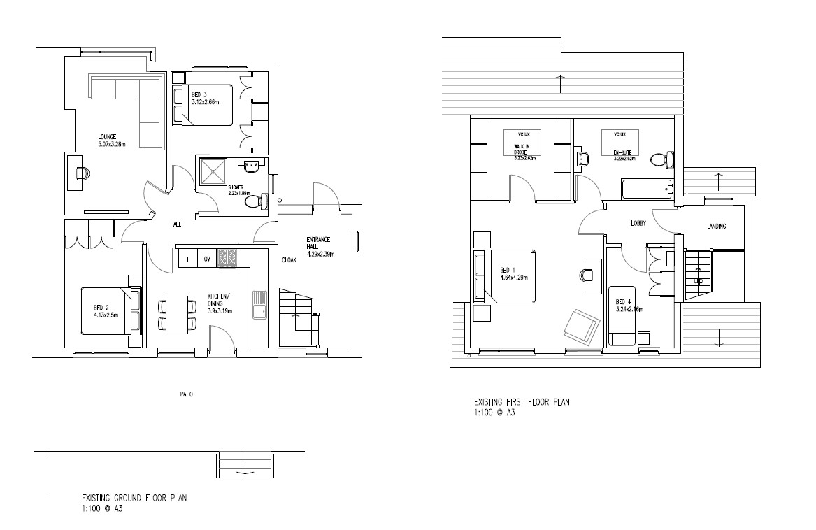
Rooms

Entrance Hall

4.29m x 2.39m

A full height entrance hallway with dual aspect windows, cloakroom area and gallery style landing.

View Entrance Hall Photos

Kitchen Diner

3.90m x 3.19m

A modern fully fitted kitchen with a range of white gloss wall and base units. Integrated oven, microwave, electric hob, dishwasher, washing machine, dryer and inset sink with shower tap, and marble worktops. Space for a dining table, and bi-fold doors to the garden. Modern wall radiator. LED Lighting.

View Kitchen Diner Photos

Lounge

5.07m x 3.28m

A very spacious lounge with large bay window and grey carpet.

View Lounge Photos

Bedroom 2

4.13m x 2.50m

A ground floor double bedroom overlooking the garden.

View Bedroom 2 Photos

Bedroom 3

3.12m x 2.66m

A good size double bedroom with fitted white wardrobes.

View Bedroom 3 Photos

Bathroom

2.23m x 1.89m

A brand new fully tiled bathroom featuring under floor heating, large walk in shower, sink with storage, heated towel rail and WC.

View Bathroom Photos

Bedroom 4

3.24m x 2.16m

A first floor single bedroom currently used as a home office.

View Bedroom 4 Photos

Bedroom 1

4.64m x 4.29m

A very large first floor master bedroom with space for a super king size bed, furniture and with two windows overlooking the garden.

View Bedroom 1 Photos

Walk in Wardrobe

3.23m x 2.62m

A large dressing area with in built storage and velux window.

View Walk in Wardrobe Photos

Master En-Suite

3.22m x 2.62m

A very spacious en suite, sink with storage, bath with over bath shower and glass screen and WC. With space for additional storage.

View Master En-Suite Photos

Floorplans

Outside Spaces

Garden

An extensive rear garden with Indian stone paved walkways and patio, steps up to a a lawn area with further decking seating and shed. Access to garden room.

View Photos

Garden

A fabulous garden room, a large space with multiple uses. Currently used as a home office and bar. With bi-fold doors.

View Photos

Parking Spaces

Driveway

Capacity: 2

Large driveway with room for two cars.

View Photos

Location

Kingtons Estate Agents are delighted to offer to the market this very well presented four bedroom semi-detached dorms bungalow, situated in a highly sought-after location, Westbury Close, Bury. Located ideally for Bury and Bolton Town centres, and local transport links to the motorway and Metrolink networks, good local schools, shops and amenities with supermarkets and village shops. With amazing local parks and walks close by.

Properties you may like

By Kingtons Estate Agents

Disclaimer - Property ID 26c8e641-eb03-43e2-86f9-4f81e75bef74. The information displayed about this property comprises a property advertisement. Street.co.uk and Kingtons Estate Agents makes no warranty as to the accuracy or completeness of the advertisement or any linked or associated information, and Street.co.uk has no control over the content. This property advertisement does not constitute property particulars. The information is provided and maintained by the advertising agent. Please contact the agent or developer directly with any questions about this listing.