Book a Viewing
To book a viewing for this property, please call Ensum Brown, on 01763 750000.
To book a viewing for this property, please call Ensum Brown, on 01763 750000.
4 Bedroom Link Detached House, Church Street, Steeple Morden, SG8
Church Street, Steeple Morden, SG8

Ensum Brown
Ensum Brown Estate Agents, 42 High Street, Royston
Description
Property Insight
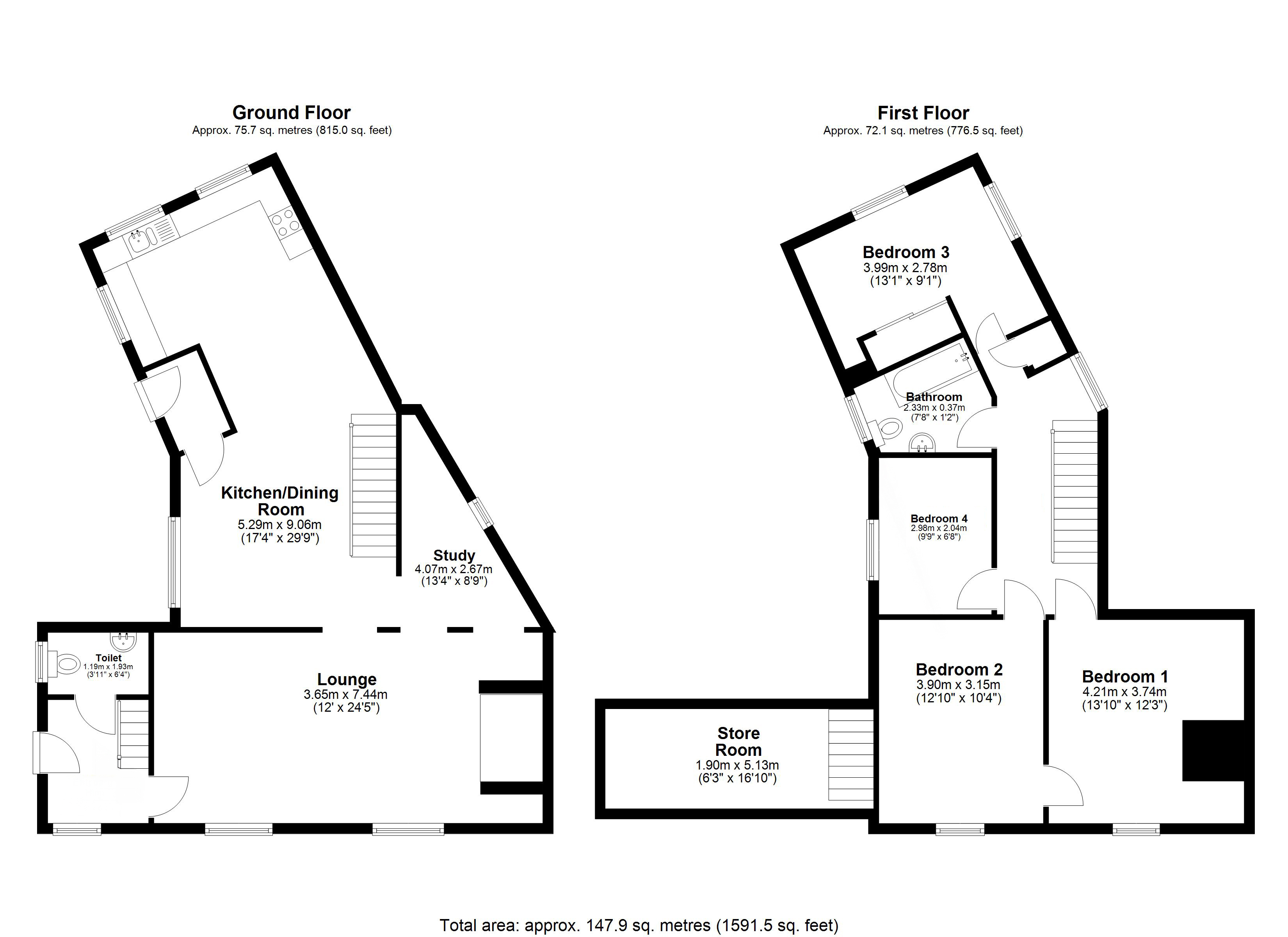
Ensum Brown are delighted to offer for sale this stunning 4-bedroom character property dating back to approximately 1703, located in the popular Cambridgeshire village of Steeple Morden. This property enjoying no upward chain, over 1500sq ft of accommodation, period features throughout, a large lounge, a kitchen/dining room, a separate study, a cloakroom WC, 4 well-proportioned bedrooms, a family bathroom, a generous rear garden and a driveway for multiple vehicles.
This beautiful home offers excellent kerb appeal, with a well-maintained frontage and access around to the rear. Once inside, the entrance hallway is bright and welcoming, with high ceilings, pendant lighting, steps up to a large store room, and access through to the downstairs living space, including a cloakroom WC.
The kitchen/dining room is wonderfully open-plan, enjoying multiple windows and a door to a dual aspect, carpets, pendant lighting, stairs to the first floor, and space for a large dining setting and storage furniture. The kitchen area enjoys a range of base and wall units, laminate worktops, inset lighting, tiled flooring and splashbacks, and space for an oven, washing machine, tumble dryer, fridge/freezer and other small kitchen appliances.
The lounge is a stunning space, benefiting from windows to a front aspect, a beautiful inglenook fireplace with a wood-burning stove, exposed beams and upstands, carpets, sconce lighting, and vast amounts of space for lounge and storage furniture. Just off the lounge, there is a separate study area with its own window, perfect for those wishing to work from home.
Upstairs to the first floor, this stunning property continues to impress, with 4 well-proportioned bedrooms, integrated storage, and a family bathroom comprising a bath with an overhead shower, a WC and a hand wash basin.
Outside, to the rear, the garden is an incredibly good size, fully enclosed by fencing and offering a truly lovely space to sit and relax in the sunshine. It is laid mainly to lawn, with a large gravelled area by the house and another large paved area to the bottom of the garden, providing ample space for garden furniture and entertaining guests. There are borders of plants and shrubs, mature trees at the back of the garden, and plenty of scope for new owners to transform and make their own.
Call Ensum Brown today to arrange a private viewing appointment, you will not be disappointed!
Location -Steeple Morden
Steeple Morden is a tranquil parish village situated in the southwest of Cambridgeshire, just 15 miles from the city of Cambridge and 5 miles from the popular market town of Royston. Residents can enjoy getting back to nature with many country walks, a variety of local social activities, and a traditional village pub, dating back to the 17th century.
The Church of St. Peter and St. Paul was rebuilt in the 13th century and is how Steeple Morden acquired its name, comprising an aisled nave, steepled south porch and chancel. The church is part of the local group of Parishes in South Cambridgeshire, enjoying regular services and social events.
Steeple Morden benefits from a village hall, which is available for hire, a garage, a highly-regarded primary school, and a railway station just 2.5 miles away, providing direct links to both Cambridge and London Kings Cross. Further amenities are a stone's throw away in Royston, such as a leisure centre and a variety of sports clubs, including the golf club on Royston Heath. There are a variety of excellent schools to choose from, doctors and dentist surgeries, shops and supermarkets, all surrounded by beautiful countryside and many other pretty villages to explore.
Steeple Morden's proximity to Royston also means residents benefit from further excellent transport links, with a mainline train station offering regular fast services to both Cambridge and London Kings Cross. The A1M and M11 are within a 15-minute drive via the A10/A505, and London Stansted and Luton Airports are both 30-minutes away.
We encourage all homebuyers to visit Steeple Morden to truly appreciate what this beautiful village has on offer.
Virtual Tour
https://my.matterport.com/show/?m=ehp4MRVZ7VsOther Virtual Tours:
Key Features
- Stunning Character Property
- No Onward Chain
- Generous Rear Garden
- Located in a Hugely Popular South Cambridgeshire Village
- Driveway for Multiple Vehicles
- Own a Piece of History with One of the Oldest Homes in the Village
- Over 1500sqft of Accommodation
- Study
- Church Views to the Front of the Home
- 4 Well Proportioned Bedrooms
Property Details
- Property type: House
- Price Per Sq Foot: £393
- Approx Sq Feet: 1,592 sqft
- Property Age Bracket: Pre-Georgian (pre 1710)
- Council Tax Band: E
Floorplans
Parking Spaces
Driveway
Capacity: 3
Location
Properties you may like
By Ensum Brown